


1 035 714 ₽/м²
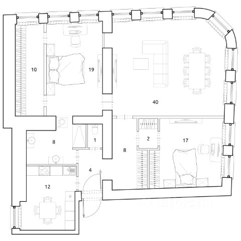
ID: 585783 Уникальный клубный особняк в сердце Петербурга! Представляем вашему вниманию исключительную коллекционную квартиру, расположенную в историческом доме прошедший полную реконструкцию, "Особняк Кушелева-Безбородко, всего в нескольких шагах от Летнего сада и Невы. Эта трехуровневая резиденция с отдельным входом из тихого двора сочетает в себе роскошь современного дизайна и историческую атмосферу. Дизайнерский ремонт и высококачественные материалы Квартира только что прошла авторский дизайнерский ремонт, в котором использованы премиальные бренды: Minotti, Zaha Hadid, Georgetti. Пространство наполнено произведениями искусства от известных мастеров, создавая уникальную атмосферу. Сантехника от Duravit и Hans Grohe, а также освещение от Arketipo и Henge подчеркивают высокий уровень отделки, простор и комфорт. На первом этаже вас встретит просторный холл и стильная кухня, скрытая за элегантными фасадами. Изящная винтовая лестница ведет на второй этаж, где расположена парадная гостиная с 6-метровыми потолками, огромными окнами и современным камином. Здесь же находятся столовая и дополнительная гостиная, которую можно использовать как спальню или кабинет. Третий этаж представляет собой приватную зону с мастер-спальней, двумя ванными комнатами и гардеробными, а также детской спальней. Каждый уголок квартиры продуман до мелочей, чтобы обеспечить максимальный комфорт и уют. Привилегии жизни в центре города Особняк предлагает закрытый Wellness центр с бассейном, спа-зоной и тренажерным залом. Для вашего удобства предусмотрены паркинг и круглосуточная охрана с консьерж-сервисом. Окна квартиры выходят во двор и на Гагаринскую улицу с боковым видом на Неву, что добавляет дополнительный шарм. Не упустите возможность стать владельцем этой уникальной резиденции! Позвольте себе прикоснуться к настоящей трофейной недвижимости в самом сердце Санкт-Петербурга. Номер объекта: #1/585783/14501






























































































