


1 014 636 ₽/м²
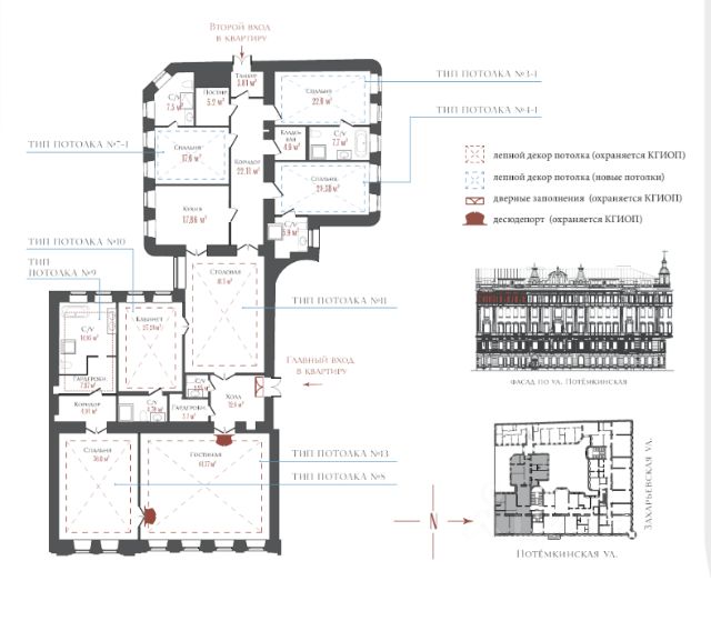
Арт. 128539486 Предлагается к продаже резиденция на втором этаже клубного дома "Три Грации" — уникальный симбиоз исторического наследия и безупречных современных технологий. Свободная планировка общей площадью 341,6 кв.м с потолками до 4 метров разделяет жизнь на парадную и приватную. Представительская часть впечатляет масштабами: просторная гостиная площадью 59 кв.м с четырьмя окнами, открывающая великолепные панорамы на Таврический сад и элегантная столовая. Приватная зона включает кабинет, три мастер-спальни и родительскую спальню с собственной гардеробной. Дух начала XX века живёт в подлинных деталях: изысканная лепнина с фигурами и цветочными гирляндами, а также две исторические изразцовые печи, охраняемые государством как предметы декоративно-прикладного искусства. При этом резиденция оснащена по последнему слову техники: интеллектуальные системы вентиляции и кондиционирования, индивидуальное отопление, шумоизоляция и умный домофон с интеграцией в смартфон. Два входа — парадный с Потемкинской улицы и служебный во двор — обеспечивают и представительность, и комфортный доступ к инфраструктуре дома, включающей круглосуточную охрану, парадный лобби с консьерж-сервисом, приватный спортивный клуб с сауной и массажным кабинетом, уютный двор-патио. Это больше чем квартира — это готовая к жизни вечная ценность в сердце Петербурга, где история обрела современный ритм.



























































































