


240 000 ₽/м²
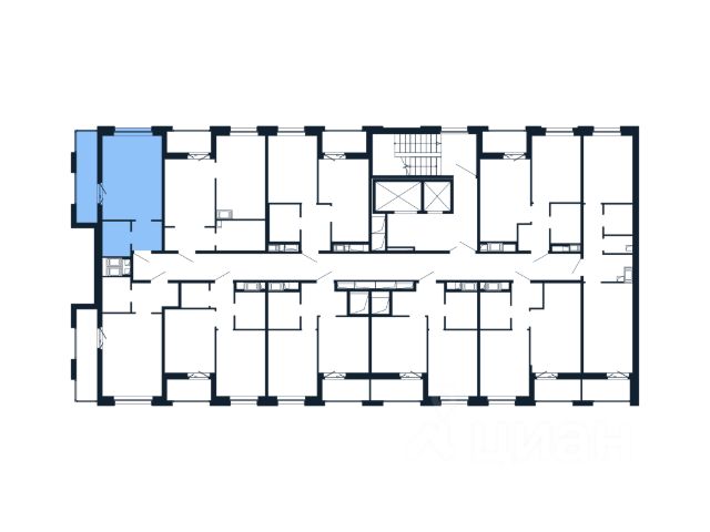
Дом сдан Вид на лес. Продаётся студия квартира 514, общей площадью 25.38 кв.м., на 7 этаже. Дом комфорт-класса, 12 этажей, в окружении леса и малоэтажной застройки. Проект с умным домом. Дом сдан. РАСПОЛОЖЕНИЕ И БЛАГОУСТРОЙСТВО Расположение ЖК "ЛесART" порадует любителей чистого воздуха — рядом находятся лесопитомник и Шунгеровский заказник. Особенность комплекса это его ART дворы, которые оформлены по мотивам произведений Василия Кандинского, Пита Мондриана и Пабло Пикассо. Дворы закрыты от машин, что обеспечивает безопасность детей и взрослых. Для семей с детьми особенно удобно наличие детского сада и школы прямо во дворе комплекса. На первом этаже расположены магазины, маркетплейсы, кофейни и всё что необходимо для повседневной жизни. Холлы - это продуманные пространства с колясочными, сквозными проходами и приятной музыкой в лифтах. СИСТЕМА УМНОГО ДОМА В КАЖДОЙ КВАРТИРЕ - Комфорт. Управление освещением, мультимедиа и климат-контролем. - Безопасность. Видеонаблюдение и мониторинг систем безопасности. - Экономия. Контроль систем и оптимизация энергопотребления. - Удобство. Управление с помощью мобильного телефона. ГК "ЕДИНО" Входит в тройку компаний-лидеров региона по потребительским качествам жилых комплексов, объемам ввода жилья и объемам текущего строительства. В цифрах: - 23 года на рынке - Более 50 построенных домов - 60 000+ счастливых обладателей квартир ЗАПИСЫВАЙТЕ НА ПРОСМОТР! Мы ждем Вас в нашем уютном шоуруме. Вы увидите отделку, дизайнерские решения и познакомитесь со сценариями Умного дома! Такси до офиса продаж и обратно БЕСПЛАТНО!

























































































































