370 659 ₽/м²
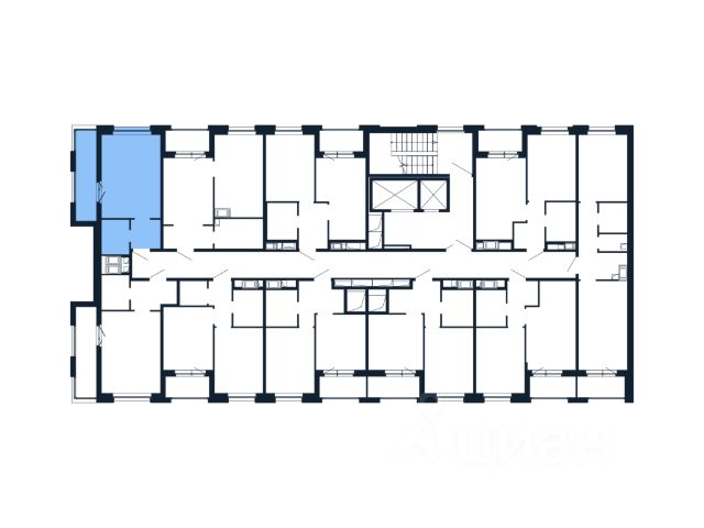
Продается просторная студия от застройщика в жилом комплексе "Сенат" в престижном Московском районе. До метро можно добраться пешком всего за 20 минут. Удобная, классическая, функциональная европланировка, просторная прихожая 4.12 м². Общая площадь студии - 25.9 м², жилая 18.6 м², высота потолка 2.77 м. Квартира продается с отделкой "NORD LINE SILVER ВК". Что особенного в ЖК "Сенат"? • Престижный Московский район • Авторская архитектурная концепция • Центральная входная группа с ресепшен и лаундж-зонами • Променад с воздушным мостом и просторными зонами отдыха • Зимний каток, площадки SetlKids и уютные дворы-патио • Инновационный Лицей Setl с оригинальной архитектурной концепцией и уникальной образовательной средой













































































































