151 870 ₽/м²
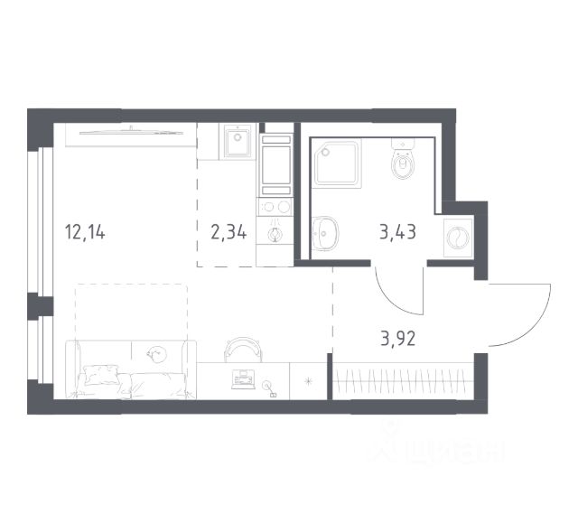
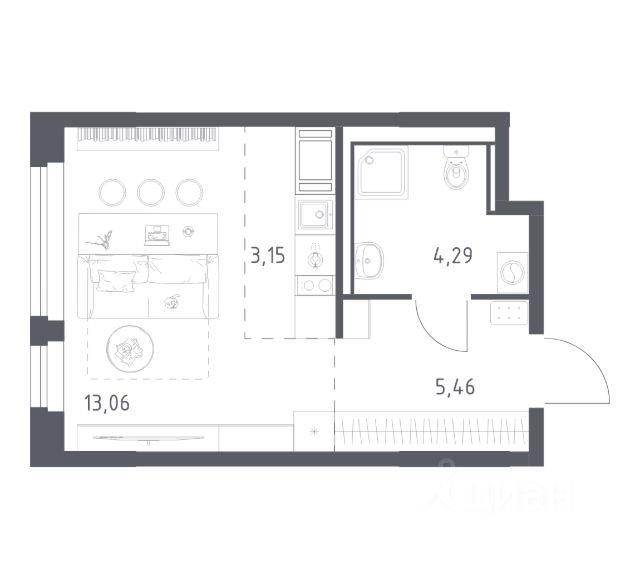
Есть такие места, где хочется остаться навсегда: где за окном шумят вершины деревьев, а до бьющего ключом ритма большого города — всего полчаса пути. Таким местом станет для вас квартал "Новое Колпино" в зеленом районе Петербурга. Здесь можно проводить ребенка в школу, не выходя со двора, а вечером гулять по тихим бульварам. Любоваться бескрайним небом, закатами и рассветами на уютном балконе — так начинается день в этом спокойном семейном квартале. Транспортная доступность До станции метро "Рыбацкое" — 25 минут на машине или 35 минут на автобусе. Железнодорожная станция Колпино находится всего в 7 минутах езды, что позволяет всего за 25 минут добраться на электричке до площади Восстания в центре города. На автомобиле легко выехать на Петрозаводское (6 минут) и Московское (15 минут) шоссе. Окружение и инфраструктура "Новое Колпино" утопает в зелени. В 15 минутах езды — целых 10 парков и скверов, а живописный берег реки Ижоры станет любимым местом для прогулок в любое время года. При этом инфраструктура развита отлично: на территории квартала уже работает школа с бассейном и 3 детских сада. В шаговой доступности — почта, МФЦ, ФОК и магазины. Благоустройство и архитектура Дворы в квартале — приватные, без машин, с зелеными островками и зонами для отдыха. Вокруг школы проложен зеленый бульвар с велодорожкой. Дома высотой 11 этажей отличаются стильным фасадом в теплых оттенках с французскими балконами. В парадных — светлые лобби в европейском стиле с безбарьерной средой. Планировки и отделка Доступны квартиры от студий до 3-комнатных, с продуманными планировками, кухнями-гостиными и хорошей звукоизоляцией. Вы можете выбрать готовую, предчистовую отделку или вариант без отделки, чтобы реализовать свои дизайнерские идеи. Квартира-студия в ипотеку в новостройке в Колпино.










































































