Первичная продажа
Только на Циан
Онлайн-бронирование
сдача ГК: 3 кв. 2026 года
Василеостровская
11 минут пешком
16 618 142 ₽
583 502 ₽/м²
Дом РЕГЕНБОГЕН расположен на 7-й линии Васильевского острова. Это одна из старейших улиц Петербурга длиною в 20-минутную прогулку от Университетской набережной до набережной реки Смоленки.
В пешей доступности 2 станции метро: Василеостровская (700 метров) и Спортивная (800 метров). Не далее 5-20 минут пешком от РЕГЕНБОГЕНА престижные ВУЗы: СПбГУ, РАНХиГС, ИТМО, РПА Минюста РФ, Академия художеств. Чуть дальше Горный институт.
Жить в исторической части Васильевского острова значит всегда быть в окружении искусства от актуальной современности в Эрарте до великой классики в Эрмитаже. В шаге от дома популярнейший гастрокластер Василеостровский рынок, рядом креативные общественные пространства: Вавилов Лофт, Новая Голландия и Севкабель Порт.
РЕГЕНБОГЕН строится на территории, ранее принадлежавшей заводу им.Козицкого, до революции заводу Siemens & Halske. Классические заводские краснокирпичные здания сформировали архитектурную концепцию жилого дома. РЕГЕНБОГЕН будет гармонично включен в контекст исторической застройки благодаря переменной этажности секций в 5, 7 и 9 этажей и аутентичным фасадам. Образ дома дополнят черные композитные панели и декоративные элементы из металла, как аллюзия на промышленную архитектуру начала ХХ века.
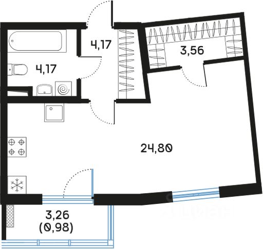
В РЕГЕНБОГЕНЕ большой выбор небольших квартир студий (от 28 м2), 1-комнатных (от 34 м2) и евродвушек (от 43 м2). Есть квартиры с европланировками на 2, 3 и 4 спальни.
Во всех квартирах предусмотрены места для установки шкафов или гардеробные или кладовые.
Лоджии и балконы остекленные, есть квартиры с террасами. Все окна с увеличенной высотой проема, а в квартирах на верхних этажах стеклянные панорамные стены.
В Доме будет выполнена качественная инженерная подготовка бизнес-класса: эл.мощность от 10 до 16 кВт на квартиру, многоступенчатая система доочистки воды, принудительная вытяжная вентиляция, предусмотрены места для установки кондиционеров с подключением к стоякам отвода конденсата.
В подземный паркинг можно будет спуститься на лифте, есть кладовые помещения.
Двор без машин, гостевая парковка и зарядка для электромобилей на внешнем периметре дома.
Озеленение двора в стиле травяного сада, газоны и цветники с автополивом, разработана концепция архитектурной и ландшафтной подсветки. Купить квартиру-студию в новостройке на линии 7-я Васильевского острова в Санкт-Петербурге.




































































