


213 636 ₽/м²
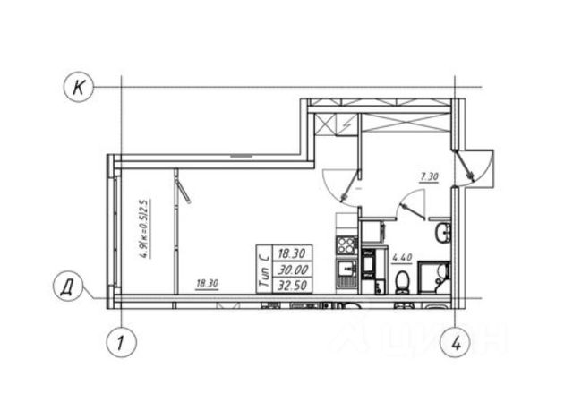
Арт. 129071486 Арт.129071486 В продаже просторная светлая студия с застекленной лоджией и выделенной прихожей в черте Санкт-Петербурга (городская прописка) ПРО КВАРТИРУ: Площадь 22 кв. м. Расположена на 9 этаже 12-этажного дома. Вид из окон на улицу. В квартире тихо. Студия с ремонтом. Большая комната с зоной кухни, просторная застекленная лоджия. Правильная прямоугольная форма студии позволяет максимально эффективно использовать пространство. Квартира полностью готова к проживанию. ПРО ДОМ: Современный дом 2019 года постройки в п. Ленсоветовский (Пушкинский райoн СПб). Зеленый активно развивающийся микрорайон с собственной инфраструктурой. Чистая парадная, без посторонних запахов, на этаже спокойные вежливые соседи. ПРО ИНФРАСТРУКТУРУ: Дом расположен в районе с продуманной инфраструктурой. Красивое озеленение придомовой территории, детские площадки. Рядом с домом 3 детских сада, 3 школы, МФЦ, отделение банка, стоматология и медицинский центр. Всегда найдется свободное парковочное место. Удобная транспортная доступность: Из поселка Ленсоветовский курсируют регулярные маршрутные такси и автобусы, обеспечивающие связь со станциями метрополитена "Купчино" и "Звёздная". На расстоянии пяти километров от комплекса расположена железнодорожная платформа "Детскосельская", откуда можно добраться до Витебского вокзала за 25 минут, а до платформы "Купчино" всего за 10 минут. Дорога до международного аэропорта Пулково занимает приблизительно 30 минут. ПРО ДОКУМЕНТЫ: Взрослый собственник. Квартира без маткапитала, без обременений, без перепланировок. Показы по договоренности, быстрый выход на сделку. Подходит под ипотеку и материнский капитал. Продается квартира-студия на вторичном рынке в поселке Шушары в Санкт-Петербурге.



















































































