127 793 ₽/м²
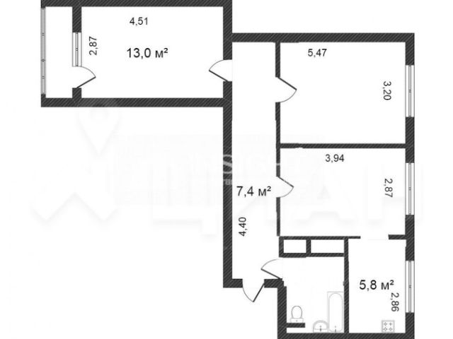
ID: 1915464 К продаже предлагается коммунальная квартира с окнами на три стороны в доме сталинской эпохи 1954 г.п. (бывшее общежитие). Поскольку продаваемый объект занимает почти весь первый этаж и имеет по плану два крыла и два входа, он прекрасно подойдет под любые бизнес-цели: это может быть как представительский офис, так и апартаменты или мини-отель. На плане выделенная цветом часть этажа - городское имущество, переведенное в нежилой фонд, является отдельным объектом недвижимости. Дом расположен в тихом зеленом месте в окружении таких же "сталинок". В трех минутах - ж/д станция Лигово, от которой очень быстро можно добраться как до центра (ст.м. Балтийская), так и до главных достопримечательностей в окрестностях Петербурга - Стрельны, Петергофа, Ораниенбаума. Поблизости также остановки общественного транспорта с удобным сообщением в другие районы города. В шаговой доступности - вся инфраструктура, обеспечивающая комфортное проживание и доступ к необходимым услугам и развлечениям: СФР, налоговая, школы, д/сады, магазины, кафе, аптеки, кинотеатр, Фитнес-хаус с бассейном, каток Ледовая арена и Рубеж. Благоприятна и экологическая обстановка Красносельского района: скверы, парки, близость Финского залива, отсутствие вредных производств и удачная роза ветров дарят ему чистый воздух. В квартире шесть комнат, в которых люди проживают на постоянной основе. Седьмая комната (19,1 кв.м) принадлежит городу и в данный момент не используется. Ремонты по дому: в 2017 г. обновлена крыша; в 2026 году планируется ремонт центрального отопления и систем водоотведения. Звоните, ответим на все интересующие вас вопросы и, конечно, приглашаем на просмотры. При необходимости поможем с переводом объекта в нежилой фонд.










































































