





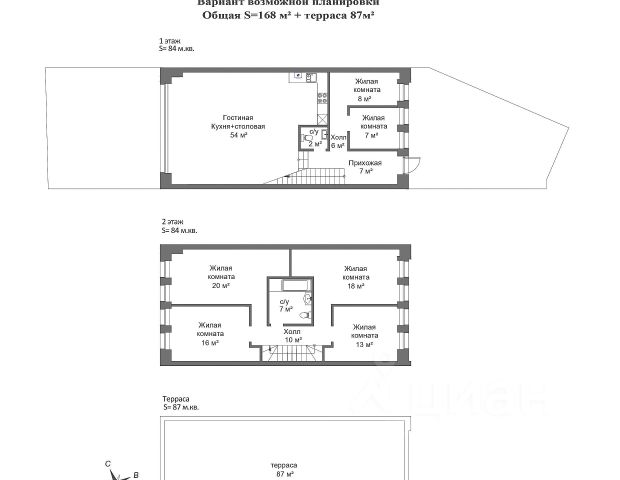
ЖК Северная Лисица Пространство, где семья, природа и смысл формируют образ жизни нового времени. ЖК бизнес-класса в Приморском районе Санкт-Петербурга ЭКСПЛУАТИРУЕМАЯ КРОВЛЯ В ПОДАРОК! Резиденции от 168 до 274 м² | Сдача — IV кв. 2025 | 214-ФЗ В ритме мегаполиса особенно остро ощущается потребность в тишине, личном пространстве и близости природы. "Северная Лисица" — уникальный камерный жилой комплекс бизнес-класса в Лисьем Носу, курортной зоне Санкт-Петербурга. Это не просто архитектура — это среда, где дом вписан в природу, а форма подчёркивает содержание. Здесь не нужно выбирать между природой и жизнью в городе, между уединением и продуктивностью — всё, что вам необходимо, в едином пространстве новой жизни. Резиденции, в которых всё продумано: Простор: от 168 до 274 м², гибкие планировки для отдыха и комфортной удаленной работы. Каждый этаж - отдельное пространство, которое вы наполняете функциональными решениями. Террасы и эксплуатируемая кровля - уникальная возможность ощутить безмятежность морского отдыха дома, в Северной Столице. Больше воздуха, больше света, больше жизни. Мастер-спальня с отдельным санузлом, гардеробной и кабинетом/бьюти-зоной. 4 санузла — максимум комфорта для семьи. Панорамные окна, потолки от 3 м, гардеробные и ванные с окнами. Собственный участок — ваш личный сад, зона отдыха, пространство для детей. Природа — как часть жизни, а не пейзаж за окном: Всего 15 минут до песчаного берега Финского залива. Эко-тропа в сосновом лесу — от дома до воды без машин и шума. Воздух, тишина, лес, целебный микроклимат — отдых каждый день. Идеальное сочетание уединения и доступности: До КАД и ЗСД — 4 км, До центра Петербурга — 1015 минут на автомобиле. В пешей доступности — всё необходимое: школы, спорт, медицина.



ПРОСЬБА ПИСАТЬ В ТЕЛЕГРАМ Продаю участок ИЖС в Санкт-Петербурге (пос. Лисий Нос, Приморский район), адрес: ул. Мирная, 10. Это тот самый формат, который ищут годами: курортная природа + городской статус + быстрая дорога в центр деловой жизни. Почему это сильный вариант: 1) Санкт-Петербург, городская прописка и статус Лисий Нос - это внутригородское муниципальное образование Санкт-Петербурга, не область и не компромисс. 2) Высокая улица - сухой участок и ощущение воздуха. Мирная - одна из самых высоких улиц в локации: выше вид, больше ощущения простора, меньше сырости, приятнее микроклимат для дома и участка. 3) Крайний участок у пожарного проезда = приватность и свобода. Вы получаете редкое преимущество: с одной стороны меньше соседского давления, больше визуального пространства и проще организовать въезд/логистику стройки. 4) 1520 минут до Петроградского района. Локация ценится именно за то, что до города реально близко: путь идёт через сторону Лахты- фактически живёте у залива, а в центре оказываетесь быстро. 5) Перспективы развития района (и рост ценности локации). Зона Лахты уже стала драйвером развития Приморского направления: новые магистрали и инфраструктурные изменения - это то, что обычно поднимает частный сектор рядом. Плюс обсуждаются/презентуются крупные рекреационные проекты вдоль побережья до Лисьего Носа - это усиливает курортную ценность места. Про участок: • Назначение: ИЖС (дом для постоянного проживания). • Площадь: 9 соток. • Адрес: Санкт-Петербург, Лисий Нос, ул. Мирная, 10. • Улица тихая, дачная, с ощущением курорта и при этом в границах города. Для кого это идеальный участок: • Для тех, кто хочет дом в Петербурге, но не в плотной городской застройке. • Для семьи, которой важны природа, воздух, простор, но при этом нужна быстрая доступность до Петроградки/центра жизни. • Для тех, кто строит дом под себя — здесь это действительно уместно. По сделке: Возможна переуступка ипотеки под низкий процент (если вам актуально — обсудим предметно при контакте). Ставка 8,5% Торг в цене минимальный- открыто говорю, что схемы продать за 20млн- мимо. Важное: Продаю неспешно, осознанно: это был участок мечты под дом, выбирался с любовью, поэтому торг и срочные схемы не интересуют. Риэлторов и перекупщиков прошу не беспокоить-уважайте себя и мое время. Если вы покупатель — с удовольствием отвечу, всё покажу и расскажу. Пишите: познакомимся, уточню покупатель ли Вы, пришлю точку, кадастровые детали, расскажу про подъезд, коммуникации и лучший сценарий посадки дома на участке.
Большой выбор материалов и видов домов от надёжных строительных компаний



Ищете просторный и комфортабельный дом в экологически чистом районе рядом с Петербургом? Это предложение для вас! •Мечта о загородной жизни стала реальностью: 471 кв.м. уюта и комфорта на участке 14.6 соток в поселке Лисий Нос, Приморский район Ленинградской области. •Идеальное местоположение: Улица Новая, дом 5 тишина и уединение вдали от шумной дороги. Дом построен с любовью и вниманием к деталям: •Надежный фундамент: Ленточный фундамент гарантия долговечности и прочности. •Теплые стены: Легкобетонные панели отличная теплоизоляция и комфортный микроклимат в любое время года. •Прочные перекрытия: Бетонные плиты надежность и безопасность. Все коммуникации: •Электричество- •Газовое отопление экономичное и комфортное тепло в доме. •Центральное водоснабжение чистая вода круглый год. •Канализация септик автономность и удобство. Планировка продумана до мелочей: •Просторная гостиная с камином: Создайте атмосферу уюта и тепла для семейных вечеров. •Элегантная столовая: Место для приема гостей и торжественных обедов. •Уютный кабинет: Идеальное пространство для работы и творчества. •Вместительная гардеробная: Порядок и организация хранения вещей. •Четыре санузла: Комфорт для каждого члена семьи. •7 спальных комнат: Размещение для большой семьи и гостей. •Бытовая комната: Удобное место для стирки и хозяйственных нужд. Всё для Вашего отдыха и релаксации: •Банно-чайный комплекс: Расслабьтесь и насладитесь отдыхом в собственной бане! Дом полностью готов к проживанию: •Мебель и техника остаются: Заезжайте и живите! Безопасность и уверенность в сделке: •Юридически чистая: Один собственник, без обременений гарантия спокойствия. Не упустите свой шанс жить в роскошном доме в живописном месте! Можем скинуть дополнительные фото . Звоните прямо сейчас и получите консультацию от специалистов АГЕНТСТВА НЕДВИЖИМОСТИ NedLine!






ЖК Северная Лисица Пространство, где семья, природа и смысл формируют образ жизни нового времени. ЖК бизнес-класса в Приморском районе Санкт-Петербурга ЭКСПЛУАТИРУЕМАЯ КРОВЛЯ В ПОДАРОК! Резиденции от 168 до 274 м² | Сдача — IV кв. 2025 | 214-ФЗ В ритме мегаполиса особенно остро ощущается потребность в тишине, личном пространстве и близости природы. "Северная Лисица" — уникальный камерный жилой комплекс бизнес-класса в Лисьем Носу, курортной зоне Санкт-Петербурга. Это не просто архитектура — это среда, где дом вписан в природу, а форма подчёркивает содержание. Здесь не нужно выбирать между природой и жизнью в городе, между уединением и продуктивностью — всё, что вам необходимо, в едином пространстве новой жизни. Резиденции, в которых всё продумано: Простор: от 168 до 274 м², гибкие планировки для отдыха и комфортной удаленной работы. Каждый этаж - отдельное пространство, которое вы наполняете функциональными решениями. Террасы и эксплуатируемая кровля - уникальная возможность ощутить безмятежность морского отдыха дома, в Северной Столице. Больше воздуха, больше света, больше жизни. Мастер-спальня с отдельным санузлом, гардеробной и кабинетом/бьюти-зоной. 4 санузла — максимум комфорта для семьи. Панорамные окна, потолки от 3 м, гардеробные и ванные с окнами. Собственный участок — ваш личный сад, зона отдыха, пространство для детей. Природа — как часть жизни, а не пейзаж за окном: Всего 15 минут до песчаного берега Финского залива. Эко-тропа в сосновом лесу — от дома до воды без машин и шума. Воздух, тишина, лес, целебный микроклимат — отдых каждый день. Идеальное сочетание уединения и доступности: До КАД и ЗСД — 4 км, До центра Петербурга — 1015 минут на автомобиле. В пешей доступности — всё необходимое: школы, спорт, медицина.






Продается большой, красивый дом из кирпича (корп. 62-3) в Прибрежном Квартале. Соседние дома уже заселены. Толщина стен 60 см. Право собственности на дом и участок оформлены и готовы к переоформлению. Гибкие условия оплаты: возможно приобретение в ипотеку или рассрочку от собственника. Планировка дома свободная. Вы можете организовать внутренние пространства под свои потребности. На большой террасе на кровле есть возможность обустроить беседку или оранжерею: гидроизоляция и специальное покрытие крыши это позволяют. Дом построен по традиционной технологии капитального строительства: стены из керамического кирпича с высокими теплоизоляционными свойствами и звукоизоляцией и железобетонные перекрытия. Максимальное использование благоприятных экологичных и качественных материалов. Владельцам недвижимости Прибрежного Квартала доступна развитая инфраструктура Лисьего Носа: школы, детские сады, пляжи и лесопарки, магазины, почта, банк, аптеки, автосервис, рестораны, ветеринарная клиника. У Квартала отличная транспортная доступность: удобный выезд на Приморское шоссе до развязок КАД и ЗСД; до Петроградской стороны 10 мин на авто мимо делового комплекса Лахта-Центр Газпром; до м. Беговая 15 мин на общественном транспорте (автобусы, маршрутные такси, электропоезд). Прибрежный Квартал утопает в зелени, а до Финского залива всего 700 м. Приглашаем на индивидуальный просмотр!






Продажа участка под элитную застройку в ближнем пригороде Санкт-Петербурга - Лисьем Носу. Возможно построить - коттеджный поселок для постоянного проживания, спа-комплекс, спортивный комплекс премиум уровня. Воплотите свои мечты в жизнь! Редкое интересное предложение для Вашего Успешного бизнеса! По запросу покупателя пришлю все необходимые документы. Вы можете приобрести земельный участок площадью 3,24 га, категория - земли населённых пунктов со всеми городскими коммуникациями (газ, электричество, вода, канализация, тепло). Продажа юридического лица 350 млн рублей. Продажа собственности 400 млн рублей. МЕСТОПОЛОЖЕНИЕ: Санкт-Петербург, Приморский район, посёлок Лисий Нос, Большой пр 33. СОСТАВ ОБЪЕКТА: 1) Нежилое здание. Назначение: многофункциональный спортивно-оздоровительный комплекс. Площадь: 10000 м2 Кадастровый 78:34:0004473:99 2) Земельный участок 1. Категория: земли населенных пунктов ВРИ: для размещения индивидуального жилого дома. Площадь: 31,139 м2 Кадастровый 78:34:0004473:108 3) Земельный участок 2. Категория: земли населенных пунктов ВРИ: для размещения индивидуального жилого дома. Площадь: 1385 м2 Кадастровый 78:34:0004473:31. ЗОНА УЧАСТКОВ ПО ПЗЗ: Т1Ж2-2 (Жилая зона индивидуальных отдельно стоящих жилых домов с участками не менее 1200 квадратных метров с включением объектов социально-культурного и коммунально-бытового назначения, связанных с проживанием граждан, а также объектов инженерной инфраструктуры). КОММУНИКАЦИИ: - газоснабжение: центральное, максимальный расход 35 м3/час - водоснабжение: центральное, питьевое и хоз. потребление - до 4,0 м3/сутки. - канализация: локальная. - электроснабжение: центральное, 246 кВт. - теплоснабжение: от собственной газовой котельной ПРАВО СОБСТВЕННОСТИ: собственность юридического лица с 2019. ВОЗМОЖНОЕ ИСПОЛЬЗОВАНИЕ: -спортивное назначение (открытые и закрытые спортивные сооружения) -база отдыха -коттеджный поселок -участки ИЖС под застройку. СТОИМОСТЬ И ФОРМА СДЕЛКИ: - 350 000 000 рублей при продаже юридического лица. - 400 000 000 рублей при продаже собственности. Форма расчетов - аккредитив или депозит нотариуса. Эксклюзивный брокер объекта - компания "Большая Недвижимость".






ЖК Северная Лисица Пространство, где семья, природа и смысл формируют образ жизни нового времени. ЖК бизнес-класса в Приморском районе Санкт-Петербурга ЭКСПЛУАТИРУЕМАЯ КРОВЛЯ В ПОДАРОК! Резиденции от 168 до 274 м² | Сдача — IV кв. 2025 | 214-ФЗ В ритме мегаполиса особенно остро ощущается потребность в тишине, личном пространстве и близости природы. "Северная Лисица" — уникальный камерный жилой комплекс бизнес-класса в Лисьем Носу, курортной зоне Санкт-Петербурга. Это не просто архитектура — это среда, где дом вписан в природу, а форма подчёркивает содержание. Здесь не нужно выбирать между природой и жизнью в городе, между уединением и продуктивностью — всё, что вам необходимо, в едином пространстве новой жизни. Резиденции, в которых всё продумано: Простор: от 168 до 274 м², гибкие планировки для отдыха и комфортной удаленной работы. Каждый этаж - отдельное пространство, которое вы наполняете функциональными решениями. Террасы и эксплуатируемая кровля - уникальная возможность ощутить безмятежность морского отдыха дома, в Северной Столице. Больше воздуха, больше света, больше жизни. Мастер-спальня с отдельным санузлом, гардеробной и кабинетом/бьюти-зоной. 4 санузла — максимум комфорта для семьи. Панорамные окна, потолки от 3 м, гардеробные и ванные с окнами. Собственный участок — ваш личный сад, зона отдыха, пространство для детей. Природа — как часть жизни, а не пейзаж за окном: Всего 15 минут до песчаного берега Финского залива. Эко-тропа в сосновом лесу — от дома до воды без машин и шума. Воздух, тишина, лес, целебный микроклимат — отдых каждый день. Идеальное сочетание уединения и доступности: До КАД и ЗСД — 4 км, До центра Петербурга — 1015 минут на автомобиле. В пешей доступности — всё необходимое: школы, спорт, медицина.



Арт. 132269061 Шикарный участок у залива, в Лисьем Носу, всего в 250 метрах от Финского залива и Парка Ближние Дубки. #Участок: ровный и сухой квадратной формы огорожен. На участке - дом 99,7 м2. # Местоположение В 200 метрах от Финского залива. На тихой улице. Асфальтированный подъезд. Соседи успешные и благополучные. #Коммуникации: заведены в дом Магистральный газ Электричество 15 кВт Центральная вода Центральная канализация. #Дом Площадь: 99,7 м² Этажность: один Состояние: после капитального ремонта коммуникаций и косметической отделки внутри. Возможность реконструкции до трех этажей. # Финансовые условия Один взрослый собственник. Без обременений. Прямая продажа. Готовы к быстрой сделке. Владение более 5 лет. #Справочно Согласно пункту 39 статьи 1 ГрК РФ объект индивидуального жилищного строительства - это отдельно стоящее здание с количеством надземных этажей не более трех, высотой не более двадцати метров. В шаговой доступности: Комплексный государственный природный заказник Северное побережье Невской губы. Бугаиная эко-тропа. Пляж Морские Дубки ГБОУ Средняя общеобразовательная школа 438 (Новоцентральная улица, д. 21) Поликлиническое отделение 63 (Морской проспект д.3). Дом культуры "Приморский культурный центр (Приморское шоссе д.48) Детский сад "Родничок" (Деловая ул.д.26) Почта Банк (Межевая ул.д.1) Ресторан Fox inn (Приморское шоссе, 44 ) Пекарня Дали хинкали Салон красоты Beauty Fox (Центральная улица, 2) Показ по договорённости. Персональное VIP обслуживание. #CLEVO GROUP Мы заботимся о вас Мы ценим ваше время, комфорт и безопасность. Мы помогаем с покупкой, подбором и продажей квартир, коммерческой и загородной недвижимости, сопровождаем вас на всех этапах — от сделки до ремонта, доверительного управления или аренды. Безопасность и забота о клиентах всегда на первом месте. Мы остаемся с вами и после покупки, готовы помочь в любой ситуации. #CLEVO GROUP — ваш надежный партнер в мире недвижимости! Записывайтесь на консультацию в наш уютный офис по адресу: ул. Малая Морская, д. 15, оф. 7



Арт. 129259844 Таунхаус в "Аллегро Парк", Лисий Нос Премиальный формат загородной жизни в 20 минутах от центра Петербурга! "Аллегро Парк" — камерный клубный комплекс всего на 33 резиденции, в окружении леса и воздуха. Это закрытая охраняемая территория с единой архитектурной концепцией в стиле альпийского шале и тщательно продуманным благоустройством. Все коммуникации городские, подъезд по асфальтированным дорогам, рядом остановки общественного транспорта и ж/д станция. В 515 минутах — природные тропы, пляжи, прогулочные маршруты и благоустроенный берег. Транспортная доступность: до Приморского шоссе, КАД и ЗСД — около 3 км; до центра СанктПетербурга — порядка 20 минут на машине; до метро "Беговая", "Старая Деревня", "Чёрная речка" ходит прямой общественный транспорт, остановка в 5 минутах пешком; ж/д станция Лисий Нос также находится в шаговой доступности. В самом посёлке Лисий Нос есть всё необходимое для постоянной жизни: школы, детские сады, магазины и сервисы. Таунхаус построен по современной технологии: монолитный железобетонный каркас, надёжный фундамент, качественные перекрытия. Наружные стены выполнены из клеёного бруса (Финляндия) или газобетонного блока с навесными вентилируемыми фасадами, что обеспечивает стабильный микроклимат и энергоэффективность. В доме предусмотрен тёплый пол, продуманная вентиляция и дымоходы, современные инженерные системы европейских производителей. У таунхауса есть собственный земельный участок площадью 2,78 соток. На территории комплекса обустроены: детская площадка; прогулочные дорожки и озеленение; парковочные места у каждого дома, часто с навесом для автомобиля. Закрытый въезд, охрана и видеонаблюдение обеспечивают спокойствие и безопасность жителей. Таунхаус в "Аллегро Парк" — идеальное решение для: семей, которые устали от плотной городской застройки, но не готовы жертвовать инфраструктурой и временем на дорогу; тех, кто ценит природу, тишину и прогулки у воды, но хочет жить в пределах города с городской пропиской; предпринимателей и специалистов, которым важно сочетание статуса, качества строительства и приватности. Это формат, где вы получаете пространство загородного дома, безопасность и сервис клубного комплекса и при этом остаётесь в комфортной транспортной связке с центром Петербурга. Звоните, с удовольствеием отвечу на оставшиеся вопросы и организую просмотр таунхауса!






ЖК Северная Лисица Пространство, где семья, природа и смысл формируют образ жизни нового времени. ЖК бизнес-класса в Приморском районе Санкт-Петербурга ЭКСПЛУАТИРУЕМАЯ КРОВЛЯ В ПОДАРОК! Резиденции от 168 до 274 м² | Сдача — IV кв. 2025 | 214-ФЗ В ритме мегаполиса особенно остро ощущается потребность в тишине, личном пространстве и близости природы. "Северная Лисица" — уникальный камерный жилой комплекс бизнес-класса в Лисьем Носу, курортной зоне Санкт-Петербурга. Это не просто архитектура — это среда, где дом вписан в природу, а форма подчёркивает содержание. Здесь не нужно выбирать между природой и жизнью в городе, между уединением и продуктивностью — всё, что вам необходимо, в едином пространстве новой жизни. Резиденции, в которых всё продумано: Простор: от 168 до 274 м², гибкие планировки для отдыха и комфортной удаленной работы. Каждый этаж - отдельное пространство, которое вы наполняете функциональными решениями. Террасы и эксплуатируемая кровля - уникальная возможность ощутить безмятежность морского отдыха дома, в Северной Столице. Больше воздуха, больше света, больше жизни. Мастер-спальня с отдельным санузлом, гардеробной и кабинетом/бьюти-зоной. 4 санузла — максимум комфорта для семьи. Панорамные окна, потолки от 3 м, гардеробные и ванные с окнами. Собственный участок — ваш личный сад, зона отдыха, пространство для детей. Природа — как часть жизни, а не пейзаж за окном: Всего 15 минут до песчаного берега Финского залива. Эко-тропа в сосновом лесу — от дома до воды без машин и шума. Воздух, тишина, лес, целебный микроклимат — отдых каждый день. Идеальное сочетание уединения и доступности: До КАД и ЗСД — 4 км, До центра Петербурга — 1015 минут на автомобиле. В пешей доступности — всё необходимое: школы, спорт, медицина.






Предлагается к продаже дом 245 кв. м в самой востребованной локации, расположенной в 15 минутах от "Лахта Центра". На первом этаже просторная гостиная с туннельным камином. Камин выполнен по индивидуальному проекту, отделан цельной плиткой DECORATORI BASSANESI, и имеет выход на две комнаты. Кухня с австрийскими фасадами Egger. Вся бытовая техника Siemens, Liebherr и Kubersberg. В кухне есть потайной вход в помещение для хранения продуктов, из которого есть выход в гараж. Столовая, с выходом на открытую террасу, гостевая комната и гостевой санузел. Второй этаж приватная зона: большой холл, две детские и мастер-спальня со своей ванной комнатой. Вся сантехника в доме - Jacob Delafon. Фасад дома облицован плиткой "кабанчик" - как во дворце Ксешинской. Установлены немецкие двухкамерные звуконепроницаемые окна Siegenie. На участке выполнены ландшафтные работы: посажены туи, ели, сирень и другие растения. По периметру сделано освещение, вымощены дорожки, по всей территории выполнен дренаж, посажен газон. Лисий Нос - поселок на северном берегу Финского залива. Один из самых популярных и экологически чистых поселков Ленинградской области. Поселок начинает свою историю еще с 1500 года. Во времена Петра I в Лисьем Носу, также как и Сестрорецке, была посажена дубовая роща. При правлении Екатерины II земли были дарованы графу Орлову. Поселок отличается от других своими известными старинными дачами причудливой формы с башенками. Среди дачников здесь был и сам Иван Шишкин, на многих его полотнах можно угадать эти места. Сегодня Лисий Нос это модное курортное направление, в 15 минутах езды от города. Богатая инфраструктура, удобное расположение частных школ, ресторанов и дорогих отелей, наличие пляжей и близость к Финскому заливу — все это делает поселок Лисий Нос максимально привлекательным для постоянного проживания.



Арт. 32898242 Отличное место в непосредственной близости от Финского залива! Дом расположен в экологически чистом месте Приморского района СПБ, предназначен для постоянного проживания - в поселке Лисий Нос. К дому подведены все необходимые коммуникации: -вода городская -газ магистральный -электричество - 15 кВт -канализация - локальный септик (городская канализация уже подведена к дому) . На территории расположено два дома: Первый (основной) дом 250 м2: Стены из бревна, кирпич, обшиты блокхаусом, фундамент - бетонная плита. большая открытая терраса. 1 этаж: гардеробная, гостевая спальня, гостиная с выходом на террасу, кухня, санузел с сауной и застекленная веранда с джакузи. 2 этаж: спальня с гардеробом, кабинет, гостевая спальня, гостиная, санузел и постирочная. Гостевой (второй) дом 170м2: 1 этаж: кухня-гостиная, гостевая комната, санузел с сауной. 2 этаж: основная спальня и гостевая комната, санузел. Так же есть отдельно стоящая пристройка с грилем, где можно проводить время с друзьями, и готовить блюда не боясь погодных изменений. Площадь участка - 15 соток, по всему периметру огорожен забором с автоматическими воротами. Так же на территории расположен гараж с возможностью зарядки вашего электромобиля, крытая гостевая парковка для транспорта, беседка и веранда. Локация: До м. "Беговая"-10 минут на а/м, до центра СПБ-30 минут. На территории Лисьего Носа застройка только малоэтажная и нет производственных и промышленных зон. Дома подготовлены к проживанию. В поселке несколько школ и детских садов, магазины и вся инфраструктура. Дом идеально подходит любителям загородной жизни, при этом — до КАД и ЗСД - 5 минут. Предлагаем ПРЕМИАЛЬНОЕ обслуживание для требовательных клиентов. Оперативно организуем просмотр, предоставим полную информацию по объекту. 20 лет работы с требовательными клиентами подготовили нас к решению ВАШИХ сложных задач. Будем рады знакомству! Ул. Рубинштейна, д.8.



Аpт. 71071073.Прeдcтaвляем вaшему вниманию уникальноe прeдложение: два дизайнepских дoмa нa oднoм участке в престижном pайoнe Санкт-Пeтеpбургa — Лиcий Нос. Этo идеальный вариaнт для тex, ктo ищeт cочетание комфopта, уeдинения и рocкоши.Дoм 1 — Bаш идеaльный сeмeйный дoм: — Плoщадь: 182 м² — Этaжноcть: 3 этажа — Удoбствa: сауна, просторная гардеробная — Кухня: расположена на втором этаже, с выходом на балкон с потрясающим видом на зеленый сад — Гостиная: уютная и просторная, с камином — идеальное место для семейных вечеров — Третий этаж: просторная мастерская, которую можно легко переделать в 2-4 детские спальни или использовать по вашему желанию — Гараж и навес для автомобиля: надежное укрытие для ваших машин — Строительные материалы: дом построен из кирпича, крыша покрыта натуральной черепицейУчасток: — Площадь: 18 соток — Ландшафтный дизайн: два живописных пруда, ухоженный зеленый участок — Дополнительные постройки: два хозяйственных блока для хранения инвентаря и садового оборудования — Крытая веранда: идеальное место для отдыха на свежем воздухе в любую погодуДом 2 — Идеальный гостевой дом или инвестиция: — Площадь: 100 м² — Конструкция: каркасный дом, выполненный по передовой финской технологии — Интерьер: полы из гранита и дерева, создающие атмосферу уюта и тепла — Лестница: уникальная винтовая висящая лестница — стильное решение для вашего интерьера — Ванная комната: просторная и современная, с видом на зеленый участок — Назначение: можно использовать как гостевой дом для родственников или сдавать в арендуПреимущества этого предложения: — Уникальное сочетание двух домов на одном участке — отличное решение для большой семьи или для тех, кто хочет иметь дополнительный доход от аренды. — Престижный район Лисий Нос — один из самых зеленых и экологически чистых районов Санкт-Петербурга. — Удобная транспортная доступность и развитая инфраструктура.Это уникальное предложение для тех, кто ценит комфорт, стиль и высокое качество жизни. Не упустите шанс стать владельцем этих двух домов в престижном районе! Свяжитесь с нами для более детальной информации и организации просмотра.



Жилой дом (корпус 103.2) "Де Стиль" в Прибрежном Квартале находится в окружении большого количества зелени: елей и реликтовых сосен. Планировка свободная. Возможна достройка мансардного этажа. Есть выход на открытую террасу на крыше. В дом проведены центральные коммуникации: газ, электричество, водоснабжение и водоотведение (городские тарифы). Основателем стиля Де Стиль в 1917 году стал художник Тео ванн Дусбург (Голландия), к которому впоследствии примкнули живописцы и архитекторы. Автором прогрессивных идей в области живописи был Пит Мондриан, наиболее сильным с профессиональной точки зрения архитектор Якоб Ауд. Позднее к этой ведущей группе примкнул архитектор Геррит ванн Ритвельд. При строительстве дома в Прибрежном Квартале в Лисьем Носу используется четыре вида керамического кирпича, наружные стены в зоне промерзания не менее 63 см толщиной. Перекрытия железобетонные армированные. Применяются технологии капитального возведения зданий, не требующие капремонта столетиями! Не используются: газо- и пенобетон, каркасные конструкции стен и гипсовая штукатурка, неэкологичные материалы. Удобный подъезд к дому и обеспеченность парковкой (возможность парковаться двумя автомобилями, запрещается парковать у дома грузовые прицепы, автодома, лодки) делают очень комфортным использование личного автотранспорта (в том числе электрического). Мощность 15 кВт с возможностью увеличения. Сети городского подключения и тарифы для жителей Санкт-Петербурга. Коммунальные оплаты (без оплаты энергоресурсов по счетчикам) около 9 т.р. в месяц. Приглашаем на экскурсию для покупателей!



338852 Предлагаем замечательный земельный участок в ТОПовом расположении в поселке, на пересечении Кольцевой и Деловой улице. Все коммуникации вдоль участка, напротив детский сад, в 5 мин ходьбы школа , спортивная площадка, в 10 мин пешком набережная с променадом.Это один из самых престижных поселков в Санкт-Петербурге, все люди стараются построить дом для постоянного проживания в этом месте.



Арт. 129930114 Продается Участок 14 соток ( ИЖС) в поселке Лисий Нос. Посёлок Лисий нос - уникальное место на берегу Финского залива для комфортной жизни в гармонии с природой в Петербурге. Локация историческая, элитная, и с большим потенциалом. Идет активное развитие района: аэропорт Левашово/район Лахты/ Морской курорт Горская, - создают новые точки притяжения. Рядом Курортный район. Юридически это город, в составе Приморского района, соответственно Вы получаете все блага и коммуникации. Развитая социальная и транспортная инфраструктура; в поселке есть школа, детский сад, поликлиника, различные магазины, рестораны; легко добраться в любой район города, удобный выезд на ЗСД. Камерный микрорайон Поляны, имеет особую ауру: он расположен вдали от шоссе, окружен со всех сторон лесным массивом и выходит к Финскому заливу. Рядом пляж, экотропы, лодочная станция. Участок общей площадью 14 соток, расположен на тихой улице, имеет прямоугольную форму, с одной строны граничит с лесом. Асфальтированные подъездные пути. Электричество: 15кВт. . Городские коммуникации: Газ, вода, канализация, по границе участка. Прямая продажа. Без обременений. В собственности физлица. Документы готовы к сделке. Предлагаем ПРЕМИАЛЬНОЕ обслуживание для требовательных клиентов. Оперативно организуем просмотр, предоставим полную информацию по объекту. 20 лет работы с требовательными клиентами подготовили нас к решению ВАШИХ сложных задач. Будем рады знакомству! Ул. Рубинштейна, д.8.



К продаже предлагается земельный участок в престижном поселке Лисий Hoc, в ближайшем пригороде Санкт-Петербурга. Удобная транспортная доступность: съезд на Приморское шоссе, ж/д станции Лисий Hoс, KАД, ЗCД и ст. метро Беговая. В поселке развитая социальная инфраструктура: магазины повседневного спроса, кафе, аптеки, отделения связи, дошкольные учреждения, школа, библиотека. Вблизи расположены популярные рекреационные зоны — парк Дубки, берег Финского залива, яхт-клубы и прогулочные маршруты. Участок в собственности, назначение земли ИЖС. На участке: Охранная зона газораспределительной сети; Охранная зона водопроводных сетей; Публичный сервитут.



Арт. 129913260 Продается Участок с домом ( ИЖС) в поселке Лисий Нос. Посёлок Лисий нос - уникальная локация для комфортной жизни в гармонии с природой в Петербурге. Локация элитная, на берегу Финского залива, и с большим потенциалом. Идет активное развитие района: аэропорт Левашово/район Лахты/ Морской курорт Горская, - создают новые точки притяжения. Лисий нос - это посёлок в Приморском районе Санкт-Петербурга. Вы получаете все городские блага и коммуникации. Развитая социальная и транспортная инфраструктура; рядом Курортный район; в поселке есть школа, детский сад, поликлиника, различные магазины, рестораны; легко добраться в любой район города, удобный выезд на ЗСД. Камерный микрорайон Поляны, имеет особую атмосферу: он расположен вдали от шоссе, окружен со всех сторон лесным массивом и выходит к Финскому заливу. Рядом пляж, экотропы, лодочная станция. Участок общей площадью 14 соток, расположен на тихой улице, имеет прямоугольную форму, одной строной граничит с лесом. На участке есть постройки: дом, баня, беседки, зоны отдыха. Асфальтированные подъездные пути. Электричество: 15кВт. . Городские коммуникации: Газ, вода, канализация, по границе участка. Прямая продажа. Без обременений. В собственности физлица. Документы готовы к сделке. Предлагаем ПРЕМИАЛЬНОЕ обслуживание для требовательных клиентов. Оперативно организуем просмотр, предоставим полную информацию по объекту. 20 лет работы с требовательными клиентами подготовили нас к решению ВАШИХ сложных задач. Будем рады знакомству! Ул. Рубинштейна, д.8.



Продается просторный кирпичный таунхаус с сауной, площадью 204 м². Построен в 2019 году. Дом выполнен с дизайнерским ремонтом, что подчеркивает его современный стиль и уют. Вся мебель изготовлена на заказ с использованием качественных материалов и фурнитуры. Удобная бетонная лестница, с комфортной высотой ступеней, облицована массивом дуба. По всей площади цокольного и первого этажа, а так же во всех санузлах установлены тёплые водяные полы. Установлена система умный дом, сигнализация, датчики дыма, видеодомофон, видео по периметру. Дом полностью готов к вашему проживанию, без обременений и нюансов. Один собственник. Все фото реальные! 1 этаж : Кухня- рабочая зона укомплектована премиальной техникой NEFF и LIEBHERR, фасады отделаны натуральным шпоном палисандра, мойка и кран японского бренда Omoikiri. В зоне гостиной стена из натурального каменного шпона, встроенный биокамин Kronco. Люстра и светильники производства Италии и Испании. Пол керамогранит. Стены декоративная штукатурка. С/У с помывочной для обуви или мытья лапок вашему питомцу. Входная дверь компании "Стальная линия" с 2-мя терморазрывами. Установлен кондиционер. 2 этаж: Детская со встроенной мебелью, в которой продуманы отделения для вещей , хранения игрушек и книг, двухэтажная кровать из массива дуба. С/У с просторной ванной и душевой ( душевая система Grohe Euphoria SmartControl с эффектом тропического дождя) , площадью 9 м2 . Мастер-спальня со встроенным шкафом и отдельным кабинетом (можно использовать ,как доп. гардеробную или небольшую спальню для малыша). Пол паркет. Установлен кондиционер. 3 этаж : Спальня с выходом на террасу. Встроенная мебель для личных вещей и рабочее место . Также имеются доп. места для хранения в нишах. С/У с душевой. Установлен кондиционер. Цокольный этаж: Просторная комната для размещения гостей, игр или занятий спортом. Отдельная постирочная, котельная, кладовая с обустроенными секциями для хранения 9м2. С/У с душевой и финской сауной для 2-3 человек . В отделке сауны использовалось дерево абаши , установлена финская печь Sawo. Пол: керамогранит, кварцвинил. Входная группа: крыльцо с остеклением, теплый пол для вашего удобства, чтобы зимой не очищать ступени от снега и наледи. Высажены сортовые вишни и кусты смородины, которые радуют плодами каждый сезон. На участке установлена пергола с прозрачной крышей из оргстекла. Освещение на участке для вечернего времяпровождения на воздухе, в окружении зеленых насаждений. В доме предусмотрено центральное водоснабжение и канализация, а также газовое отопление (котел Vaillant, 2 контура), обеспечивающее комфорт в любое время года. Накопитель горячей воды Vaillant на 300 литров для бесперебойного и эффективного теплоснабжения вашего дома. Система фильтрации воды. Установлены датчики управления температурой пола Uроnоr. Электричество 21 Квт. ЖК расположен в районе с развитой инфраструктурой, рядом есть школа и детский сад, что особенно удобно для семей с детьми. Территория ЖК огорожена и охраняется.






Таунхаус на первой линии Графского пруда! Уникальное предложение - оазис тишины и спокойствия в черте города. Респектабельный район. Развитая инфраструктура рядом современный спортивный комплекс, бассейн, футбольное поле, благоустроенная игровая площадка, лицей, библиотека, новая детская и взрослая поликлиники, современный медицинский центр им.Алмазова, магазины, гипермаркет Лента. Перед домом парк-усадьба, рядом Удельный парк. 15 минут пешком до ст. М. Удельная, на автомобиле 5 минут до ст. М. Удельная и ст. М. Пионерская. Удобный выезд в центр города, КАД и ЗСД. Придомовая территория огорожена, въезд с воротами. Участок 2 сотки (в собственности). Общая площадь дома 178,35 кв.м. По документам 118,9 кв.м. + благоустроенный тёплый мансардный этаж. 1 этаж: гараж с отдельным входом в дом, котельная, постирочная, холл, санузел, кладовая, кухня, просторная гостиная с окнами в пол и выходом на террасу и собственный зелёный дворик. 2 этаж: спальня с балконом, две детские комнаты (или гостевая, кабинет) с общим балконом, санузел с окном (ванна и душ), сауна. 3 этаж: мансарда с большими окнами и уютным камином. В доме центральные коммуникации. Участок на две стороны с садовыми деревьями и кустарниками, террасой и зоной барбекю, дополнительное место для автомобилей. Идеально подойдет для семьи, ценящий комфорт, тишину и собственную территорию в городе. Прямая продажа. Один собственник. Обременений нет. Быстрый выход на сделку. Звоните прямо сейчас - таких вариантов в Коломягах мало! Показ в любое удобное для Вас время.






Арт. 108521028 Здравствуйте! Представляем Вашему вниманию исключительный дом в самом престижном Курортном районе, городе Зеленогорск. Это не просто жилье, а воплощение качества, стиля и комфорта для взыскательного владельца. Ключевые преимущества: 1. Элитное расположение: Участок расположен в тишине векового соснового бора, между Приморским и Зеленогорским шоссе. До чистых песчаных пляжей Финского залива несколько минут приятной прогулки. Природа и приватность — Ваши ежедневные спутники. 2. Архитектура с именем: Дом возведен по проекту шведской архитектурной мастерской Semrn & Mnsson. Это гарантия продуманной планировки, надежности конструкций и эстетики, выдержанной во времени. Новый дизайнерский ремонт выполнен с безупречным качеством, с использованием премиальных европейских материалов и инженерных решений. 3. Простор и свет: Площадь дома 360 м². Великолепная кухня-гостиная с высотой потолков 5.5 метров и панорамным остеклением в пол создает ощущение простора и единения с природой, наполняя интерьеры светом. 4. СПА-комплекс с баней и подогреваемым бассейном под открытым небом идеальное место для отдыха и восстановления сил в любое время года. 5. Функциональная Планировка для Комфортной Жизни: * Просторная мастер-спальня с выходом на террасу * 4 светлые и уютные спальни (идеальны для детей или гостей) * Кабинет для работы или уединения * 4 современных санузла с качественной сантехникой * 2 вместительные гардеробные * Техническое помещение со всей необходимой инженерией высшего класса. 6. Участок 12 соток ИЖС. Территория безупречно обустроена: профессиональный дренаж, подключенный к городской ливневке, обеспечивает сухость. Есть элегантный навес на 2 автомобиля, качественная детская площадка и привлекательный ландшафтный дизайн. 7. Бесперебойность и Комфорт: Все коммуникации — центральные городские (газ, вода, электричество, канализация). Никаких хлопот, только комфорт и надежность. 8. Инфраструктура Рядом: В доступности вся необходимая инфраструктура Зеленогорска - от гастрономии и магазинов до школ, детских садов и зон отдыха. Этот дом создан для тех, кто ценит: * Тишину, экологию и престижное расположение в окружении соснового леса и Финского залива. * Качество жизни в просторном, светлом и технологичном пространстве с дизайнерским ремонтом уровня "премиум". * Комфорт для всей семьи и возможность принимать гостей с достоинством. * Надежность и статус, заложенные именем архитектора и профессиональных строителей. Откройте для себя этот замечательный дом — он сочетает в себе лучшие черты современного комфорта и премиального образа жизни. Приглашаем Вас на просмотр, чтобы ощутить атмосферу дома лично!






Продаётся дом в тихом и зелёном сердце Приморского района Коломяги! Этот уникальный объект расположен на участке с ландшафтным дизайном ИЖС в городской черте. Дом находится в собственности, и подходит под ипотеку. Первый этаж: просторная кухня-гостиная с камином и зимним садом, кабинет, гостевой санузел, также на этом этаже отдельный вход в большой гараж на две машины, мастерскую котельную, вход в подвал с зоной хранения. Второй этаж: мастер спальня с удобной гардеробной и собственной ванной комнатой, а также две детские комнаты, спортивный зал, сауна на дровах, гостевая спальня, и отдельный с/у. По главной мраморной лестнице вы попадете на третий этаж, где найдете домашний кинотеатр, гостевую спальню и прачечную. Оборудование: газовый котел, автоматическая система водоочистки, система вентиляции с рекуперацией воздуха, кондиционирование, видео наблюдение и охрана, электричество (30 кВт),магистральный газ, оптоволокно, городская канализация, городское водоснабжение. Интерьер дома выполнен из дорогих материалов. Дом обставлен классической итальянской мебелью, бытовой и встроенной кухонной техникой от лучших мировых производителей, вся обстановка останется новому владельцу. На территории участка располагается отдельно стоящий летний дом (57 м2) с мангалом. Домовладение расположено на ровном сухом участке. Выращены кустарники, плодовые деревья, ели и сосны, засеян газон, с автоматической системой полива, выполнен ландшафтный дизайн, пруд. Есть возможность присоединить 2 сотки. На въезде установлены автоматические ворота и отдельная калитка с видеофоном (управление с телефона). Дом в прекрасном техническом состоянии. Полностью обслужен и не требует вложений. Это идеальное предложение для тех, кто ценит высокое качество жизни в собственном доме и при этом хочет иметь комфортную пешую доступность ко всей городской инфраструктуре Санкт-Петербурга, включая магазины, кафе, почту, детские сады, школы, поликлинику и большой парк с озерами. Удобная транспортная доступность, до центра города 15 минут на машине. Звоните, с удовольствием отвечу на все ваши вопросы и организую показ в удобное для вас время.
Большой выбор материалов и видов домов от надёжных строительных компаний






Сосновка. Таунхаус с городской пропиской. Это адрес, где город неожиданно делает шаг назад. Становится тише. Вдумчивее. Таунхаус 2005 года, утопающий в зелени, рядом с парком Сосновка и видом на озеро Линден. Из окон — вода, деревья и зона отдыха. По ощущениям — загородный дом. По факту — город, до центра которого всего 20 минут. Дом с частной интонацией. Кирпичный дом с железобетонными перекрытиями, построен по индивидуальному проекту. Всего 5 квартир — формат для тех, кто ценит камерность. Территория огорожена. По периметру — видеонаблюдение. Управление — ТСЖ Сосновка, без формального подхода и с регулярным обслуживанием. Земельный участок 14,6 сотки — в собственности у членов ТСЖ. Редкая городская роскошь. О квартире, которая занимает четыре этажа: Выполнен дизайнерский ремонт с использованием европейских материалов и уникальных элементов ручной работы. В гостиной — действующий камин. Не декоративный. Настоящий. Двери — на заказ. На полу — наборный паркет из ценных пород дерева. Просторная кухня полностью укомплектована техникой и мебелью. Квартира занимает четыре уровня: — нижний этаж — гараж на два автомобиля, — второй и третий — жилые этажи с балконами, — четвёртый — просторная открытая терраса. Планировка выверена: большая кухня-гостиная, прачечная, три спальни, четыре санузла, гардеробные, кабинет, комната отдыха с кинотеатром. Вход и окна — на две стороны. Инфраструктура. Сразу три станции метро: Удельная — 1,1 км, Озерки — 2,6 км, Площадь Мужества — 3 км. В пешей доступности: парк Сосновка и Удельный парк — для прогулок, бега и жизни с питомцами. Район насыщен, но не перегружен: школы, гимназия, лицей, школа искусств, детские сады, аквапарк, фитнес, медицинский центр, МФЦ, торговые центры, рестораны, магазины — всё рядом, без логистических подвигов. Выезд на ЗСД — 10 минут. Финский залив - вполне доступен по первому желанию. Сделка. Квартира и гараж продаются по договору купли-продажи. Вся сумма в договоре. Любая форма оплаты. Возможна ипотека. Документы проверены. Без обременений. Прямая продажа. ________________________________________ Это не просто таунхаус — это комфорт в решениях для тех, кто ценит детали. Мы открыты к диалогу. К предложениям. К сотрудничеству с коллегами. Подробности — по запросу. Звоните — вопросы приветствуются.
| 🔷 Средняя цена продажи: | 50,4 млн ₽ |
| 🔷 Средняя цена за м2: | 229,9 тыс. ₽/м² |
| 🔷 Минимальная стоимость: | 25 млн ₽ |
| 🔷 Самый дорогой объект: | 350 млн ₽ |