Мы используем куки-файлы. Соглашение об использовании
Помещение свободного назначения, 2 163 м²
Площадь2 163 м²
Этаж1 из 5
Отчёт о привлекательности объектаУзнайте, насколько помещение и район подходят для вашего бизнеса
Что входит в отчёт
  • Охват населения
  • Пешеходный трафик
  • Автомобильный трафик
  • Средний бюджет семьи по району
  • Арендные ставки рядом
  • Точки притяжения
  • Конкуренты в радиусе 1 км
  • Рекомендации по выбору места для бизнеса
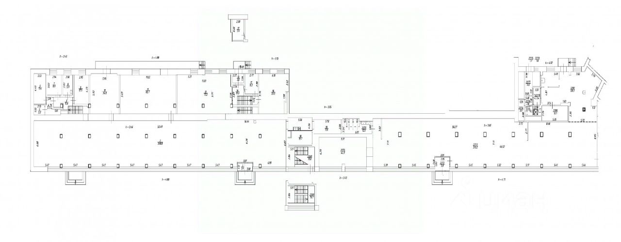
Арт. 110896534 Сдается в аренду коммерческое помещение, общей площадь. 2163м.кв. На пересечении Лермонтовского проспекта и набережной реки Фонтанки На территории двух отелей с общим номерным фондом 1011 номеров. Первый этаж и второй этажи Первый этаж -1107 м. кв Второй этаж - 1014 м. кв подвал - 42м. Отдельный вход с улицы Панорамные окна в пол. Высокие потолки 4.15 м. Открытая планировка Open space на первом этаже. Колонны с шагом 5.5м Три запасных выхода. Четыре точки подключения мокрых зон. На втором этаже кабинетная планировка. Лифты в каждом крыле. Электрическая мощность 150 кВт (до 400 кВт возможно) Отопление от собственной кательной. Большая парковка перед помещением 3000 м. кв. + Комиссионные агентству 50% со стороны Арендатора Предлагаем ПРЕМИАЛЬНОЕ обслуживание для требовательных клиентов. Оперативно организуем просмотр, предоставим полную информацию по объекту. 20 лет работы с требовательными клиентами подготовили нас к решению ВАШИХ сложных задач. Будем рады знакомству! Ул. Рубинштейна, д.8.
lock

Войдите или зарегистрируйтесь
для просмотра информации

Просматривайте условия сделки и всю информацию об объекте
Сохраняйте фильтры в поиске и не вводите заново
Доступ к избранному с любого устройства
Неограниченное добавление в избранное
Позвоните автору
Вам ответят на все вопросы
Остались вопросы по объявлению?
Позвоните владельцу объявления и уточните необходимую информацию.
  • Инфраструктура
  • Похожие рядом
  • Общая площадь2 163 м²
Автономное отопление
Помощь надёжных риелторов
Риелтор партнёр Циан поможет купить или продать любую недвижимость
2 000 000 ₽/мес.

Прямая аренда (от года), доступны арендные каникулы, обеспечительный платёж 2000000 ₽, предоплата за 1 месяц

26 545 $/мес.
22 638 /мес.
Цена за метр
11 096 ₽ в год
Налог
НДС включен: 360 655 ₽
Комиссия
50%
Коммунальные платежи
не включены
Эксплуатационные расходы
не включены
Агентство недвижимости
Документы проверены
5,0・17