Мы используем куки-файлы. Соглашение об использовании
Площадь83,5 м²
Этаж5 из 6
ПомещениеСвободно
Отчёт о привлекательности объектаУзнайте, насколько помещение и район подходят для вашего бизнеса
Что входит в отчёт
  • Охват населения
  • Пешеходный трафик
  • Автомобильный трафик
  • Средний бюджет семьи по району
  • Арендные ставки рядом
  • Точки притяжения
  • Конкуренты в радиусе 1 км
  • Рекомендации по выбору места для бизнеса
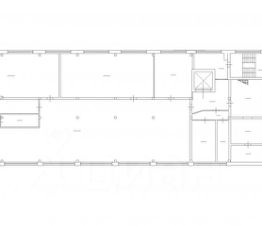
Производственное помещение 83,5 кв. м для ювелирной мастерской. 5-й этаж здания. Светлые кабинеты с очень хорошим освещением. Возможно размещение сразу нескольких мастеров: площадь поделена на кабинеты. Также возможно обустроить отдельный кабинет для размещения сейфа и хранения материалов. Огромным плюсом является наличие собственной моечной зоны. Также помещение подходит для обучения ювелирному делу. Есть грузовой лифт грузоподъемностью 2 тонны (2 х 1,9 х 2,5 м). Проведены необходимые инженерные коммуникации: освещение, отопление, выделенная электроэнергия, ХВС, водоотведение. Отделка: светлые стены, линолеум на полу. Круглосуточная охрана, ведётся видеонаблюдение. Ближайшая станция метро "Нарвская". В пешей доступности остановки наземного транспорта. Удобный съезд на улицу Швецова с проспекта Стачек, а также с улицы Маршала Говорова. В пешей доступности есть столовая.
lock

Войдите или зарегистрируйтесь
для просмотра информации

Просматривайте условия сделки и всю информацию об объекте
Сохраняйте фильтры в поиске и не вводите заново
Доступ к избранному с любого устройства
Неограниченное добавление в избранное
Позвоните автору
Вам ответят на все вопросы
Остались вопросы по объявлению?
Позвоните владельцу объявления и уточните необходимую информацию.
  • Инфраструктура
  • Похожие рядом
Помощь надёжных риелторов
Риелтор партнёр Циан поможет купить или продать любую недвижимость
Агентство недвижимости
Суперагент
62 625 ₽/мес.

Прямая аренда (от года), доступны арендные каникулы, обеспечительный платёж 62625 ₽

837 $/мес.
716 /мес.
Цена за метр
9 000 ₽ в год
Налог
НДС включен: 11 293 ₽
Комиссия
нет
Коммунальные платежи
не включены
Эксплуатационные расходы
не включены
Агентство недвижимости
Суперагент
На Циан
10 лет
Объектов в работе
более 1000