Мы используем куки-файлы. Соглашение об использовании

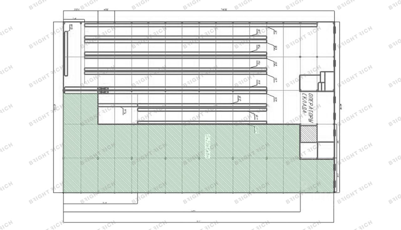
Склад класса А, выезд на КАД

Площади2 361 – 6 653 м²
Этаж1 из 1
Выс. потолков12.0 м.
Отчёт о привлекательности объектаУзнайте, насколько помещение и район подходят для вашего бизнеса
Что входит в отчёт
  • Охват населения
  • Пешеходный трафик
  • Автомобильный трафик
  • Средний бюджет семьи по району
  • Арендные ставки рядом
  • Точки притяжения
  • Конкуренты в радиусе 1 км
  • Рекомендации по выбору места для бизнеса
Доступно 2 площади
2361 м²
1 этаж
3 305 400 ₽/мес.
16 800 ₽/м² в год
6653 м²
1 этаж
9 308 200 ₽/мес.
16 789 ₽/м² в год
Субаренда сухого склада в складском комплексе класса А. Комплекс расположен в северном направлении. Прямой выезд на КАД, рядом развязка с Выборгским шоссе. Технические параметры склада: - класс: А - тип склада: сухой - уровень пола: 1,2 м - шаг колонн: 12х24 м - ворота: докового типа - нагрузка на пол: 8 тонн/м² - тип пола: бетонный пол с антипылевым покрытием - пожарная сигнализация: есть - система пожаротушения: спринклерная В стоимость включены НДС, эксплуатационные расходы (OPEX) и коммунальные услуги. Договор субаренды, без комиссии. Готовы оперативно организовать просмотр в удобное время, предоставить PDF-презентацию и план. ID 340107
lock

Войдите или зарегистрируйтесь
для просмотра информации

Просматривайте условия сделки и всю информацию об объекте
Сохраняйте фильтры в поиске и не вводите заново
Доступ к избранному с любого устройства
Неограниченное добавление в избранное
Позвоните автору
Вам ответят на все вопросы
Остались вопросы по объявлению?
Позвоните владельцу объявления и уточните необходимую информацию.
  • Инфраструктура
  • Похожие рядом
Помощь надёжных риелторов
Риелтор партнёр Циан поможет купить или продать любую недвижимость
3 305 400 – 9 308 200 ₽/мес.

Субаренда (от года), предоплата за 1 месяц

от 47 220 до 133 060 $/мес.
от 42 498 до 119 754 €/мес.
Цена за метр
от 16 789 ₽ в год
Налог
НДС включен: 1 678 527 ₽
Комиссия
нет
Коммунальные платежи
включены
Эксплуатационные расходы
включены
Агентство недвижимости
На Циан
8 лет
Объектов в работе
931