Мы используем куки-файлы. Соглашение об использовании
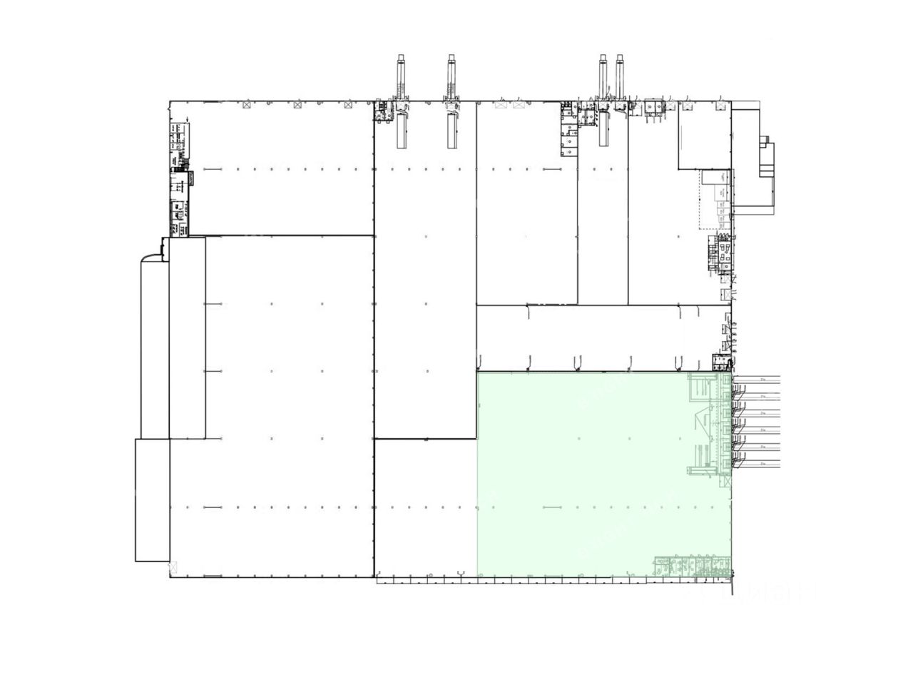
Площадь6 048 м²
Этаж1 из 1
Сетка колонн18x24
Выс. потолков12.5 м.
Отчёт о привлекательности объектаУзнайте, насколько помещение и район подходят для вашего бизнеса
Что входит в отчёт
  • Охват населения
  • Пешеходный трафик
  • Автомобильный трафик
  • Средний бюджет семьи по району
  • Арендные ставки рядом
  • Точки притяжения
  • Конкуренты в радиусе 1 км
  • Рекомендации по выбору места для бизнеса
Складское помещение 6 048 кв. м в "Reforma Парнас". Направление: Север. Шоссе: Новоприозерское. Расстояние от КАД: 2 км. Характеристики: - Класс: B; - Ворота: Ворота на нулевой отметке; - Тип склада: Сухой склад; - Высота потолков: 12.5 м; - Нагрузка на пол: 8 т/ кв.м; - Система пожаротушения: Внешние гидранты и внутренние пожарные краны; - Тип пола: С антипылевым покрытием; - Пожарная сигнализация: Да; - Шаг колонн: 18x24 м. Арендная ставка: 915 руб./кв. м в месяц. Финансовые условия: - Оплачивается отдельно: Коммунальные услуги; - В стоимость включено: OPEX, НДС; - Налог: Включая НДС. Без комиссии и скрытых платежей для арендатора. Готовы оперативно организовать просмотр в удобное время, предоставить PDF-презентацию и план. Точное местоположение объекта можно найти по данным координатам: 60.064706,30.380223 ID = c_1782711
lock

Войдите или зарегистрируйтесь
для просмотра информации

Просматривайте условия сделки и всю информацию об объекте
Сохраняйте фильтры в поиске и не вводите заново
Доступ к избранному с любого устройства
Неограниченное добавление в избранное
Позвоните автору
Вам ответят на все вопросы
Остались вопросы по объявлению?
Позвоните владельцу объявления и уточните необходимую информацию.
  • Инфраструктура
  • Похожие рядом
Помощь надёжных риелторов
Риелтор партнёр Циан поможет купить или продать любую недвижимость
РиелторBright Rich St Petersburg
Суперагент
5 533 920 ₽/мес.

Прямая аренда (от года), минимальный срок аренды 11 месяцев, доступны арендные каникулы, предоплата за 1 месяц

75 664 $/мес.
64 132 /мес.
Цена за метр
10 980 ₽ в год
Налог
НДС включен: 997 920 ₽
Комиссия
нет
Коммунальные платежи
не включены
Эксплуатационные расходы
включены
Агентство недвижимости
На Циан
8 лет
Объектов в работе
965
Риелтор
Суперагент