Мы используем куки-файлы. Соглашение об использовании
Площадь1 113 м²
Этажность2
КлассC
Отчёт о привлекательности объектаУзнайте, насколько помещение и район подходят для вашего бизнеса
Что входит в отчёт
  • Охват населения
  • Пешеходный трафик
  • Автомобильный трафик
  • Средний бюджет семьи по району
  • Арендные ставки рядом
  • Точки притяжения
  • Конкуренты в радиусе 1 км
  • Рекомендации по выбору места для бизнеса
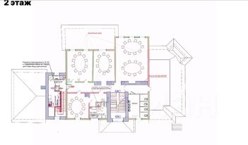
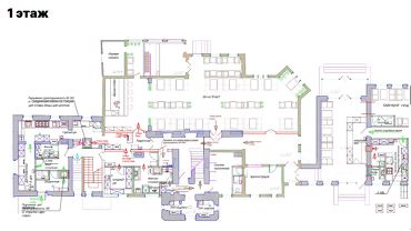
ПЛАТИМ АГЕНТАМ. Входим в ассоциацию профессионалов коммерческой недвижимости КОКОН. Особняк Н.Н.Струка- это деревянный петербургский дом конца XIX века с собственным небольшим садом. Уникальное историческое здание с богатым прошлым и выгодным расположением. Рядом расположен жилой комплекс: Черная речка, Riverside, Riviere Noire, Белый остров. Крупный жилой массив. Налоговая: 26. Лифты: Нет. Вентиляция: Естественная. Кондиционирование: Нет. Безопасность: Круглосуточный доступ, Контроль доступа. Парковка: Наземная. Описание помещения: Здание под ремонт, есть готовый проект и планировочное решение для ресторана. 1-й этаж - три просторных зала открытой планировки на 70 человек, вместительная барная зона, летняя терраса на территории палисадника, кухонная зона, помещения персонала, тех. помещения. Планировка: смешанная. Требуется капитальный ремонт. Тип налогообложения: С НДС. Лот 45768-68
lock

Войдите или зарегистрируйтесь
для просмотра информации

Просматривайте условия сделки и всю информацию об объекте
Сохраняйте фильтры в поиске и не вводите заново
Доступ к избранному с любого устройства
Неограниченное добавление в избранное
Позвоните автору
Вам ответят на все вопросы
Остались вопросы по объявлению?
Позвоните владельцу объявления и уточните необходимую информацию.
  • Инфраструктура
  • Похожие рядом
Естественная вентиляция
Помощь надёжных риелторов
Риелтор партнёр Циан поможет купить или продать любую недвижимость
4 287 131 ₽/мес.

Прямая аренда (от года)

57 703 $/мес.
48 415 /мес.
Цена за метр
46 223 ₽ в год
Налог
НДС включен: 773 089 ₽
Комиссия
нет
Коммунальные платежи
не включены
Эксплуатационные расходы
включены
Агентство недвижимости
Риелтор
Суперагент
5,0・2