Мы используем куки-файлы. Соглашение об использовании
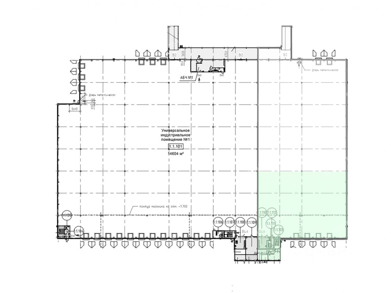
Площадь1 961 м²
Этаж1 из 1
Сетка колонн12x24
Выс. потолков12.0 м.
Отчёт о привлекательности объектаУзнайте, насколько помещение и район подходят для вашего бизнеса
Что входит в отчёт
  • Охват населения
  • Пешеходный трафик
  • Автомобильный трафик
  • Средний бюджет семьи по району
  • Арендные ставки рядом
  • Точки притяжения
  • Конкуренты в радиусе 1 км
  • Рекомендации по выбору места для бизнеса
Складское помещение 1 961 кв. м в "Софийская 118к5". Направление: Юг. Шоссе: Софийская ул. Расстояние от КАД: 4 км. Характеристики: - Класс: A; - Ворота: Доки; - Тип склада: Сухой склад; - Высота потолков: 12 м; - Нагрузка на пол: 10 т/ кв.м, 8 т/ кв.м; - Система пожаротушения: Внешние гидранты и внутренние пожарные краны, Спринклерная; - Тип пола: С антипылевым покрытием; - Пожарная сигнализация: Да; - Уровень пола: 1.2 м; - Шаг колонн: 12x24 м. Арендная ставка: 1 000 руб./кв. м в месяц. Финансовые условия: - В стоимость включено: OPEX, НДС; - Оплачивается отдельно: Коммунальные услуги, Электроэнергия; - Налог: Включая НДС. Без комиссии и скрытых платежей для арендатора. Готовы оперативно организовать просмотр в удобное время, предоставить PDF-презентацию и план. Точное местоположение объекта можно найти по данным координатам: 59.815799,30.474870 ID = c_1787339
lock

Войдите или зарегистрируйтесь
для просмотра информации

Просматривайте условия сделки и всю информацию об объекте
Сохраняйте фильтры в поиске и не вводите заново
Доступ к избранному с любого устройства
Неограниченное добавление в избранное
Позвоните автору
Вам ответят на все вопросы
Остались вопросы по объявлению?
Позвоните владельцу объявления и уточните необходимую информацию.
  • Инфраструктура
  • Похожие рядом
Помощь надёжных риелторов
Риелтор партнёр Циан поможет купить или продать любую недвижимость
РиелторBright Rich St Petersburg
Суперагент
1 961 000 ₽/мес.

Прямая аренда (от года), минимальный срок аренды 11 месяцев, доступны арендные каникулы, предоплата за 1 месяц

26 816 $/мес.
23 021 /мес.
Цена за метр
12 000 ₽ в год
Налог
НДС включен: 352 980 ₽
Комиссия
нет
Коммунальные платежи
не включены
Эксплуатационные расходы
включены
Агентство недвижимости
На Циан
8 лет
Объектов в работе
908
Риелтор
Суперагент