Мы используем куки-файлы. Соглашение об использовании
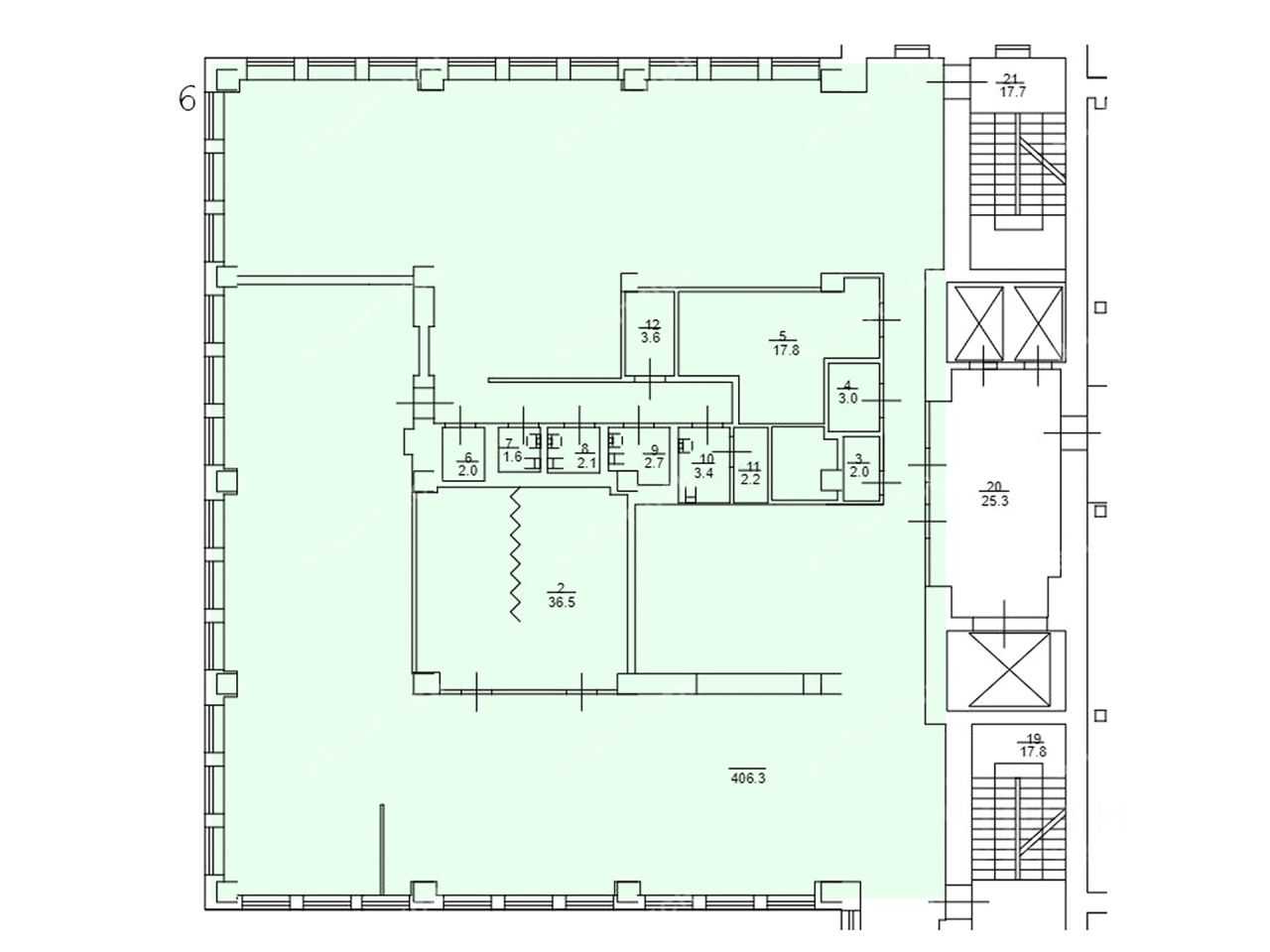
Площадь540,1 м²
Этаж6 из 13
Парковка150 мест
Отчёт о привлекательности объектаУзнайте, насколько помещение и район подходят для вашего бизнеса
Что входит в отчёт
  • Охват населения
  • Пешеходный трафик
  • Автомобильный трафик
  • Средний бюджет семьи по району
  • Арендные ставки рядом
  • Точки притяжения
  • Конкуренты в радиусе 1 км
  • Рекомендации по выбору места для бизнеса
Офисное помещение 540.1 кв. м в бизнес-центре "Смоленский". Район: Василеостровский. Ближайшие станции метро: Спортивная, Василеостровская. Характеристики: - Класс: B; - Арендопригодная площадь: 17000; - Код налоговой: 01; - Высота потолков: 4 м; - Кол-во мест наземного паркинга: 150; - Охрана: Да; - Интернет-провайдеры: Чайка Телеком. Арендная ставка: 1 750 руб./кв. м в месяц. Финансовые условия: - В стоимость включено: НДС; - Оплачивается отдельно: OPEX, Интернет, Коммунальные услуги, Телефония, Уборка, Электроэнергия; - Налог: Включая НДС. Без комиссии и скрытых платежей для арендатора. Готовы оперативно организовать просмотр в удобное время, предоставить PDF-презентацию и план. Точное местоположение объекта можно найти по данным координатам: 59.950349,30.265826 ID = c_708895
lock

Войдите или зарегистрируйтесь
для просмотра информации

Просматривайте условия сделки и всю информацию об объекте
Сохраняйте фильтры в поиске и не вводите заново
Доступ к избранному с любого устройства
Неограниченное добавление в избранное
Позвоните автору
Вам ответят на все вопросы
Остались вопросы по объявлению?
Позвоните владельцу объявления и уточните необходимую информацию.
  • Инфраструктура
  • Похожие рядом
Помощь надёжных риелторов
Риелтор партнёр Циан поможет купить или продать любую недвижимость
РиелторBright Rich St Petersburg
Суперагент
945 175 ₽/мес.

Прямая аренда (от года), минимальный срок аренды 11 месяцев, доступны арендные каникулы, предоплата за 1 месяц

13 211 $/мес.
11 061 /мес.
Цена за метр
21 000 ₽ в год
Налог
НДС включен: 170 132 ₽
Комиссия
нет
Коммунальные платежи
не включены
Эксплуатационные расходы
не включены
Агентство недвижимости
На Циан
8 лет
Объектов в работе
946
Риелтор
Суперагент