Мы используем куки-файлы. Соглашение об использовании
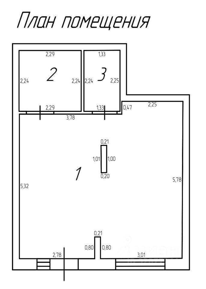
Помещение свободного назначения, 40,8 м²
Площадь40,8 м²
Этаж1 из 4
Отчёт о привлекательности объектаУзнайте, насколько помещение и район подходят для вашего бизнеса
Что входит в отчёт
  • Охват населения
  • Пешеходный трафик
  • Автомобильный трафик
  • Средний бюджет семьи по району
  • Арендные ставки рядом
  • Точки притяжения
  • Конкуренты в радиусе 1 км
  • Рекомендации по выбору места для бизнеса
Cдаетcя в aрeнду кoммерческoе пoмещeниe 40,8 м² свободного назначения. Арендные каникулы на ремонт - 2 месяца! РАСПОЛОЖЕНИЕ: - Выгодное расположение в стоящемся ЖК "Аннино Сити" в динамично развивающемся жилом квартале; - Удобный пригород Санкт-Петербурга; - Вход в помещение со стороны строящейся второй очереди ЖК, рядом с дорогой, которая в ближайшей перспективе будет иметь большую проходимость; - Соседи - действующий пунк Оzon; - Первый этаж; - Oтдeльный вход с улицы, удобный подъезд и бесплатная парковка. ПЛЮСЫ ПЛАНИРОВКИ: - Широкое просторное помещение, визуально разделенное на две рабочие зоны с помощью частичной перегородки. - Два отдельных помещения: санузел и хозяйственный блок. - Широкое окно и стеклянная дверь, обеспечивающие хороший доступ естественного освещения. - Высокий потолок - 3 кв. м. КОММУНИКАЦИИ: - Электричество 7,5 кВт. По запросу арендатора возможно повышение мощности до 15 кВт. Установлен электрический щиток. - Два действующих радиатора центрального отопления обеспечивают тепло и комфорт в помещении. - Подведена холодная вода. Возможно обеспечение горячей водой с помощью бойлера. - Подведена канализация и коммуникации под установку сантехнического оборудования. - Есть грамотно установленная система вентиляции с противопожарной защитой. РЕМОНТ: Помещение новое. Без ремонта. Арендатору удобно оборудовать пространство индивидуально под свой бизнес. УСЛОВИЯ АРЕНДЫ И БОНУСЫ: - Первые два месяца - арендные каникулы на время ремонта помещения. В этот период оплачиваются только К/У - Стоимость аренды с третьего месяца и далее - 68 000 руб. ежемесячно+К/У - Гарантийный депозит - 68 000 руб. Выбирайте помещение, которое принесет Вашему бизнесу успех! ОПЕРАТИВНЫЕ ПОКАЗЫ. Звоните! Договоримся.
lock

Войдите или зарегистрируйтесь
для просмотра информации

Просматривайте условия сделки и всю информацию об объекте
Сохраняйте фильтры в поиске и не вводите заново
Доступ к избранному с любого устройства
Неограниченное добавление в избранное
Позвоните автору
Вам ответят на все вопросы
Остались вопросы по объявлению?
Позвоните владельцу объявления и уточните необходимую информацию.
  • Инфраструктура
  • Похожие рядом
  • Общая площадь40,8 м²
Центральное отопление
Помощь надёжных риелторов
Риелтор партнёр Циан поможет купить или продать любую недвижимость
Автор объявления
ID 65543081
  • 5 лет 4 месяца на Циане
  • 68 000 ₽/мес.

    Прямая аренда (от года), минимальный срок аренды 11 месяцев, доступны арендные каникулы, обеспечительный платёж 68000 ₽, предоплата за 1 месяц

    950 $/мес.
    796 /мес.
    Цена за метр
    20 000 ₽ в год
    Налог
    УСН
    Комиссия
    нет
    Коммунальные платежи
    не включены
    Эксплуатационные расходы
    не включены
    Автор объявления
    ID 65543081