Мы используем куки-файлы. Соглашение об использовании
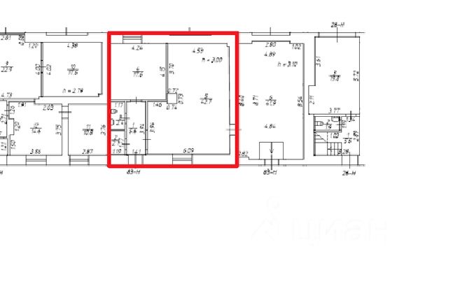
Помещение свободного назначения, 70,4 м²
Аукцион
Площадь70,4 м²
ПомещениеСвободно
Отчёт о привлекательности объектаУзнайте, насколько помещение и район подходят для вашего бизнеса
Что входит в отчёт
  • Охват населения
  • Пешеходный трафик
  • Автомобильный трафик
  • Средний бюджет семьи по району
  • Арендные ставки рядом
  • Точки притяжения
  • Конкуренты в радиусе 1 км
  • Рекомендации по выбору места для бизнеса
Данные получены с сайта ГИС Торги. Помещение 83-Н (комн. 1-5), расположенного на 1 (первом) этаже Здания, площадью 70,4 (Семьдесят целых четыре десятых) кв. м.
АукционОбъект реализуется посредством электронных торгов. Конечную информацию об оплате, дополнительных платежах и условия заключения договора смотрите в документах извещения к лоту, на сайте электронной торговой площадки.
lock

Войдите или зарегистрируйтесь
для просмотра информации

Просматривайте условия сделки и всю информацию об объекте
Сохраняйте фильтры в поиске и не вводите заново
Доступ к избранному с любого устройства
Неограниченное добавление в избранное
  • Инфраструктура
  • Похожие рядом
Помощь надёжных риелторов
Риелтор партнёр Циан поможет купить или продать любую недвижимость
Управляющая компанияID 128914650
  • 1 год 1 месяц на Циане
  • 10595 объявлений
  • Начальная цена, аукцион
    890 560 ₽/мес.
    11 791 $/мес.
    10 088 /мес.
    Цена за метр
    151 800 ₽ в год
    Налог
    НДС включен: 160 592 ₽
    Комиссия
    нет
    Коммунальные платежи
    не включены
    Эксплуатационные расходы
    не включены
    Управляющая компанияID 128914650