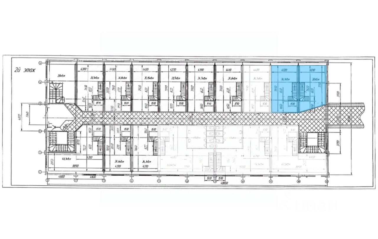
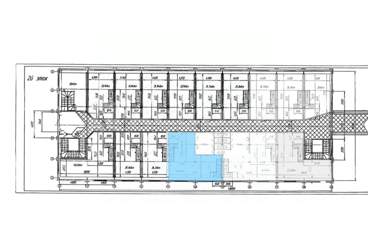
Площади125 – 150 м²
Этаж2 из 3
ПомещениеСвободно
КлассB+
Отчёт о привлекательности объектаУзнайте, насколько помещение и район подходят для вашего бизнеса
Что входит в отчёт
  • Охват населения
  • Пешеходный трафик
  • Автомобильный трафик
  • Средний бюджет семьи по району
  • Арендные ставки рядом
  • Точки притяжения
  • Конкуренты в радиусе 1 км
  • Рекомендации по выбору места для бизнеса
Доступно 2 площади
125 м²
2 и 3 этаж
175 000 ₽/мес.
16 800 ₽/м² в год
150 м²
2 и 3 этаж
210 000 ₽/мес.
16 800 ₽/м² в год
Сдаются в аренду помещения в бизнес-центре класса В с хорошей транспортной доступностью. Отличное соотношение цена\качество. Бизнес-центр расположен в Московском районе и находится в 14 минутах от метро Московские ворота. Здание реконструировано в 2018 году, оснащено всеми необходимыми инженерными системами. Адрес: Санкт-Петербург, ул. Цветочная д. 16, лит. Б. Ближайшее метро: Московские ворота. Арендная ставка: 1 400 руб/м2 в мес. включая НДС, коммунальные услуги, электричество, OPEX отдельно оплачиваются уборка Характеристики помещения: Планировка: смешанная Телекоммуникации: интернет, wi-fi и телефонная линия Характеристики бизнес-центра: Общая площадь: 2 100 м2 Этажность: 3 Пропускная система: есть Инфраструктура: кафе, ресторан, конференц-зал, центральная рецепция Договор аренды заключается напрямую с собственником бизнес-центра. Какие-либо дополнительные проценты и комиссии отсутствуют. Звоните, мы покажем помещение в любое удобное для вас время.
lock

Войдите или зарегистрируйтесь
для просмотра информации

Просматривайте условия сделки и всю информацию об объекте
Сохраняйте фильтры в поиске и не вводите заново
Доступ к избранному с любого устройства
Неограниченное добавление в избранное
Позвоните автору
Вам ответят на все вопросы
Остались вопросы по объявлению?
Позвоните владельцу объявления и уточните необходимую информацию.
  • Инфраструктура
  • Похожие рядом
Помощь надёжных риелторов
Риелтор партнёр Циан поможет купить или продать любую недвижимость
175 000 – 210 000 ₽/мес.

Прямая аренда (от года), минимальный срок аренды 11 месяцев, предоплата за 1 месяц

от 2 375 до 2 850 $/мес.
от 2 000 до 2 400 €/мес.
Цена за метр
от 16 800 ₽ в год
Налог
НДС включен: 37 868 ₽
Комиссия
нет
Коммунальные платежи
включены
Эксплуатационные расходы
включены
Агентство недвижимости
Суперагент
На Циан
7 лет
Объектов в работе
354