Мы используем куки-файлы. Соглашение об использовании
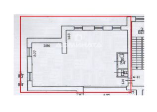
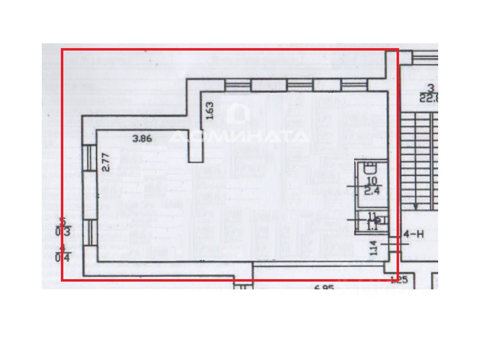
Площадь76,4 м²
Этаж2 из 3
Парковка10 мест
Отчёт о привлекательности объектаУзнайте, насколько помещение и район подходят для вашего бизнеса
Что входит в отчёт
  • Охват населения
  • Пешеходный трафик
  • Автомобильный трафик
  • Средний бюджет семьи по району
  • Арендные ставки рядом
  • Точки притяжения
  • Конкуренты в радиусе 1 км
  • Рекомендации по выбору места для бизнеса
В продажу напрямую от собственника предлагается уютный офис площадью 76.4 м2, расположенный на втором этаже красивого кирпичного полностью нежилого административного здания. Помещение просторное и светлое с пятью отреставрированными арочными окнами на две стороны, представляет собой единое пространство с небольшим оборудованным кухонным уголком и двумя отдельными с/у. В помещении выполнен свежий ремонт в стиле лофт, при котором тщательно восстановленные старинные элементы гармонично сочетаются с современными материалами. Из окон открывается живописный вид на сквер, рядом набережная р.Ижора, вокруг спокойствие и зелень, что располагает к плодотворной работе. Вход в помещение 24/7, есть своя парковка, на второй этаж ведёт ухоженная аутентичная лестница, соседи - несколько тихих офисов, рядом расположено здание Налоговой инспекции г.Колпино. Помещение отлично подойдет для офиса компании, фотостудии, мастерской, творческой студии, организации сферы услуг, может быть использовано как апартаменты или квартира-офис. Электрическая мощность 15 кВт с возможностью увеличения, оптоволоконная линия от Ростелеком. В настоящий момент сдано в аренду под офис. Звоните, буду рада ответить на Ваши вопросы, пригласить Вас на просмотр.
lock

Войдите или зарегистрируйтесь
для просмотра информации

Просматривайте условия сделки и всю информацию об объекте
Сохраняйте фильтры в поиске и не вводите заново
Доступ к избранному с любого устройства
Неограниченное добавление в избранное
Позвоните автору
Вам ответят на все вопросы
Остались вопросы по объявлению?
Позвоните владельцу объявления и уточните необходимую информацию.
  • Инфраструктура
  • Похожие рядом
Помощь надёжных риелторов
Риелтор партнёр Циан поможет купить или продать любую недвижимость
12 500 000 ₽
176 179 $
152 472
Цена за метр
163 613 ₽
Налог
УСН
Агентство недвижимости
Документы проверены