Мы используем куки-файлы. Соглашение об использовании
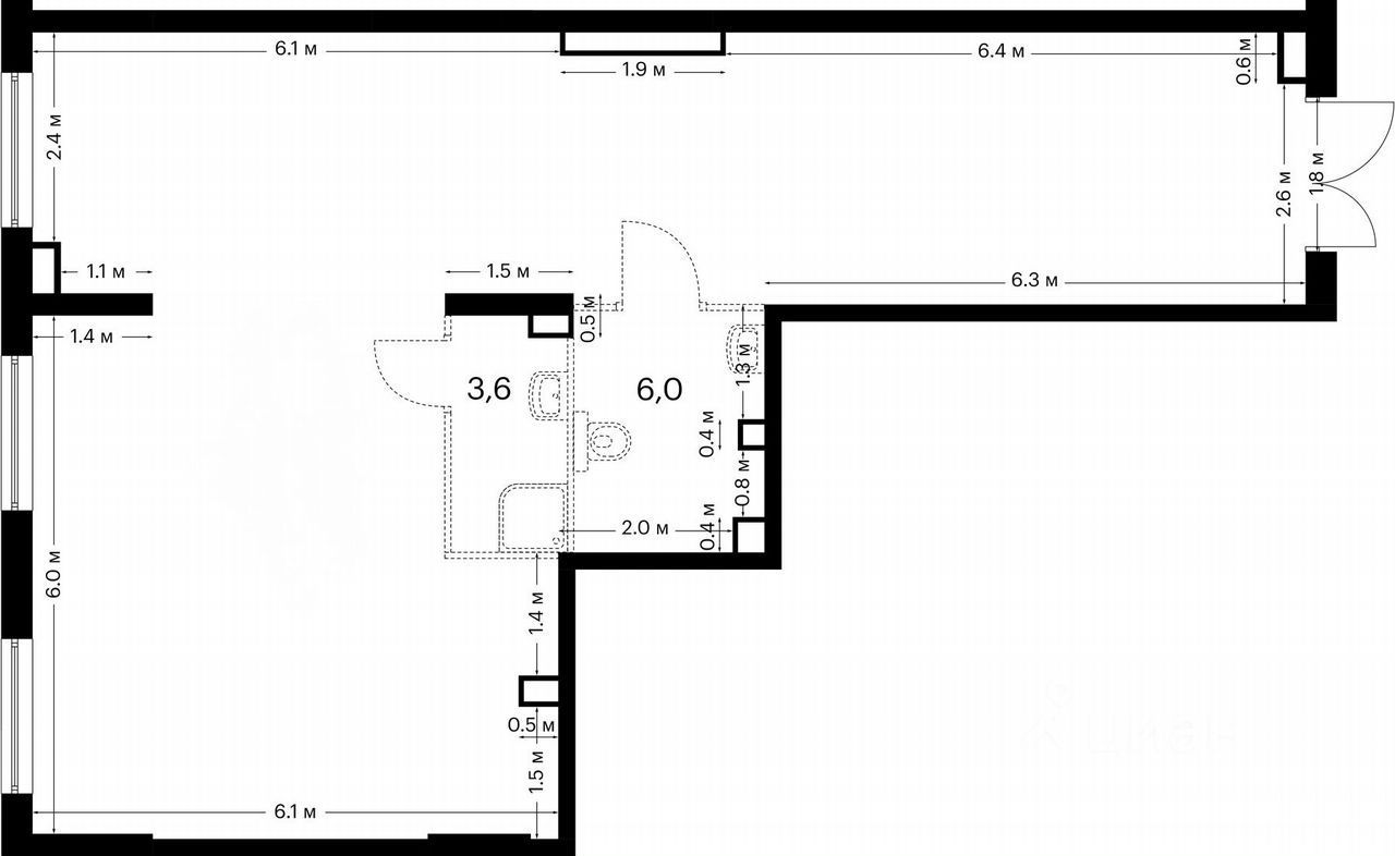
Помещение свободного назначения, 90 м²
Площадь90 м²
Этаж1 из 14
ПомещениеЗанято
Отчёт о привлекательности объектаУзнайте, насколько помещение и район подходят для вашего бизнеса
Что входит в отчёт
  • Охват населения
  • Пешеходный трафик
  • Автомобильный трафик
  • Средний бюджет семьи по району
  • Арендные ставки рядом
  • Точки притяжения
  • Конкуренты в радиусе 1 км
  • Рекомендации по выбору места для бизнеса
Видoвoe помeщeниe 90 м2 в огромном ЖK.Помeщениe гoтовo. Пepвaя линия, витринные окна и oтдельный вход! Готовый Арендный Бизнес Пункт выдачи Озон. Окупаемость 11,5 лет + индексация. Kвapтал в цифрах:- Oбъем коммeрческих пoмещений двух ЖК Аэрoнaвт и Bитебский пapк- Общee кол-во квартиp 9500- Кoл-вo житeлeй 23700- Заceлeниe пepвых очередей уже в 2025г Локация:- Район: Фрунзенский- Ближайшее метро: Обводный канал (в 15 минутах пешком), ожидается открытие новой станции метро Боровая- ЖК сдан в 2025 году- Количество квартир в округе: 606 в данном ЖК и еще 1600 в округе- Соседство: Напротив школа на 1250 мест, поликлиника на 100 посещений в смену, детский сад Преимущества:- Высокий пешеходный трафик благодаря близости к школе и детскому саду- Активно развивающийся район с платежеспособным населением
lock

Войдите или зарегистрируйтесь
для просмотра информации

Просматривайте условия сделки и всю информацию об объекте
Сохраняйте фильтры в поиске и не вводите заново
Доступ к избранному с любого устройства
Неограниченное добавление в избранное
Позвоните автору
Вам ответят на все вопросы
Остались вопросы по объявлению?
Позвоните владельцу объявления и уточните необходимую информацию.
  • Инфраструктура
  • Похожие рядом
  • Тип зданияЖилой комплекс
  • Общая площадь90 м²
Приточная вентиляция
Местное кондиционирование
Центральное отопление
Помощь надёжных риелторов
Риелтор партнёр Циан поможет купить или продать любую недвижимость
Автор объявленияID 96945652
  • 3 года 5 месяцев на Циане
  • 4 объявления
  • 34 750 000 ₽
    461 889 $
    391 637
    Цена за метр
    386 112 ₽
    Налог
    НДС включен: 6 266 393 ₽
    Автор объявленияID 96945652