Мы используем куки-файлы. Соглашение об использовании
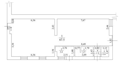
Помещение свободного назначения, 86,42 м²

Продается помещение свободного назначения, 86,42 м²

Площадь86,42 м²
Этаж1 из 1
Отчёт о привлекательности объектаУзнайте, насколько помещение и район подходят для вашего бизнеса
Что входит в отчёт
  • Охват населения
  • Пешеходный трафик
  • Автомобильный трафик
  • Средний бюджет семьи по району
  • Арендные ставки рядом
  • Точки притяжения
  • Конкуренты в радиусе 1 км
  • Рекомендации по выбору места для бизнеса
Предлагается к продаже коммерческое помещение СВОБОДНОГО НАЗНАЧЕНИЯ С ОТДЕЛЬНЫМ ВХОДОМ в Выборгском районе с кадастровым номером 78:36:0005522:2723. S помещения составляет 86,42 кв.м. Земельный участок 78:36:0005522:4600 общей площадью 94 кв.м. в собственности. Преимущества: + Хорошая транспортная доступность: от метро Проспект Просвещения- 20 мин пешком, на машине 7 мин. Удобный выезд на КАД через проспекты Энгельса и Культуры. + Назначение помещения универсальное, возможные варианты использования: для производства, общепит, торговое помещение, склад, офис, автомастерская и т.д. + Удобная рациональная планировка + Отдельный вход + Торговая или производственная зона + Собственный с/у + В помещение предусмотрены высокие потолки + Большая выделенная электромощность + Центральное отопление, водоснабжение и водоотведение + Есть арендатор. Если использовать помещение для инвестиций, то не нужно заниматься поиском. Показы по договорённости. Звоните!!!
lock

Войдите или зарегистрируйтесь
для просмотра информации

Просматривайте условия сделки и всю информацию об объекте
Сохраняйте фильтры в поиске и не вводите заново
Доступ к избранному с любого устройства
Неограниченное добавление в избранное
Позвоните автору
Вам ответят на все вопросы
Остались вопросы по объявлению?
Позвоните владельцу объявления и уточните необходимую информацию.
  • Инфраструктура
  • Похожие рядом
  • Общая площадь86,42 м²
Центральное отопление
Помощь надёжных риелторов
Риелтор партнёр Циан поможет купить или продать любую недвижимость
РиелторЛюдмила Мизгирева
Суперагент
  • 8 лет 1 месяц на Циане
  • 8 объявлений
  • 13 900 000 ₽
    190 079 $
    163 179
    Цена за метр
    160 843 ₽
    Налог
    УСН
    РиелторЛюдмила Мизгирева
    Суперагент