Мы используем куки-файлы. Соглашение об использовании
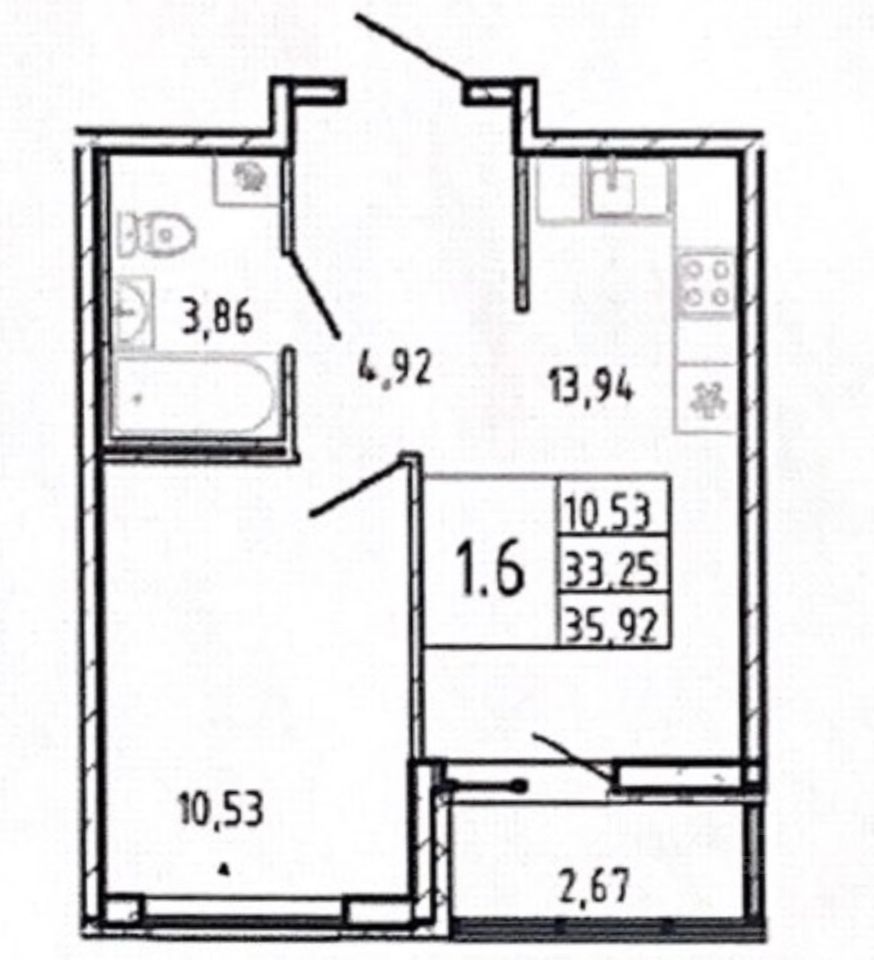
Общая площадь33,25 м²
Жилая площадь10,5 м²
Площадь кухни13,9 м²
Этаж14 из 22
Год сдачи2024
ДомСдан
ОтделкаЧистовая
Объявление снято с публикации, поищите ещё что-нибудь

О квартире

Тип жилья

Новостройка

Общая площадь

33,25 м²

Жилая площадь

10,5 м²

Площадь кухни

13,9 м²

Санузел

1 совмещенный

Балкон/лоджия

1 лоджия

Вид из окон

Во двор

5 500 000 ₽
Цена за метр
165 414 ₽/м²
Условия сделки
переуступка
Ипотека
возможна
Автор объявленияГалина Прокопьева
5,0・3
Документы проверены