Мы используем куки-файлы. Соглашение об использовании
С мебелью
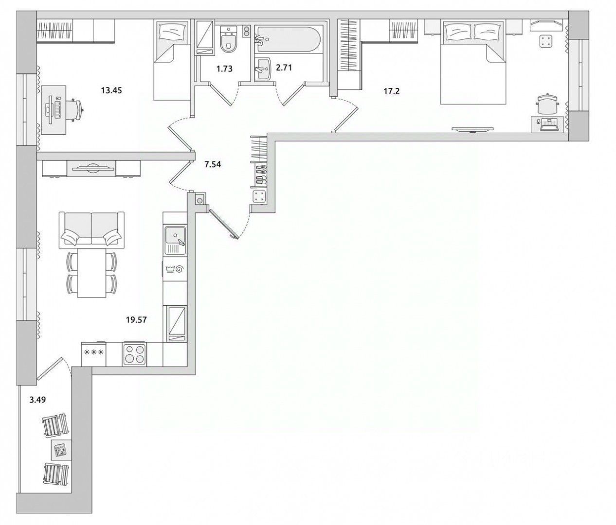
Общая площадь63 м²
Жилая площадь30,4 м²
Площадь кухни19 м²
Этаж16 из 17
Год постройки2020
Арт. 132939497 Просторная квартира 63 м² с двумя спальнями большой кухней-гостиной на предпоследнем этаже в закрытом, в современном комфортабельном ЖК "ЦДС Полюстрово". Квартира, созданная для комфортной семейной жизни. Ключевые преимущества квартиры: 63 м² умного пространства: 2 отдельные спальни, расположенные в разных частях квартиры ( максимальная приватность) и большая кухня-гостиная, где легко собраться всей семьей, раздельный санузел. Предпоследний этаж, и отсутсвие дома напротив обеспечивают обилие естественного света и отличное настроение. Готово к заезду: Большая встроенная кухня с современной техникой (включая варочную поверхность, духовой шкаф, посудомоечную машину и др) и множество мест для хранения, которые остаются новым хозяевам. Основательность и тишина: Кирпично-монолитный дом гарантирует тепло, тишину и надежность. Сердце квартиры - большая кухня-гостиная с выходом на застекленную лоджию— идеальное место для жизни. Здесь можно вместе готовить ужин, а затем расположиться на уютном диване для семейного просмотра фильмов. Жилой комплекс предлагает всё для жизни здесь и сейчас: Закрытая охраняемая территория — двор без машин, где безопасно играют дети. Всё рядом: Собственный детский сад во дворе, школа в шаговой доступности. Инфраструктура для здоровья и отдыха: в соседнем здании фитнес-клуб с бассейном и ресторан. Удобная логистика: До станций метро "Ладожская" и "Лесная" — всего 15 минут на автобусе. Парковка: Гостевые парковочные места по периметру двора. Бытовые удобства: На первом этаже — разнообразные коммерческие помещения, а в подъездах — бесшумные скоростные лифты. Два больших благоустроенных парка для прогулок. Сделайте этот дом своим! Наслаждайтесь жизнью в продуманном пространстве, где есть всё для счастья вашей семьи. Квартира в прямой продаже, 2 взрослых собственника, без обременения и детского вопроса. Звоните, и записывайтесь на просмотр!
Позвоните автору
Вам ответят на все вопросы

О квартире

Тип жилья

Вторичка

Общая площадь

63 м²

Жилая площадь

30,4 м²

Площадь кухни

19 м²

Санузел

1 раздельный

Балкон/лоджия

1 лоджия

Вид из окон

На улицу и двор

Ремонт

Евроремонт

Продаётся с мебелью

Да

О доме

Год постройки

2020

Количество лифтов

2 пассажирских

Тип перекрытий

Железобетонные

Подъезды

14

Парковка

Наземная

Отопление

Индивидуальный тепловой пункт

Аварийность

Нет

Спросите умного помощника
Получите экспертное мнение о жилье

Расположение

Ипотечный калькулятор
  • Базовая
  • Семейная
  • ИТ-ипотека
  • 20%
  • 30%
  • 40%
  • 50%
лет
  • 10 лет
  • 20 лет
  • 30 лет
Загружаем предложения от застройщика и банков
18 600 000 ₽
Эксперт от ЦианаПомощь с поиском и гарантия безопасной сделки
Цена за метр
295 238 ₽/м²
Условия сделки
свободная продажа
Ипотека
возможна
Агентство недвижимости
На Циан
6 лет
Объектов в работе
24
Риелтор
Суперагент