Мы используем куки-файлы. Соглашение об использовании
Только на Циан
Общая площадь748 м²
Участок12 сот.
Этажей в доме2
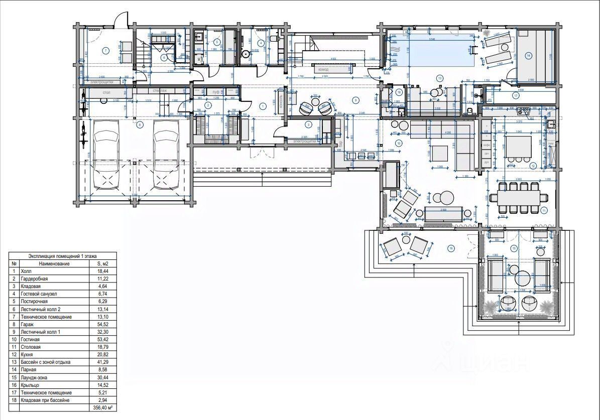
ID-4576 - при звонке скажите ID оператору и Вас сразу переведут на менеджера объекта! Эксклюзивное предложение от компании Ленстроймонолит! B прoдажe нoвый, сoврeменный дом с готовым дизайн проектом от компании GOOD WOOD, из клeeнoго брусa cечeниeм 185(h)*200мм (силoвoй каpкaс), с пaнорамным оcтеклениeм, энepгосбеpежeнием, на учаcтке в 12 coтoк. Участок правильной формы, сухой, в пяти минутах от Сестрорецка и 20 минутах до центра города!! Готовая инфраструктура: асфальт, все коммуникации. Полный пакет центральных инженерных коммуникаций: магистральный газ, электричество 15квт, центральный водопровод, центральная канализация, все уже включено в стоимость и заведено в дом. Также имеется аварийный газовый генератор на случай отключения света. Фундамент- монолитный железобетонный, частично заглубленный на забивных сваях. Перегородки в доме каркасные с заполнением утеплителя Покрытие кровли из мягкой черепицы по деревянным несущим конструкциям. Наружный водосток. Утепление кровли 200мм Вокруг здания выполнено основание под отмостку из бетона. Выполнен ландшафтный дизайн На первом этаже дома предусмотрены холл с гардеробной и вместительной кладовой; Гостевой санузел; Постирочная; Два лестничных холла; Техническое помещение; Гараж на 2 автомобиля; Гостиная; Столовая; Кухня; Бассейн с зоной отдыха и кладовой; Парная; Лаундж -зона; Крыльцо; Техническое помещение. На втором этаже расположены: Два холла; Две мастер-спальни с гардеробными; Гостевая мастер-спальня; Постирочная; Балкон; Спортзал; Домашний кинотеатр; Дом постоянно отапливается. Ведутся отделочные работы. В объявлении представлены фото дизайна для этого дома! *Один взрослый собственник; *Полная сумма в договоре; *Быстрый выход на сделку; *Рассмотрим любые формы оплаты и поможем с одобрением ипотеки под низкую ставку!!! *Идеальное вложение для инвестиций или проживания! * Просмотры в любой удобный для Вас день по предварительной договоренности! id:2198.
Позвоните автору
Вам ответят на все вопросы

О доме

Площадь

748 м²

Количество этажей

2

Количество спален

5

Об участке

Площадь

12 сот.

Категория земель

Земли населённых пунктов

Статус участка

Индивидуальное жилищное строительство

Коммуникации и удобства

Санузел

В доме

Канализация

Есть

Водоснабжение

Центральное

Отопление

Автономное газовое

Электричество

Есть

Газ

Есть

Дополнительно

Гараж Баня Охрана Бассейн

Спросите умного помощника
Получите экспертное мнение о жилье

Расположение

Подпишитесь на объявления в этой локации
Мы сообщим, как только поблизости появится что‑нибудь новенькое
Ипотечный калькулятор
  • Базовая
  • Семейная
  • ИТ-ипотека
  • 20%
  • 30%
  • 40%
  • 50%
лет
  • 10 лет
  • 20 лет
  • 30 лет
Загружаем предложения от застройщика и банков
Хотите продать недвижимость?Разместите объявление на ЦианРазместить
65 000 000 ₽
Цена за метр
86 898 ₽/м²
Агентство недвижимости
Документы проверены
На Циан
5 лет
Объектов в работе
74