Мы используем куки-файлы. Соглашение об использовании
Только на Циан
Площадь дома495 м²
Участок11 сот.
Материал домаГазобетонный блок
Этажей в доме3
Год постройки2014
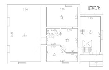
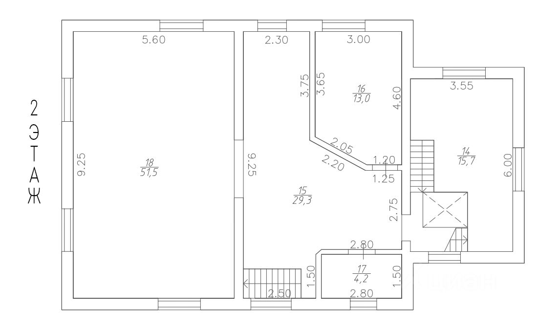
## Дом мечты с лифтом и видом на бескрайнее поле — гармония, уют и комфорт для всей семьи! ### О доме - **Год постройки:** 2014. - **Материал:** газоблоки, фундамент — плита, крыша — мягкая черепица. - **Этажность:** 3 этажа (по документам 395м2) + полноценный мансардный, ещё примерно +100 м². - **Площадь участка:** 1071 м², межевание выполнено, каркас забора с каменными столбами, кованые ворота. ### Коммуникации и инженерия - Электричество: 15 кВт, 3 фазы, разводка по дому. - Водоснабжение: собственная скважина. - Отопление: газовый котёл Lamborghini, тёплые полы. - Канализация: септик (кольца). - Газ: проведён в дом. - Кондиционирование: система установлена и разведена. ### Планировка и интерьер - Не менее 5 жилых комнат, 3 санузла. - Цокольный этаж — возможность оборудовать сауну. - Потолки, полы, стены — предчистовая отделка, стены отштукатурены. - Очень светлые помещения, много окон. - На участке — двухэтажная баня с гостевыми комнатами (требует внутренней отделки). ### Инфраструктура и экология Здесь каждый день начинается с вдохновения: бескрайнее поле у границы участка, свежий воздух, тишина и гармония с природой. Это место, где можно по-настоящему отдохнуть душой, насладиться пением птиц и красотой закатов. Идеально для тех, кто мечтает о жизни в окружении природы, но не хочет отказываться от комфорта. ### Транспортная доступность Дом расположен так, что до цивилизации рукой подать: всего 5 минут до Красного Села и 2 минуты пешком до остановки общественного транспорта. Вы всегда на связи с городом, но возвращаетесь в свой уютный уголок, где время течёт иначе — спокойно и размеренно. ### Особое преимущество: современный лифт для всей семьи В этом доме установлен современный лифт, который соединяет цокольный этаж и второй этаж. Это не просто удобство — это забота о каждом члене семьи: - пожилым родителям не придётся подниматься по лестнице; - маленьким детям будет интересно и безопасно; - лифт делает дом по-настоящему универсальным и комфортным для всех поколений. ### Преимущества - Один совершеннолетний собственник, нет обременений, не использовался материнский капитал. - Нет зарегистрированных жильцов. - Коммуникации в доме полностью готовы к дальнейшему косметическому обустройству по вашему вкусу. ### Почему стоит выбрать этот дом? Это не просто загородный дом, а настоящее семейное гнездо, где каждый найдёт своё место. Это дом для жизни, для счастья, для будущего. Для воплощения всех ваших пожеланий и доработок есть опытные дизайнеры и бригада строителей. Можем доработать дом "под ключ" именно так, как нужно вашей семье! Дом строился для семьи собственника его проверенной бригадой, планы поменялись, но эта же бригада может достроить его для вашей семьи. **Звоните, чтобы узнать подробности и договориться о просмотре!**
Позвоните автору
Вам ответят на все вопросы

О доме

Площадь

495 м²

Материал дома

Газобетонный блок

Состояние дома

Нужен ремонт

Количество этажей

3

Количество спален

5

Год постройки

2014

Об участке

Площадь

11 сот.

Категория земель

Земли сельхозназначения

Статус участка

Садоводство

Коммуникации и удобства

Санузел

2 в доме

Канализация

Септик

Водоснабжение

Скважина

Отопление

Автономное газовое

Электричество

Есть

Газ

Магистральный в доме или на участке

Дополнительно

Баня

Спросите умного помощника
Получите экспертное мнение о жилье

Расположение

Подпишитесь на объявления в этой локации
Мы сообщим, как только поблизости появится что‑нибудь новенькое
Ипотечный калькулятор
  • Базовая
  • Семейная
  • ИТ-ипотека
  • 20%
  • 30%
  • 40%
  • 50%
лет
  • 10 лет
  • 20 лет
  • 30 лет
Загружаем предложения от застройщика и банков
Хотите продать недвижимость?Разместите объявление на ЦианРазместить
45 000 000 ₽
Эксперт от ЦианаПомощь с поиском и гарантия безопасной сделки
Цена за метр
90 909 ₽/м²
Условия сделки
свободная продажа
Ипотека
возможна
Агентство недвижимости
Суперагент