От года, 50 000 ₽ + 4 000 ₽ комм. платежи (без счётчиков), без комиссии, залог 60 000 ₽
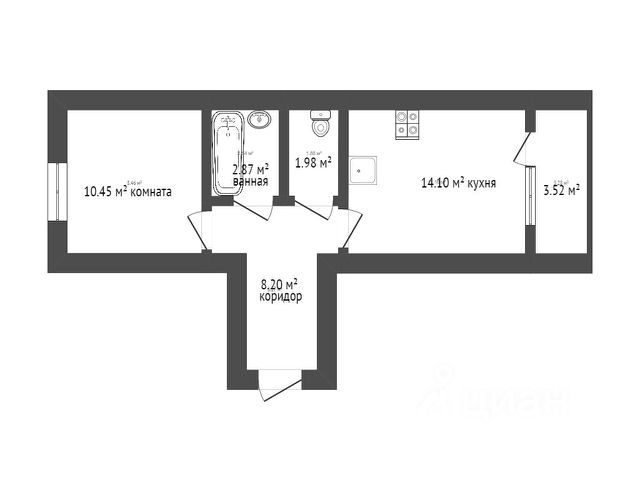
Собственник! Без комиссии! в 10 мин ходьбы от метро, в новом доме комфорт класса, сдается в аренду светлая, уютная 1-к квартира. Есть вся необходимая мебель, посуда и техника для комфортного проживания. планируется возможна домебелировка по желанию арендателя ( туалет столик, тумбочка, консоль/комод для обуви, зона отдыха на балконе ). Квартира сдается на длительный срок для 1 человека. Дом животные ( маленькие) обсуждаются.













































































