


535 325 ₽/м²
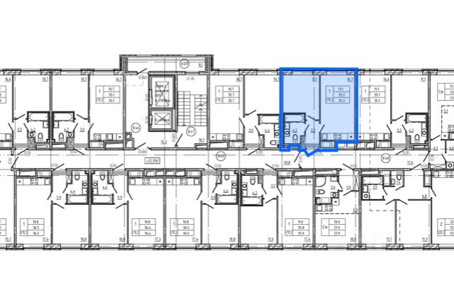
Продаётся 1-комн. квартира площадью 37,8 кв.м на 12 этаже 12 этажного дома (Корпус 1, Секция 4) проекта ПИК Шкиперский 19. Светлый просторный подъезд на уровне земли, функциональная планировка, большие окна, предчистовая отделка. Жилой квартал возводится на Васильевском острове, в пешей доступности от станции метро "Приморская" и с удобным выездом на ЗСД. Здесь будут квартиры с высокими потолками, окнами в пол и великолепным видом на Финский залив. Жилой квартал "Шкиперский 19" возводится в историческом районе Санкт-Петербурга - на Васильевском острове. Здания высотой от 8 до 12 этажей выполнены в природных оттенках, поэтому гармонично вписываются в архитектурный ландшафт Васильевского острова. На первых этажах домов откроются магазины, кафе и полезные сервисы: чтобы сходить за свежей выпечкой к завтраку, можно будет просто спуститься на лифте. Для детей из "Шкиперского 19" на территории квартала откроются школа и детский сад. Парадный вход "Шкиперского 19" - просторное и светлое гранд-лобби в стиле джапанди. В нём будут сочетаться элементы японских и скандинавских традиций дизайна. Помимо зоны ожидания с мягкой мебелью, здесь будет детская комната и гостевой санузел. В парадных предусмотрены комнаты для колясок и лапомойки для собак, тихие и быстрые лифты. Автомобиль можно будет оставить в подземном паркинге, а крупные и сезонные вещи - в индивидуальной кладовой. Доехать от квартала до Невского проспекта можно за 15 минут, до ЗСД - за 12 минут. В 20 минутах ходьбы находится станция метро "Приморская", и в 2030 году планируется открытие станции "Гавань" в 5 минутах от проекта. Проект принадлежит "Серии плюс". В "Серию плюс" входят жилые кварталы с повышенным уровнем комфорта и уникальной архитектурой. В светлых уютных лобби с дизайнерской отделкой предусмотрены колясочная и гостевой санузел. Артикул 850947 (Застройщик ООО "СЗ "Москворецкий дом") [cn_sbp_1755644] 1-комнатная квартира элитные на проезде Галерный в Санкт-Петербурге.

































































