Арт. 132367065 Редкое предложение в этом доме!
Предлагается к продаже евро двухкомнатная квартира площадью 65,3 кв. м с ТЕРРАСОЙ 17 кв м! в одном из лучших домов бизнес-класса на Васильевском острове ЖК "Большой, 67".
Квартиры в центре с террасами - редкий и востребованный формат! Не упустите такой отличный вариант!
О доме и комплексе: "Большой, 67" расположен в историческом центре Санкт-Петербурга на пересечении 20-й линии Васильевского острова и Большого проспекта, в непосредственной близости от ст. метро "Горный институт" 7 минут пешком! Жилой комплекс, построенный надежным и опытным застройщиком LEGENDA Intelligent, был введен в эксплуатацию во 2 квартале 2025 года.
В камерном комплексе всего 146 квартир, что создает ощущение приватности, клубного дома и камерной атмосферы проживания. В доме выполнено более 50 планировочных решений, отсутствуют студии что добавляет ему эксклюзивности.
Автор проекта "Большого, 67" - известное бюро "Евгений Герасимов и партнеры", одно из ведущих архитектурных мастерских в России. Фасад, выходящий на Большой проспект, оформлен в классическом стиле с большими арочными витринными окнами на первом этаже. Для секций вдоль 20-й линии свойственны черты сталинского ампира, северного модерна, со строгой геометрией. Классицизм, модерн, конструктивизм и неоклассика все это органично существуют в едином пространстве жилого комплекса и соответствуют характеру района.
В комплексе полностью отсутствует движение автомобилей во дворе: он пешеходный и предназначен только для прогулок, отдыха и общения жителей. Это создаёт защищённую среду, что особенно важно для семей с детьми. Внутренние пространство дома организовано так, чтобы каждый чувствовал себя спокойно и приватно. Это ощущение тишины, спокойствия и личного пространства в самом сердце Васильевского острова.
Основные характеристики комплекса:
Современный дом бизнес-класса , Монолитно-кирпичная технология строительства. Переменная этажность, от 4 до 9 этажей. На этаже 4 квартиры. В парадных предусмотрены места для хранения, колясочные. Элегантные фасады, продуманные планировки, высота потолков 2,95-3,3 м. Закрытый, благоустроенный и тихий двор, с детскими площадками и зонами отдыха
Охрана, видеонаблюдение. Подземный паркинг
Отделка мест общего пользования в доме: вестибюли, лифтовые и квартирные холлы- выполнена с использованием дизайнерского проекта. По отдельному дизайн проекту также была благоустроена и придомовая территория.
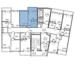
О квартире: В квартире выполнена предчистовая отделка - для покупателя прекрасная возможность воплотить свои идеи и предпочтения в дизайне!
Квартира расположена на комфортном 2 этаже. Планировка: просторная кухня-гостиная 30 кв.м имеет выход на роскошную террасу площадью 17 кв.м, где можно обустроить зону отдыха, насладиться чтением любимой книги, отдохнуть за чашечкой кофе или устроить семейный праздник. Квартир с такими террасами всего несколько в доме!
Благодаря большим панорамным "окнам в пол" квартира наполнена естественным светом Продается 1-комнатная квартира в районе Василеостровский в Санкт-Петербурге.