Вашему вниманию представляю большую 1 комнатную квартиру со свободной планировкой в историческом центре.
Об объекте: Видовая квартира в центре города, в доме, который является частью исторической архитектуры. Дом прошел полную реконструкцию: стены кирпичные 70 см., коммуникации и кровля заменены, отремонтирован фасад. Вам не придется сталкиваться с проблемами старого фонда, но Вы получите добротную квартиру и прелесть локации с развитой инфраструктурой.
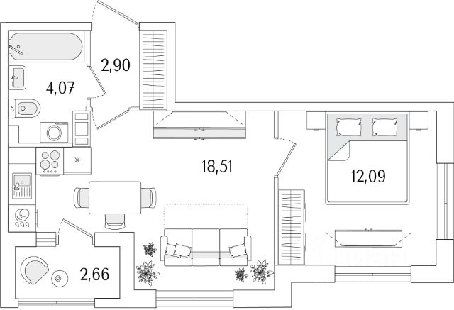
Квартира передается с подчистовой отделкой (выровнены стены, пол), сохранены высокие потолки 3м. Санузел с окном. Много окон в квартире, можно легко зонировать.
Отдельно хочется отметить уникальную атмосферу дома: соседи - интеллигентные, приятные люди, которые бережно относятся к дому. Ведь важно что происходит за пределами Вашей двери.
Расположение: Квартира расположена в основном здании. Окна выходят на Лиговский проспект и на перспективу (на восток и юг). Солнечная сторона, что немаловажно для нашего города.
Преимущества локации — близость к центру, хорошая транспортная доступность (близость к станциям метро "Лиговский проспект", "Обводный канал", пл. Восстания. "Московские ворота", до ЗСД и КАД около 15 минут езды), наличие социальной инфраструктуры и крупных ТРК ("Галерея", "Лиговъ"). Рядом с домом находятся несколько крупных проспектов. Все они ведут к центру города и поэтому доехать на наземном транспорте до Невского проспекта не составит труда.
5 мин до центра города на машине
10 минут пешком до метро Обводный канал
20 минут пешком до метро Лиговский проспект
30 минут пешком до метро пл. Восстания
Напротив дома находится остановка общественного транспорта. Здесь курсируют автобусы и трамваи. По Лиговскому проспекту проходит выделенная полоса для общественного транспорта.
Новая Станция метро Боровая-2 будет располагаться в 400 метрах от дома.
Инфраструктура района хорошо развита. Здесь и престижные учебные заведения, и поликлиники, магазины, аптеки, кафе, торговые центры.
А если хочется отдохнуть от городской суеты, то совсем рядом с домом находится Воронежский сад. Он небольшой, но очень уютный. Он отлично подходит для вечерних прогулок. Здесь тихо и спокойно, вокруг высокие деревья, зеленый газон и слышно только лишь пение птиц. В саду также удобно оборудованы пешеходные дорожки, по которым можно прокатиться на велосипеде, роликах или самокате. Частенько здесь гуляют хозяева со своими питомцами, либо родители с маленькими детьми. Также недалеко расположен Прилукский сквер с многолетними растениями. Там есть цветочная композиция на красочной клумбе площадью более 80 квадратных метров, на которой расположилось свыше 1,1 тыс. растений. В этом сквере также есть скамейки, на которых можно отдохнуть.
Звоните, договаривайтесь о просмотре. В наличие разные квартиры со своими уникальными преимуществами.
Внимание! Срочная продажа. Цена снижена!