


300 000 ₽/м²
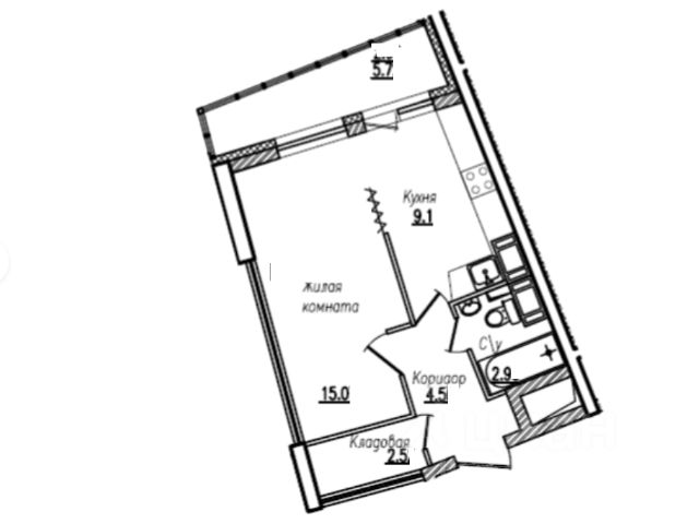
Код объекта: 2062434. Продается светлая и просторная квартира в новом жилом комплексе комфорт-класса! ПРО КВАРТИРУ: Великолепный вид из окон. Окна выходят в тихий закрытый двор на удалении от шумных магистралей и улиц. Современный стильный ремонт и дизайнерская мебель. Удачная планировка без пустых "мертвых зон" и коридоров. Встроенная стиральная машина под мойкой в ванной комнате. Теплый просторный балкон. ПРО ДОМ: Монолитно-кирпичный жилой комплекс комфорт-класса "Поэт" 2022г постройки с закрытой территорией, вишневым садом, детскими площадками и местами для отдыха. В комплексе отсутствуют студии и квартиры эконом класса, что формирует благоприятную социальную среду. Закрытый охраняемый двор. Торговая галерея на первых этажах. Физкультурно-оздоровительный комплекс во дворе. Подземный паркинг на 1659 мест. ПРО ЛОКАЦИЮ: В пешей доступности детские сады, школы, аптеки, поликлиники, магазины продуктовых сетей, кафе, ТРК "Северный Молл", "Норд", "Гранд Каньон". В пешей доступности метро: "Пр. Просвещения" и "Гражданский проспект". Близость с парком "Сосновка" и "Муринским парком". ИНФРАСТРУКТУРА: В пешей доступности находится все необходимое для комфортной жизни: продуктовые магазины ( Перекресток, Магнит, Дикси, ВкусВилл, СуперЛента и т.д .) , аптеки, банкоматы, студии красоты, парикмахерские, Ozon, Wildberries, Яндекс Маркет, кафе, пекарни, в одном шаге от ЖК находится новая школа (ГБОУ 110) и детский сад (ГДОУ 32), городская поликлиника 97, детская поликлиника. В соседнем ЖК торгово-развлекательный комплекс "Парк Молл" площадью более 60 000 кв.м, в котором размещены магазины, кафе, рестораны и объекты досуга. ТРАНСПОРТНАЯ ДОСТУПНОСТЬ: станция метро "Проспект Просвещения" в 20 минутах пешком; станция метро "Гражданский проспект" - 10 минут на общественном транспорте; до въезда на КАД - за 5 минут Одобрим ипотеку от 13.9% Звоните и записывайтесь на просмотр прямо сейчас! 1-комнатная квартира в ипотеку в округе № 15 в Санкт-Петербурге.



















































































