


202 840 ₽/м²
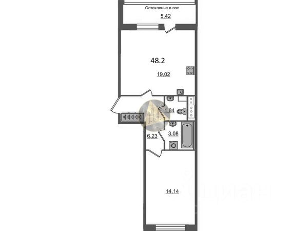
1-комнатная квартира площадью 37.20 в ЖК "А101 Лаголово" c лоджией на 9 этаже. Квартира с отделкой. Вид из окна во двор. В квартире 1 санузел. Высота потолков 2.87 м. ОТДЕЛКА Для квартир с чистовой отделкой предлагается три варианта дизайна: Классика, Карелия светлая и Карелия темная. Варианты всех дизайнерских решений представлены на фотографиях. Подробности можно уточнить у менеджера. На все отделочные работы от застройщика предоставляется гарантия. ДВОРЫ И ОКРУЖЕНИЕ Мы реализуем новый уровень в благоустройстве, а масштаб инфраструктуры поражает воображение: площадь дворов и пешеходного бульвара равна 64 теннисным кортам, а пешеходные дорожки протяжённостью 6,5 тысяч шагов позволяют неспешно прогуляться и насладиться окружающей красотой района. Для детей: яркие игровые комплексы, тактильная тропа и полоса препятствий Для отдыха: уютные зоны с навесами, столами и зарядками Для спорта: просторные площадки для игр, настольный теннис и открытые газоны для йоги и бадминтона Для экстрима: оборудованная трасса для велосипедов, самокатов, скейтбордов и роликов Для души: общественный сад и разнообразное озеленение Каждый двор оборудован системами видеонаблюдения и контроля доступа, закрыт от машин и посторонних. Не забываем о природе: вблизи расположены живописные Дудергофские озёра, величественные леса и поля. Зелёные зоны создают атмосферу уединения, помогая забыть о городской суете и наполниться энергией природы. ПАРАДНАЯ Для вашего комфорта предусмотрен удобный вход без ступеней, соответствующий принципам доступной среды для всех жителей, а также оборудовано отдельное помещение для хранения колясок и велосипедов в каждой парадной. ИНФРАСТРУКТУРА Время для себя и близких - бесценно. Именно поэтому "А101 Лаголово" - это не просто дома, а продуманная экосистема, где всё необходимое находится в 15 минутах от вашего дома. Здесь есть кафе, рестораны, коворкинги, детские площадки, спортивные секции, магазины и сервисы- всё для комфортной жизни в шаговой доступности. В проекте предусмотрены 3 современные школы. Строительство первой школы Акватория уже началось. Помимо современных классов, здесь появятся многофункциональные амфитеатры, трансформируемый спортзал, студия звукозаписи, медиатека и библиотека с большим количеством книг. Более 3 гектаров пришкольной территории отведено под спортивное ядро. В жилом районе также запланировано строительство 8 новых детских садов. ЗАСТРОЙЩИК ГК "А101" - один из крупнейших застройщиков России. Каждая восьмая квартира, проданная в Москве, находится в районе, построенном компанией, что подчеркивает её значимость и успех на рынке недвижимости.
































































































































