


461 831 ₽/м²
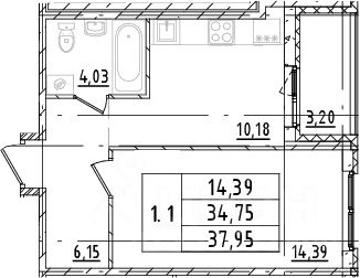
Номер объекта: 587812. ID: 587812 В продаже просторная светлая, видовая квартира евро-формата в современном жилом комплексе "Новый Лесснер". Квартира с предчистовой отделкой — установлены радиаторы, сделана электрическая разводка. Это идеальный вариант для тех, кто хочет воплотить свои дизайнерские идеи в новом жилье. Планировка и характеристики: Кухня-гостиная: 15,7м² (просторное пространство для семьи и приема гостей). Комната: 11,9 м². Лоджия: застекленная (1,75 м²). Окна: из окон квартир открывается вид на Неву и достопримечательности. О доме и локации: ЖК "Новый Лесснер" — это современный комплекс с закрытой охраняемой территорией. На территории есть подземный и наземный паркинг, зоны для отдыха, современные детские площадки. Расположение удачное — на стыке Выборгского и Петроградского районов: Метро: 10 минут пешком до м. "Лесная". Центр города: 10 минут на автомобиле. Инфраструктура: рядом набережная Невы, магазины, пункты выдачи маркетплейсов, аптеки, рестораны, школы и детские сады. Юридические условия: Один взрослый собственник. В квартире никто не зарегистрирован. Прямая продажа, быстрый выход на сделку. Купить 1-комнатную квартиру (вторичка) в районе Выборгский в Санкт-Петербурге.








































































































