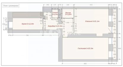
С мебелью
Только на Циан
Сенная площадь
5 минут пешком
15 000 000 ₽
227 273 ₽/м²
интересная, уникальная квартира в центре
вид во двор, тихо, не слышно машин
два взрослых собственника
без обременений
полная стоимость в договоре
звоните, пишите - договоримся о просмотре!
о доходном доме Юлии Адельсон:
Здание является образцом петербургского жилого дома эпохи позднего классицизма конца ХVIII — первой трети ХIХ века, частично перестроенного в формах эклектики во второй половине ХIХ века. Участие в перестройках в 1860-х и 1870-х годах принимали такие известные петербургские архитекторы, как Иван Мерц и Альберт Бенуа
В разные годы дом на Гороховой, 33, принадлежал "подполковнику Адмиралтейского ведения" Гавриле Бизюкину, жене князя Дмитрия Волконского, князю Александру Куракину, известному государственному деятелю Дмитрию Трощинскому, а также табачному фабриканту и меценату Василию Жукову.
Кроме того, в 1886 году залы на втором этаже дома занимало Русское литературное общество с библиотекой, куда часто приходили писатели и поэты Афанасий Фет, Аполлон Майков, Иван Гончаров и Дмитрий Григорович.
В 1898 году земельный участок вместе со всеми строениями выкупил генерал-лейтенант Николай Адельсон, а через 2 года всё имущество перешло во владение его жены Елизаветы Адельсон.
В дальнейшем, в период с 1908 по 1918 год, участком и домом владели Юлия Адельсон и подполковник Пётр Адельсон. В 1910 году в доме находились контора и склад торговой фирмы, которая занималась продажей перевязочных материалов и хирургических инструментов, а в 1912 году окна первого этажа на лицевом фасаде заменили витринами и оборудовали два дверных проёма. "Вероятно, в этот период стена на первом этаже в раскреповке лицевого корпуса была облицована зелёной глазурованной плиткой "кабанчик", — отмечают в КГИОП.
Уже после революции, в 1930-е, на нижнем этаже дома открылось кафе-кооператив "Пролетарий", а впоследствии здание долгое время (с 1937 по 1988 год) занимали нотариальные конторы. Продается 2-комнатная квартира элитные на улице Гороховая в Санкт-Петербурге.










































































