В БЕРЕЗОВОМ САДУ КВАРТИРА В СОВРЕМЕННОМ ФОРМАТЕ ЕВРО-3.
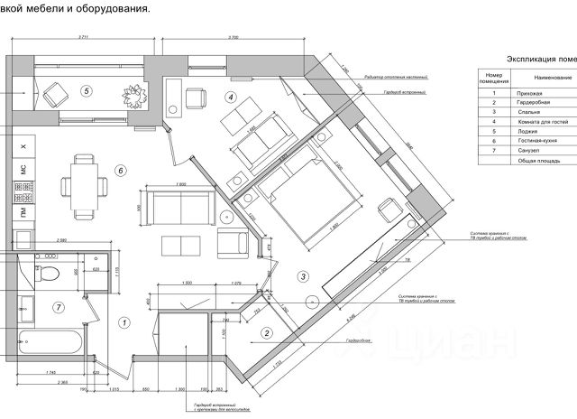
План квартиры площадью 99,10 кв.м. предполагает 2 функциональные зоны:
• дневную (гостевую) зону-трансформер, включающую открытое пространство кухни-столовой-гостиной, дополняемое помещениями гардеробной и гостевого санузла, и
• ночную (хозяйскую) - включающую 2 угловые спальни, гардеробную и санузел с окном.
Высота потолка 3,58 м. обеспечивает качественную эргономику планировочного решения.
Квартира расположена на 3 этаже на отметке +8.400, что обеспечивает хорошую естественную освещенность.
Вид из окон в Березовый сад, а также в сторону Костромского проспекта и Осиповской улицы (южный световой фронт) излучает солнце и спокойствие.
Городские системы водо- и теплоснабжения дополняются общедомовыми сетями связи, безопасности и комфорта.
Предусмотрено значение выделенной мощности электроснабжения 14,0 кВт.
Оконные системы из дуба с оригинальной расстекловкой и фурнитурой, выполнены по индивидуальному заказу.
Подготовлен проект чистовой отделки.
В доме всего 14 квартир, что обеспечивает клубный формат проживания.
На лестничной площадке расположено от 2 до 4 квартир.
Выразительная входная группа, предусматривает контроль доступа, пост консьержа, стильную зону приема и ожидания; с одной стороны, функционально подчеркивает идею приватности проживания, с другой стороны, стилистически отражает архитектурный код здания.
5-этажей здания, введенного в эксплуатацию в ноябре 2021 года, дополняются:
• функциональным подземным этажом, включающим паркинг на 20 машино-мест,
• романтичным мансардным этажом, развивающим идею модерна.
Закругленные углы здания, завершения эркеров и перетекающие свободные формы декоративных элементов перекликаются с силуэтом окружающей парковой территории. Цветовая гамма фасадов основана на сочетании пастельных оттенков бежевого, синего и зеленого цветов.
Собственный земельный участок с выходом в Березовый сад. Многолетние зеленые насаждения, деревья (березы, липы и яблони) и кустарники создают естественный образец наилучшего варианта озеленения, ландшафта и благоустройства.
Объекты инфраструктуры Выборгского района обеспечивает комфорт и качество проживания. Расположенные в шаговой доступности объекты инфраструктуры МО Светлановское: объекты соц-культ-быта, памятники истории и архитектуры, территории отдыха, сады и парки, центры притяжения, включая все составляющие средового района особого внимания со стороны Газпром, обеспечивают собственнику, как комфортное проживание, так и операционную доходность - от 3-4 % (в случае долгосрочной) до 5-6 % (в случае среднесрочной и краткосрочной аренды).
Продажа от 1-го Собственника / Застройщика, без обременений.