


134 810 ₽/м²
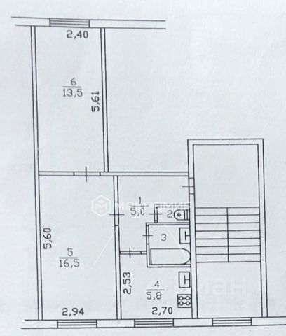
2-комнатная квартира площадью 57.20 в ЖК "А101 Всеволожск" на 2 этаже. Квартира без отделки. Вид из окна во двор. В квартире 1 санузел. Высота потолков 2.84 м. ОТДЕЛКА Квартира передается без отделки. Благодаря тому, что в данном типе отделки стены не возводятся, вы сможете создать удобную планировку и самостоятельно организовать зонирование комнат. ПАРАДНАЯ. В каждой парадной предусмотрены места для хранения велосипедов и колясок, гостевой санузел и удобная зона ожидания для гостей. ДВОРЫ И ОКРУЖЕНИЕ. Просторные дворы свободны от машин и закрыты от посторонних. Предусмотрен подземный паркинг с возможностью спуститься из дома на -1 этаж и машиноместа с зарядными станциями для электромобилей. Большую часть комплекса займут благоустроенные зелёные зоны, теневые сады и городские общественные пространства с развитой тротуарной сетью и велодорожками. Каждый дом оборудован системами видеонаблюдения и контроля доступа. Не хватает средств на покупку кладового помещения? Оформите ипотеку на квартиру и добавьте к ней часть стоимости кладовой. ЗАСТРОЙЩИК ГК "А101" - крупный инвестиционно-строительный холдинг, занимает 6-е место по объему строительства в России (по данным "Единого ресурса застройщиков" на 2023 год). НКР присвоило ГК "А101" кредитный рейтинг A+.ru, подтверждая его надежность и финансовую устойчивость для завершения строительства ЖК. Купить 2-комнатную квартиру на 2 этаже в Всеволожске.

























































































































