


390 586 ₽/м²
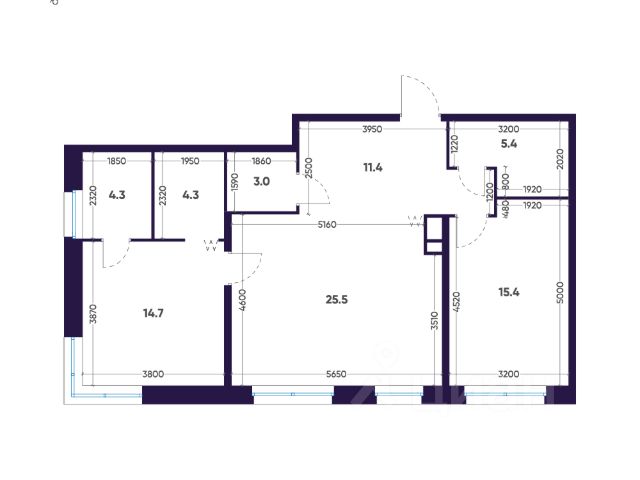
Просторная двухкомнатная квартира с предчистовой отделкой в ЖК "Лисичанская, 22" на 5 этаже. Общая площадь: 61.28 кв.м., жилая: 24.04 кв.м., площадь просторной кухни-столовой: 19.67 кв.м. Комнаты изолированные, все окна выходят на одну сторону. В квартире один балкон, один раздельный санузел. Высота потолков 2.7 м. ЖК "Лисичанская, 22" это дом, вдохновленный модой, творчеством и современными тенденциями в урбанистике. Объект задает собственные стандарты и формирует новый взгляд на комфортную жилую среду. Комплекс находится на пересечении пешеходных и транспортных потоков, в нескольких минутах от метро (до станции метро "Чёрная речка" 8 минут), и основных транспортных магистралей Санкт-Петербурга. Современные инженерные и технические решения, повышающие качество жизни TechnoBox включают в себя: стационарный и удаленный контроль дома, контроль температуры, систему Air Design - здоровое дыхание без лишнего шума, мультисервисную сеть, объединяющую коммуникационные системы. Квартира готова к декорированию. Застройщиком сделана шумоизоляция; стены подготовлены для отделки; проведена электрика с учетом рекомендаций по расстановке мебели и бытовой техники; выровнен пол. В каждой квартире установлена взломостойкая входная дверь, окна со специальным термоизолированным алюминиевым профилем. Срок сдачи 4 квартал 2025 года. В проекте реализован тёплый подземный паркинг на 93 м/м. Спуститься в паркинг можно на лифте прямо со своего этажа. В пешей доступности от "Лисичанской, 22" находятся сразу несколько живописных рекреационных зон: Строгановский парк и Головинский сад. Набережные Черной речки и Большой Невки. На автомобиле можно быстро добраться до парков Каменного, Елагина и Крестовского острова, Финского залива и великолепного Ботанического сада им. Петра Великого.

























































































































