


222 281 ₽/м²
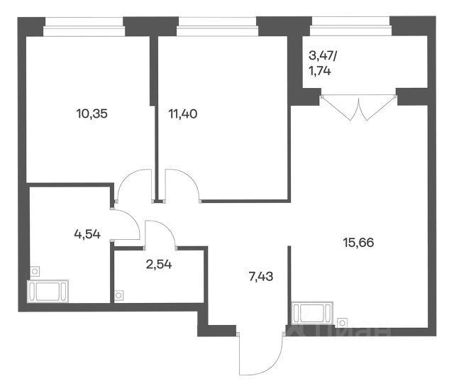
Продается квартира площадью 53.14 м² на 15 этаже 2 секции в Речной квартал от компании ГК "ТРЕСТ". Площадь кухни 15.66 м². Семейный жилой комплекс комфорт-класса "Речной квартал" от Группы компаний "ТРЕСТ" расположен в Невском районе Петербурга на пересечении Октябрьской набережной и Русановской улицы. Первая очередь квартала состоит из трёх корпусов, расположенных лучеобразно, чтобы максимально использовать естественное освещение и обеспечить видовые точки на локацию. Проект выделяется современными архитектурными решениями и дизайном. Концепция развития и благоустройства придомовой территории разделена на зоны отдыха, досуга и игровые площадки с учетом возраста и потребностей детей и взрослых. Квартал рассчитан на семейных покупателей, поэтому здесь нет студий: только одно-, двух- и трёхкомнатные квартиры. В проекте представлены квартиры с кухнями-гостиными, мастер-спальнями, гардеробными и кладовыми. "Речной квартал" - современный жилой комплекс с разнообразным благоустройством придомовой территории, просторными европланировками, закрытой охраняемой территорией и подземными паркингами. На территории комплекса уже функционирует детский сад на 110 мест. Также в квартале будет построена общеобразовательная школа на 475 мест с бассейном и стадионом. Открытие школы запланировано на 2029 год. Квартиры в ЖК "Речной квартал" можно приобрести с готовой отделкой от застройщика. Для покупателей квартир предусмотрено два варианта чистовой отделки "Ваниль" и "Шоколад". Чистовая отделка в квартирах ЖК "Речной квартал" предполагает монтаж натяжных потолков, укладку ламината, оклейку стен обоями под покраску, установку светильников и межкомнатных дверей. При отделке новой квартиры применяются качественные, натуральные и экологичные материалы, монтируется стильная импортная сантехника европейских брендов. В объявлении указана стоимость квартиры при 100% оплате. При других формах оплаты - базовую стоимость квартиры уточняейте на официальном сайте компании или у менеджера отдела продаж. Застройщик АО "Специализированный застройщик "Строительный трест".





































































































