Первичная продажа



С отделкой
дом сдан
Проспект Просвещения
5 минут на транспорте
20 700 000 ₽
293 617 ₽/м²
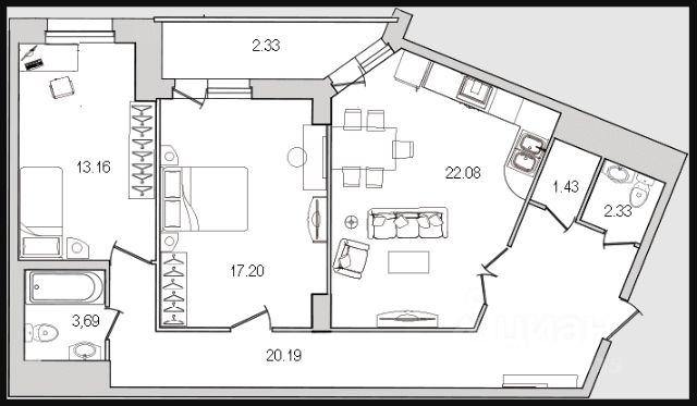
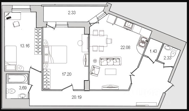
Продаётся 2-комнатная квартира в сданном доме (Корпус 3 ( Актёрский проезд, 2к2)), срок сдачи: IV-кв. 2024, общей площадью 70.5 кв.м., на 9 этаже. Жилой комплекс "Руднева 15" расположен в Выборгском районе Санкт-Петербурга, недалеко от трёх станций метро "Проспект Просвещения", "Озерки" и "Гражданский проспект".
Дома расположены в благоустроенном микрорайоне с полностью сложившейся инфраструктурой. Здесь есть всё необходимое для комфортного проживания.
Комплекс состоит из трёх 13-этажных зданий, выполненных в едином архитектурном стиле, а также многоуровневого паркинга. Кроме того, рядом расположен муниципальный детский сад, построенный компанией "Темп".
Закрытые дворы, видеодомофоны, электронные ключи и современная система безопасности обеспечивают жителям спокойствие и комфорт.
Безбарьерная среда и просторные холлы с оборудованием для маломобильных граждан делают жилой комплекс доступным для всех. В парадных установлены малошумные лифты марки OTIS.
В комплексе представлены квартиры различных планировок: от студий площадью 30 м до трёхкомнатных квартир 100 м. Все квартиры отличаются продуманной планировкой, отвечающей требованиям современной семьи. В каждом варианте предусмотрены просторные кухни-гостиные площадью от 15 м до 31 м. Некоторые двухкомнатные квартиры оборудованы окнами в ванных комнатах, а в трёхкомнатных квартирах обязательно предусмотрены два санузла.
Квартиры передаются покупателю с полной чистовой отделкой.
Продажа осуществляется по договору купли-продажи, с возможностью заселения сразу после оплаты.
Доступны различные формы оплаты: 100%, ипотека, рассрочка, различные субсидии и использование материнского капитала.
"Руднева 15" - это комфортное и современное жильё, идеально подходящее для семейной жизни. 2-комнатная квартира в готовой новостройке в округе № 15 в Санкт-Петербурге.




















































































































