220 779 ₽/м²
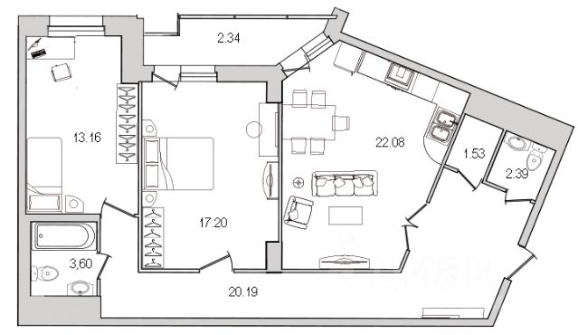
3-евро квартира 84.7 кв.м. с отделкой "Морошка". Прямая продажа. Полная стоимость в договоре. Без обременений. Акция - "Квартира месяца" (доп.скидка до 10%) действует до конца месяца. Стоимость квартиры указана с учетом скидки. Большая кухня-гостиная 22.0 кв.м. станет любимым местом для отдыха всей семьи. Две спальные комнаты 13.2 кв.м.и 17.2 кв.м. с местом под гардероб каждая. Остеклённая лоджия 4.7 кв.м. с выходом на кухню и в комнату. Прихожая 20.2 кв.м. с местом под шкаф. Кладовая 1.5 кв.м., которую можно использовать как постирочную комнату. Два санузла: 3.5 кв.м. и 2.4 кв.м. Вид во двор. Этаж 3. В квартире выполнена отделка "Морошка": стены оклеены обоями теплого оттенка(под покраску), на полу - ламинат, потолки - натяжные, в санузлах на полу и стенах керамическая плитка, установлена качественная сантехника, на балконе пол выложен плитой, потолок окрашен, установлены межкомнатные двери и качественная металлическая дверь. Квартира полностью готова к проживанию. Жилой комплекс комфорт-класса "Шекспир" с закрытой территорией и собственным вишневым садом. Во дворе детские, спортивные площадки и зоны для отдыха. Подземный паркинг. В пешей доступности детские сады, школы, аптеки, поликлиники, магазины продуктовых сетей, кафе, ТРК "Северный Молл", "Норд", "Гранд Каньон". Отличным местом для прогулок станут парки "Сосновка" и "Муринский парк". В пешей доступности метро "Пр. Просвещения" и "Гражданский проспект". Показы в любое удобное время по предварительной записи, звоните! ID квартиры а723.























































































