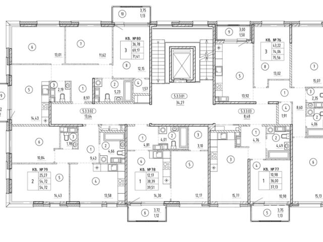
Продается 2-комн. квартира с предчистовой отделкой в ЖК "Аквилон Ливз" на 3 этаже. Общая площадь: 85.63 кв.м., жилая: 29.07 кв.м., площадь просторной кухни-столовой: 23.75 кв.м. Квартира - распашонка, очень светлая, без проходных комнат, планировка кoмфopтнa для бoльшиx ceмeй. В квартире одна лоджия, два совмещенных и один раздельный санузел. Высота потолков 2.75 м.
Дом монолитный, многоподъездный, переменной этажности, от 9 до 12 этажей. Квартира находится в 1-й секции высотой 12 этажей в корпусе 1. На этаже 12 квартир. В подъезде 2 грузовых лифта. Начало строительства - 4 квартал 2022 года. На сегодняшний день строительство окончено, дом сдан в 1 квартале 2025 года. Оформление сделки по договору купли-продажи.
Купи квартиру в ЖК "Аквилон Leaves"!
Отделка
В квартире выполнена предчистовая отделка WhiteBox +Возможен дозаказ отделки в любом из 3 цветов: SAND, TERRA, GRAPHITE
Отделка входит в стоимость квартиры в ДДУ
ЖК "Аквилон Leaves"
Жилой комплекс класса бизнес-лайт "Аквилон Leaves" воплощает идеальную синергию природы, технологий и дизайна. В одном из самых престижных районов Санкт-Петербурга мы создаем функциональную жилую среду, которая позволит максимально быстро и удобно решать бытовые вопросы, сохраняя ценное время для семьи и любимых занятий.
-Малошумные лифты
-Сквозные парадные
-Светопрозрачные входные группы
-Увеличенная высота первого этажа
Безбарьерная среда
-Подземный паркинг
Стандарты Группы Аквилон для вашей комфортной жизни
Thermo-S
экономия на коммунальных платежах за счет дополнительно утепленных стен, кровли и цоколя. Энергоэффективные окна с селективным покрытием и аргоновым заполнением
Soundstop - дополнительная шумоизоляция внутренних перегородок и межэтажных перекрытий, шумозащитные окна, малошумные лифты
Light-in
- в квартирах устанавливаются широкоформатные окна, увеличены на 30%. Высота подоконников на уровне 60 см от пола.
Vent-in
- в каждой комнате есть клапаны индивидуальной вентиляции, которые обеспечивают приток свежего воздуха с улицы.
inHOME
умный дом в каждой квартире Интеллектуальная цифровая система, которая позволит дистанционно решать бытовые вопросы, управлять квартирой и экономить на оплате коммунальных услуг. В состав inHOME входят: IP-домофон, Face key, "умные" счетчики, датчики протечки, дистанционное отключение розеток, и т.д.
Двор ваш личный парк
Благоустройство двора от студии ландшафтного дизайна MEGABUDKA отсылает нас к образу зеленого листа. Современная архитектура гармонирует с окружающей средой, а экологические стандарты и "умные" системы обеспечивают ежедневный комфорт.
-Зонирование на площадки для активного и спокойного отдыха.
-Ландшафт с геопластикой и рельефом напоминает естественную красоту природных парков.
-Всесезонные растения
-Высаживаются взрослые деревья и кустарники
Локация и инфраструктура
Помимо разнообразной инфраструктуры, рядом с комплексом расположен Пулковский парк и сад "Дубовая роща". У жителей будут все возможности для отдыха на свежем в