Хорошая цена
С мебелью
Девяткино
7 минут на транспорте
10 600 000 ₽
168 790 ₽/м²
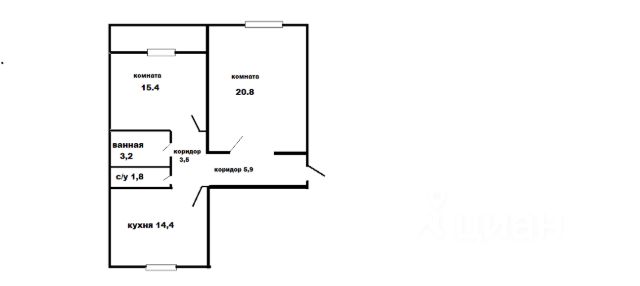
Продается уютная двухкомнатная квартира с евроремонтом в современном доме на проспекте Маршака, 14к2, Санкт-Петербург. Общая площадь квартиры составляет 62.8 кв. м, жилая — 35.9 кв. м, а кухня — 8.9 кв. м. Расположена на 12 этаже 18-этажного панельного дома, построенного в 2014 году. Высота потолков — 2.7 метра. Окна выходят как на улицу, так и во двор, поэтому можно наслаждаться тишиной и красивым видом.
Просторная кухня и гостиная создают уютную атмосферу для обедов и отдыха. В квартире есть балкон, где можно организовать зону отдыха или хранить необходимые вещи. Санузел раздельный, что удобно для большой семьи.
Дом оборудован двумя пассажирскими лифтами и пандусом, поэтому можно комфортно передвигаться даже с коляской. Во дворе есть парковочные места, а сама территория ухоженная и зеленая. Мусоропровод в доме обеспечивает дополнительный комфорт для жителей.
Рядом с домом расположены школы, детские сады, клиники и магазины, что делает жизнь в этом районе удобной и комфортной. До станции метро "Девяткино" можно доехать на автомобиле всего за 7 минут, поэтому транспортная доступность также на высоте. Продается 2-комнатная квартира на проспекте Маршака в Санкт-Петербурге.










































































