Онлайн-бронирование
сдача ГК: 2 кв. 2028 года
Юго-Западная
9 минут на транспорте
16 031 290 ₽
295 999 ₽/м²
*Стоимость квартиры указана с учетом действующих акций при условии 100% оплаты собственными средствами.
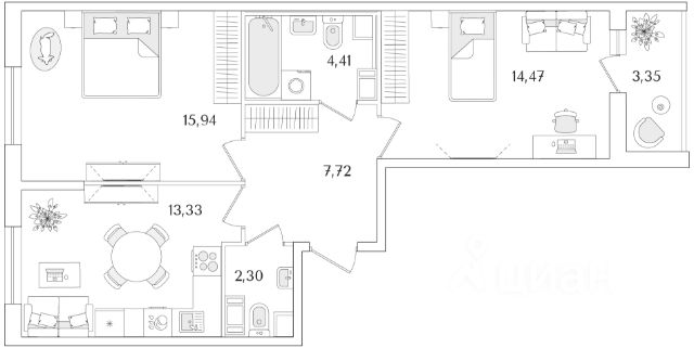
Продаётся 2к.кв. в ЖК Кинопарк от застройщика Группа компаний "РСТИ" (Росстройинвест).
Квартира находится в 9 этажном доме, в Очередь 2, Корпус 1 на 3 этаже. Общая площадь квартиры 54,16 кв.м.
"Кинопарк" — современный жилой комплекс, в котором главную роль играете Вы! Здесь возможен любой желанный сценарий жизни. Продуманные планировки, закрытые уютные дворы, развитая инфраструктура квартала — всё это обеспечит высокий уровень комфорта и будет вдохновлять на новые свершения. "Кинопарк" у парка "Новознаменка" возводится на бывшей территории "Ленфильма". Тема кино найдет отражение в отделке мест общего пользования и благоустройстве территории.
Инфраструктура
Жилой комплекс расположен в обжитой части Красносельского района рядом есть магазины, детские сады, школы и другая необходимая инфраструктура. Напротив комплекса находится парк "Новознаменка", в шаговой доступности еще четыре парка и два сквера.










































































