Лиговский проспект
9 минут пешком
23 800 000 ₽
278 037 ₽/м²
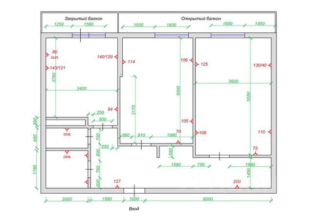
Арт. 134080164 Лоджия с двойным характером — главный герой этой квартиры. Одна часть застеклена, уютна, другая — открытая, как маленькая терраса. Здесь утро начинается с кофе на свежем воздухе, а вечер — с ужина под городским небом, не выходя из дома.
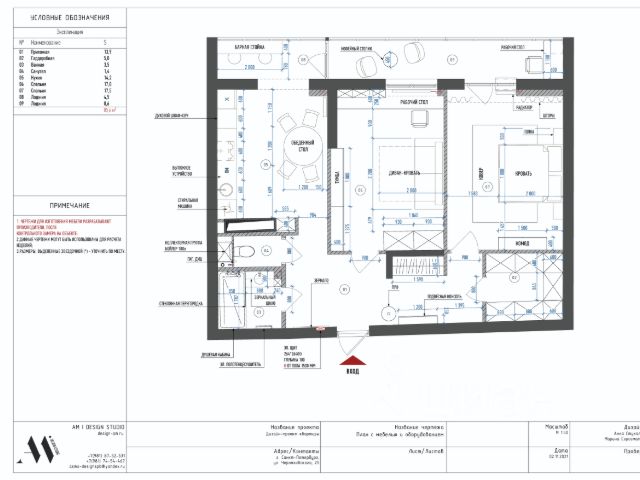
Две просторные спальни, кухня и гардеробная не диктуют сценарий, а оставляют полную свободу: тихий вечер с книгой или шумный ужин с друзьями — пространство подстроится.
Дом аккуратно вписанный в историческую застройку, с подземным паркингом, создаёт редкое чувство приватности. Чужая жизнь остаётся за дверью, а квартира становится убежищем.
А за окнами — центр без компромиссов. Прямой выезд на Черняховского, за углом — сад Сан-Галли с чугунной оградой и вековыми липами, Кузнечный рынок, где овощи пахнут землёй, и метро в шести минутах. Всё, за что любят этот район.
Звоните сейчас, "потом" может быть поздно. Давайте посмотрим? Продам 2-комнатную квартиру на улице Черняховского в Санкт-Петербурге.










































































