492 800 ₽/м²
Клубный квартал Айди Петроградская (iD Petrogradskaya) расположен в одном из самых престижных мест для жизни в Петербурге, между улицей профессора Попова и набережной реки Карповка.



492 800 ₽/м²
Клубный квартал Айди Петроградская (iD Petrogradskaya) расположен в одном из самых престижных мест для жизни в Петербурге, между улицей профессора Попова и набережной реки Карповка.



318 182 ₽/м²
ID: 1916883 Уютная и аккуратная 2-х комнатная компактная квартира для одного или двоих. Всё готово к проживанию или для сдачи. "Петроградка" - здесь есть всё. Отлично подойдет и для одного и для пары. Остается вся мебель и техника (холодильник, стиральная машина). В закрытом дворе есть место для автомобиля. В собственности почти 20 лет у одного владельца, никаких обременений и никто не проживает. Готовы к показам и к сделке.






770 000 ₽/м²
Просторная квартира в престижной локации — ул. Профессора Попова, 38, между набережной Карповки и исторической застройкой Петроградской стороны. Из окон открываются виды на Иоанновский монастырь и реку Карповку. В пешей доступности метро "Петроградская", "Чкаловская" и "Чёрная речка". Высота потолков 3 м, панорамное остекление, эксклюзивная планировка. Квартира передается без отделки, что позволяет реализовать индивидуальный дизайн-проект. Монолитно-кирпичный дом клубного формата, 6-этажная периметральная застройка с полузакрытым двором и парадными курдонёрами. Подземный паркинг с прямым доступом из жилых этажей. Благоустроенная набережная с собственным причалом, озеленённые пространства для отдыха. Рядом ведущие вузы, школы, парки и рестораны. Удобный выезд на ЗСД. 2-комнатная квартира на улице Профессора Попова в Санкт-Петербурге.



457 600 ₽/м²
Клубный квартал Айди Петроградская (iD Petrogradskaya) расположен в одном из самых престижных мест для жизни в Петербурге, между улицей профессора Попова и набережной реки Карповка.



466 667 ₽/м²
Арт. 112906986 Впервые предлагается к продаже квартира с дизайнерским ремонтом в классическом стиле в доме 2003 года постройки в самом сердце Петроградки - на улице профессора Попова,27. Ремонт делали обстоятельно, для себя: не жалея ни времени, ни денег. Благородная классика всегда будет любима ценителями, а качественные и износостойкие импортные материалы будут ценны вне зависимости от трендов. Планировка гедонистическая и идеально подходит для одного человека или же пары: удобная кухня - 14.5 м2, просторная гостиная с двумя окнами площадью в 25.5 квадратов, спальня и совмещенный санузел - каждый квадратный метр этой квартиры использован с умом и внимание к деталям. Выбирая квартиру в новом клубном доме на Петроградке вы выбираете стиль жизни - спокойный и умеренный, безопасный и красивый, насыщенный на события и в то же время плавный и размеренный, благодаря пешей доступности всей необходимой и достаточной для жизни инфраструктуры. Выбирая этот вариант вы выбираете парадный Петербург во всем его великолепии, но при этом свободный от толп туристов и лишних глаз. Выбирая эту квартиру вы ставите в приоритет себя и свой комфорт. В подземном паркинге всегда можно купить или арендовать парковочное место. Для уточнения всех интересущих вас вопросов или организации показов - звоните. Купить 2-комнатную квартиру на улице Профессора Попова в Санкт-Петербурге.



500 000 ₽/м²
Продаётся 2-комнатная квартира в строящемся доме (Дом 38A 1 этап), срок сдачи: IV-кв. 2029, общей площадью 57.38 кв.м., на 5 этаже. Клубный квартал iD Petrogradskaya расположен в одном из самых престижных мест для жизни в Петербурге, между улицей профессора Попова и набережной реки Карповка.






560 000 ₽/м²
Просторная квартира в престижной локации — ул. Профессора Попова, 38, между набережной Карповки и исторической застройкой Петроградской стороны. Из окон открываются виды на Иоанновский монастырь и реку Карповку. В пешей доступности метро "Петроградская", "Чкаловская" и "Чёрная речка". Высота потолков 3 м, панорамное остекление, эксклюзивная планировка. Квартира передается без отделки, что позволяет реализовать индивидуальный дизайн-проект. Монолитно-кирпичный дом клубного формата, 6-этажная периметральная застройка с полузакрытым двором и парадными курдонёрами. Подземный паркинг с прямым доступом из жилых этажей. Благоустроенная набережная с собственным причалом, озеленённые пространства для отдыха. Рядом ведущие вузы, школы, парки и рестораны. Удобный выезд на ЗСД. Продам 2-комнатную квартиру на улице Профессора Попова в Санкт-Петербурге.



550 000 ₽/м²
Продаётся 2-комнатная квартира в строящемся доме (Дом 38A 1 этап), срок сдачи: IV-кв. 2029, общей площадью 66.37 кв.м., на 4 этаже. Клубный квартал iD Petrogradskaya расположен в одном из самых престижных мест для жизни в Петербурге, между улицей профессора Попова и набережной реки Карповка.






650 000 ₽/м²
Просторная квартира в престижной локации — ул. Профессора Попова, 38, между набережной Карповки и исторической застройкой Петроградской стороны. Из окон открываются виды на Иоанновский монастырь и реку Карповку. В пешей доступности метро "Петроградская", "Чкаловская" и "Чёрная речка". Высота потолков 3 м, панорамное остекление, эксклюзивная планировка. Квартира передается без отделки, что позволяет реализовать индивидуальный дизайн-проект. Монолитно-кирпичный дом клубного формата, 6-этажная периметральная застройка с полузакрытым двором и парадными курдонёрами. Подземный паркинг с прямым доступом из жилых этажей. Благоустроенная набережная с собственным причалом, озеленённые пространства для отдыха. Рядом ведущие вузы, школы, парки и рестораны. Удобный выезд на ЗСД. Продается 2-комнатная квартира на улице Профессора Попова в Санкт-Петербурге.






790 000 ₽/м²
Просторная квартира в престижной локации — ул. Профессора Попова, 38, между набережной Карповки и исторической застройкой Петроградской стороны. Из окон открываются виды на Иоанновский монастырь и реку Карповку. В пешей доступности метро "Петроградская", "Чкаловская" и "Чёрная речка". Высота потолков 3 м, панорамное остекление, эксклюзивная планировка. Квартира передается без отделки, что позволяет реализовать индивидуальный дизайн-проект. Монолитно-кирпичный дом клубного формата, 6-этажная периметральная застройка с полузакрытым двором и парадными курдонёрами. Подземный паркинг с прямым доступом из жилых этажей. Благоустроенная набережная с собственным причалом, озеленённые пространства для отдыха. Рядом ведущие вузы, школы, парки и рестораны. Удобный выезд на ЗСД. Купить 2-комнатную квартиру На улице Профессора Попова в Санкт-Петербурге.



572 000 ₽/м²
Клубный квартал Айди Петроградская (iD Petrogradskaya) расположен в одном из самых престижных мест для жизни в Петербурге, между улицей профессора Попова и набережной реки Карповка.



528 000 ₽/м²
Клубный квартал Айди Петроградская (iD Petrogradskaya) расположен в одном из самых престижных мест для жизни в Петербурге, между улицей профессора Попова и набережной реки Карповка.






770 000 ₽/м²
Просторная квартира в престижной локации — ул. Профессора Попова, 38, между набережной Карповки и исторической застройкой Петроградской стороны. Из окон открываются виды на Иоанновский монастырь и реку Карповку. В пешей доступности метро "Петроградская", "Чкаловская" и "Чёрная речка". Высота потолков 3 м, панорамное остекление, эксклюзивная планировка. Квартира передается без отделки, что позволяет реализовать индивидуальный дизайн-проект. Монолитно-кирпичный дом клубного формата, 6-этажная периметральная застройка с полузакрытым двором и парадными курдонёрами. Подземный паркинг с прямым доступом из жилых этажей. Благоустроенная набережная с собственным причалом, озеленённые пространства для отдыха. Рядом ведущие вузы, школы, парки и рестораны. Удобный выезд на ЗСД.






1 050 000 ₽/м²
Просторная квартира в престижной локации — ул. Профессора Попова, 38, между набережной Карповки и исторической застройкой Петроградской стороны. Из окон открываются виды на Иоанновский монастырь и реку Карповку. В пешей доступности метро "Петроградская", "Чкаловская" и "Чёрная речка". Высота потолков 3 м, панорамное остекление, эксклюзивная планировка. Квартира передается без отделки, что позволяет реализовать индивидуальный дизайн-проект. Монолитно-кирпичный дом клубного формата, 6-этажная периметральная застройка с полузакрытым двором и парадными курдонёрами. Подземный паркинг с прямым доступом из жилых этажей. Благоустроенная набережная с собственным причалом, озеленённые пространства для отдыха. Рядом ведущие вузы, школы, парки и рестораны. Удобный выезд на ЗСД.






660 000 ₽/м²
Просторная квартира в престижной локации — ул. Профессора Попова, 38, между набережной Карповки и исторической застройкой Петроградской стороны. Из окон открываются виды на Иоанновский монастырь и реку Карповку. В пешей доступности метро "Петроградская", "Чкаловская" и "Чёрная речка". Высота потолков 3 м, панорамное остекление, эксклюзивная планировка. Квартира передается без отделки, что позволяет реализовать индивидуальный дизайн-проект. Монолитно-кирпичный дом клубного формата, 6-этажная периметральная застройка с полузакрытым двором и парадными курдонёрами. Подземный паркинг с прямым доступом из жилых этажей. Благоустроенная набережная с собственным причалом, озеленённые пространства для отдыха. Рядом ведущие вузы, школы, парки и рестораны. Удобный выезд на ЗСД.






620 000 ₽/м²
Просторная квартира в престижной локации — ул. Профессора Попова, 38, между набережной Карповки и исторической застройкой Петроградской стороны. Из окон открываются виды на Иоанновский монастырь и реку Карповку. В пешей доступности метро "Петроградская", "Чкаловская" и "Чёрная речка". Высота потолков 3 м, панорамное остекление, эксклюзивная планировка. Квартира передается без отделки, что позволяет реализовать индивидуальный дизайн-проект. Монолитно-кирпичный дом клубного формата, 6-этажная периметральная застройка с полузакрытым двором и парадными курдонёрами. Подземный паркинг с прямым доступом из жилых этажей. Благоустроенная набережная с собственным причалом, озеленённые пространства для отдыха. Рядом ведущие вузы, школы, парки и рестораны. Удобный выезд на ЗСД.



660 000 ₽/м²
Клубный квартал Айди Петроградская (iD Petrogradskaya) расположен в одном из самых престижных мест для жизни в Петербурге, между улицей профессора Попова и набережной реки Карповка.






650 000 ₽/м²
Просторная квартира в престижной локации — ул. Профессора Попова, 38, между набережной Карповки и исторической застройкой Петроградской стороны. Из окон открываются виды на Иоанновский монастырь и реку Карповку. В пешей доступности метро "Петроградская", "Чкаловская" и "Чёрная речка". Высота потолков 3 м, панорамное остекление, эксклюзивная планировка. Квартира передается без отделки, что позволяет реализовать индивидуальный дизайн-проект. Монолитно-кирпичный дом клубного формата, 6-этажная периметральная застройка с полузакрытым двором и парадными курдонёрами. Подземный паркинг с прямым доступом из жилых этажей. Благоустроенная набережная с собственным причалом, озеленённые пространства для отдыха. Рядом ведущие вузы, школы, парки и рестораны. Удобный выезд на ЗСД.






620 000 ₽/м²
Просторная квартира в престижной локации — ул. Профессора Попова, 38, между набережной Карповки и исторической застройкой Петроградской стороны. Из окон открываются виды на Иоанновский монастырь и реку Карповку. В пешей доступности метро "Петроградская", "Чкаловская" и "Чёрная речка". Высота потолков 3 м, панорамное остекление, эксклюзивная планировка. Квартира передается без отделки, что позволяет реализовать индивидуальный дизайн-проект. Монолитно-кирпичный дом клубного формата, 6-этажная периметральная застройка с полузакрытым двором и парадными курдонёрами. Подземный паркинг с прямым доступом из жилых этажей. Благоустроенная набережная с собственным причалом, озеленённые пространства для отдыха. Рядом ведущие вузы, школы, парки и рестораны. Удобный выезд на ЗСД.






750 000 ₽/м²
Просторная квартира в престижной локации — ул. Профессора Попова, 38, между набережной Карповки и исторической застройкой Петроградской стороны. Из окон открываются виды на Иоанновский монастырь и реку Карповку. В пешей доступности метро "Петроградская", "Чкаловская" и "Чёрная речка". Высота потолков 3 м, панорамное остекление, эксклюзивная планировка. Квартира передается без отделки, что позволяет реализовать индивидуальный дизайн-проект. Монолитно-кирпичный дом клубного формата, 6-этажная периметральная застройка с полузакрытым двором и парадными курдонёрами. Подземный паркинг с прямым доступом из жилых этажей. Благоустроенная набережная с собственным причалом, озеленённые пространства для отдыха. Рядом ведущие вузы, школы, парки и рестораны. Удобный выезд на ЗСД.






640 000 ₽/м²
Просторная квартира в престижной локации — ул. Профессора Попова, 38, между набережной Карповки и исторической застройкой Петроградской стороны. Из окон открываются виды на Иоанновский монастырь и реку Карповку. В пешей доступности метро "Петроградская", "Чкаловская" и "Чёрная речка". Высота потолков 3 м, панорамное остекление, эксклюзивная планировка. Квартира передается без отделки, что позволяет реализовать индивидуальный дизайн-проект. Монолитно-кирпичный дом клубного формата, 6-этажная периметральная застройка с полузакрытым двором и парадными курдонёрами. Подземный паркинг с прямым доступом из жилых этажей. Благоустроенная набережная с собственным причалом, озеленённые пространства для отдыха. Рядом ведущие вузы, школы, парки и рестораны. Удобный выезд на ЗСД.






790 000 ₽/м²
Просторная квартира в престижной локации — ул. Профессора Попова, 38, между набережной Карповки и исторической застройкой Петроградской стороны. Из окон открываются виды на Иоанновский монастырь и реку Карповку. В пешей доступности метро "Петроградская", "Чкаловская" и "Чёрная речка". Высота потолков 3 м, панорамное остекление, эксклюзивная планировка. Квартира передается без отделки, что позволяет реализовать индивидуальный дизайн-проект. Монолитно-кирпичный дом клубного формата, 6-этажная периметральная застройка с полузакрытым двором и парадными курдонёрами. Подземный паркинг с прямым доступом из жилых этажей. Благоустроенная набережная с собственным причалом, озеленённые пространства для отдыха. Рядом ведущие вузы, школы, парки и рестораны. Удобный выезд на ЗСД.



660 000 ₽/м²
Клубный квартал Айди Петроградская (iD Petrogradskaya) расположен в одном из самых престижных мест для жизни в Петербурге, между улицей профессора Попова и набережной реки Карповка.






590 000 ₽/м²
Просторная квартира в престижной локации — ул. Профессора Попова, 38, между набережной Карповки и исторической застройкой Петроградской стороны. Из окон открываются виды на Иоанновский монастырь и реку Карповку. В пешей доступности метро "Петроградская", "Чкаловская" и "Чёрная речка". Высота потолков 3 м, панорамное остекление, эксклюзивная планировка. Квартира передается без отделки, что позволяет реализовать индивидуальный дизайн-проект. Монолитно-кирпичный дом клубного формата, 6-этажная периметральная застройка с полузакрытым двором и парадными курдонёрами. Подземный паркинг с прямым доступом из жилых этажей. Благоустроенная набережная с собственным причалом, озеленённые пространства для отдыха. Рядом ведущие вузы, школы, парки и рестораны. Удобный выезд на ЗСД.



650 000 ₽/м²
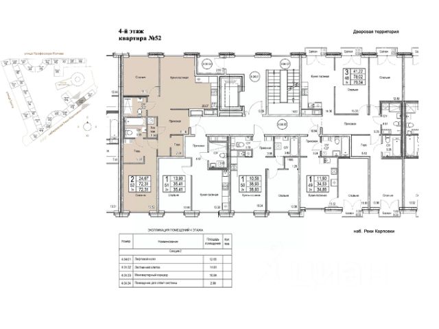
В продаже квартира в строящемся ЖК ID Рetrogradskаyа Комнат: 2 Этаж: 5/6 Секция: 2 Площадь общая: 72,31 кв. м. Площадь жилая: 24,67 кв. м. Балкон: нет Номер: 57 Квартира передается без отделки, что позволяет воплотить свои дизайнерские идеи и создать уникальный интерьер. Во всех квартирах потолки 3 м и панорамные окна высотой 2,8 м. В каждой секции и на каждом этаже спроектированы помещения для установки кондиционеров. Предусмотрены грузовые лифты, на первых этажах организованы места для хранения детских колясок. Отделка входных групп и общих зон выполнена по авторскому дизайну. ______________________________________________ Срок сдачи 2029 г. Квартира продается по переуступке. Клубный квартал состоит из 29 секций в 6 этажей, располагается в Петроградском районе Санкт-Петербурга — между улицей профессора Попова и набережной реки Карповка. Одной из главных достопримечательностей выступает Иоанновский женский монастырь. Окна многих квартир выходят на живописную реку Карповку. Проектом предусмотрено благоустройство набережной, также застройщик отреставрирует артезианскую скважину императорских времён. Комплекс возводится в пешей доступности от трех станций метро — Петроградская, Чкаловская и Чёрная речка. В шаговой доступности находятся магазины, салоны красоты, медицинские центры, рестораны и сервисы. На территории запланирован детский сад на 100 мест и начальная школа на 200 мест. Проектом предусмотрен подземный паркинг, доступ в который осуществляется на лифте с жилых этажей. Гостевые парковки вынесены за периметр домов. Также на территории паркинга предусмотрены индивидуальные кладовые для хранения вещей жителей. Благодаря мосту Бетанкура и удобным выездам на главные транспортные магистрали (съезды на Уральскую улицу, набережную Макарова, ЗСД, Морскую набережную и проспект Кима), добраться до любой точки города и аэропорта Пулково комфортно и быстро.



700 000 ₽/м²
Продаётся 2-комнатная квартира в строящемся доме (Дом 38A 1 этап), срок сдачи: IV-кв. 2029, общей площадью 55.39 кв.м., на 6 этаже. Клубный квартал iD Petrogradskaya расположен в одном из самых престижных мест для жизни в Петербурге, между улицей профессора Попова и набережной реки Карповка.






790 000 ₽/м²
Просторная квартира в престижной локации — ул. Профессора Попова, 38, между набережной Карповки и исторической застройкой Петроградской стороны. Из окон открываются виды на Иоанновский монастырь и реку Карповку. В пешей доступности метро "Петроградская", "Чкаловская" и "Чёрная речка". Высота потолков 3 м, панорамное остекление, эксклюзивная планировка. Квартира передается без отделки, что позволяет реализовать индивидуальный дизайн-проект. Монолитно-кирпичный дом клубного формата, 6-этажная периметральная застройка с полузакрытым двором и парадными курдонёрами. Подземный паркинг с прямым доступом из жилых этажей. Благоустроенная набережная с собственным причалом, озеленённые пространства для отдыха. Рядом ведущие вузы, школы, парки и рестораны. Удобный выезд на ЗСД.






790 000 ₽/м²
Просторная квартира в престижной локации — ул. Профессора Попова, 38, между набережной Карповки и исторической застройкой Петроградской стороны. Из окон открываются виды на Иоанновский монастырь и реку Карповку. В пешей доступности метро "Петроградская", "Чкаловская" и "Чёрная речка". Высота потолков 3 м, панорамное остекление, эксклюзивная планировка. Квартира передается без отделки, что позволяет реализовать индивидуальный дизайн-проект. Монолитно-кирпичный дом клубного формата, 6-этажная периметральная застройка с полузакрытым двором и парадными курдонёрами. Подземный паркинг с прямым доступом из жилых этажей. Благоустроенная набережная с собственным причалом, озеленённые пространства для отдыха. Рядом ведущие вузы, школы, парки и рестораны. Удобный выезд на ЗСД.
| 🔷 Средняя цена продажи: | 45,4 млн ₽; |
| 🔷 Средняя рыночная цена за м2: | 660 тыс. ₽/м²; |
| 🔷 Минимальная стоимость жилья: | 28,5 млн ₽; |
| 🔷 Самый дорогой объект: | 65,8 млн ₽. |
Скачать, актуальные на 2023 год, шаблоны типовых документов:
Если решили воспользоваться услугами риелтора, то вам могут также пригодиться:
Используя типовой шаблон документа, помните, что он не может отражать всех нюансов и конкретных особенностей ваших договоренностей с контрагентом.