283 565 ₽/м²
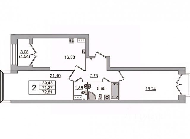
Продается просторная двухкомнатная квартира с евро-ремонтом в кирпичном доме 2011 года постройки. Комнаты изолированные(11.3+20.7),что обеспечивает комфорт и приватность, кухня-гостиная 35.1 кв.м. Из окон открывается вид на тихий двор, где расположена закрытая территория с детской площадкой. Кухня оборудована современной техникой, включая посудомоечную машину. В квартире есть гардеробная, а также два санузла с качественной сантехникой. Балкон застеклена, что позволяет использовать ее как дополнительное пространство для отдыха. Дом оснащен консьержем, пассажирским двумя грузовыми лифтами, что добавляет удобства в повседневной жизни. Имеется подземная и наземная парковка во дворе. Во дворе детский сад. Для детей все в шаговой доступности. Политехнический университет 10 мин пешком, художественное училище им. Рериха, Центр плавания, гимназия англ + испанский языки, школа с углубленным изучением англ + франц, ЦВР- центр внешкольной работы. Сад Бенуа и парк Сосновка 10 мин пешком. Возле дома магазин ОКей, в ЖК есть все необходимое для комфортной жизни: магазины, пекарни, аптеки, салоны красоты и т.дПрямая продажа, один взрослый собственник, мат. капитал не использовался, возможна покупка в ипотеку. Показы по договорённости, звоните с 10 до 20 часов. Купить 2-комнатную квартиру (вторичка) на улице Гжатская в Санкт-Петербурге.















































































