


262 845 ₽/м²
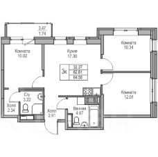
Продаeтся 3-к квартира 64.55 кв.м. экорайона "Юнтолово" (Приморский р-н) напрямую от застройщика "Главстрой Санкт-Петербург". Доступны льготная ипотека, рассрочка, трейд-ин и спецпредложения. Стоимость квартиры в объявлении указaнa co cкидкой. О проекте Жилой экорайон "Юнтолово" расположен в престижном Приморском районе, в живописной зелёной зоне недалеко от Юнтоловского заказника. На участке площадью 437 га планируется около 2,2 млн кв. м жилья с образовательной, медицинской, торговой, деловой инфраструктурой и общественными пространствами. Настоящее сердце "Юнтолово" — Центральный парк площадью 20 гектаров. Главная идея экорайона — близость к настоящей природе в черте города. Расположение и транспортная доступность Тишина и зелёное окружение района сочетаются с городской инфраструктурой и удобной логистикой. Остановки общественного транспорта до метро "Беговая", "Старая Деревня", "Комендантский проспект" и "Чёрная речка" в шаговой доступности. Близость КАД, ЗСД и Приморского шоссе обеспечивает быстрый выезд в центр, Курортный район и другие части города. Инфраструктура В парк-квартале "Юнтолово" создана вся необходимая социальная и коммерческая инфраструктура. Для детей открыты 4 современных детских сада и 2 школы. На первых этажах работают кафе и пекарни, магазины, аптеки, салоны красоты, МФЦ, почта России, развивающие центры для детей и другие сервисы. Для отдыха и спорта Особое внимание уделено качеству общественных пространств, формирующих среду для отдыха, общения и активного образа жизни. Для маленьких жителей организованы детские площадки с игровыми комплексами для всех возрастных групп. Для активного отдыха — уличные тренажёры, футбольные, волейбольные и баскетбольные поля, йога-зона, велодорожки, беговые маршруты и скейт-парк. На берегу реки Юнтоловки открыт гребной клуб "ПричалЮ" для любителей сапсёрфинга и гребли. Планировочные решения В "Юнтолово" предусмотрена широкая линейка планировок — от компактных студий 23 м² до семейных четырёхкомнатных квартир до 111 м² с мастер-спальнями, гостевым санузлом и системами хранения. Квартиры сдаются с чистовой отделкой "Комфорт" в светлом и темном решении. Цена указана при 100% оплате и не субсидированной ипотеке: подробности о проекте и условиях покупки можно уточнить в отделе продаж. Продам 3-комнатную квартиру в ипотеку в районе Приморский в Санкт-Петербурге.





























































































































