


241 276 ₽/м²
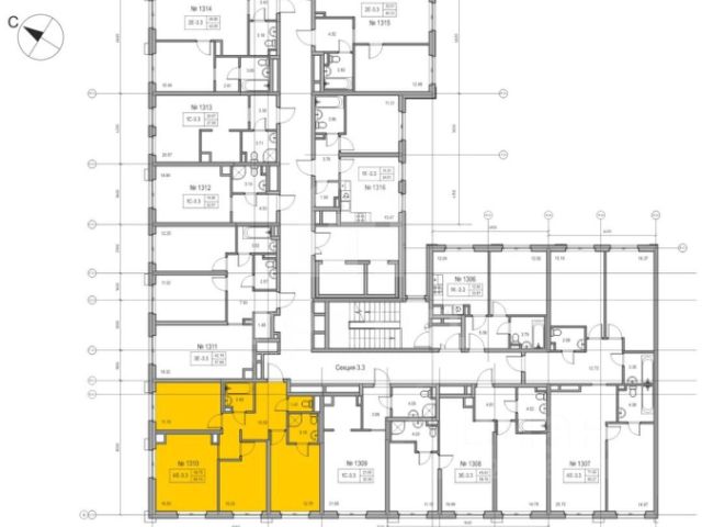
Продаётся 3-комнатная квартира в сданном доме (Корпус 1 (ул. Руднева, 15)), срок сдачи: IV-кв. 2024, общей площадью 100.3 кв.м., на 3 этаже. Жилой комплекс "Руднева 15" расположен в Выборгском районе Санкт-Петербурга, недалеко от трёх станций метро "Проспект Просвещения", "Озерки" и "Гражданский проспект". Дома расположены в благоустроенном микрорайоне с полностью сложившейся инфраструктурой. Здесь есть всё необходимое для комфортного проживания. Комплекс состоит из трёх 13-этажных зданий, выполненных в едином архитектурном стиле, а также многоуровневого паркинга. Кроме того, рядом расположен муниципальный детский сад, построенный компанией "Темп". Закрытые дворы, видеодомофоны, электронные ключи и современная система безопасности обеспечивают жителям спокойствие и комфорт. Безбарьерная среда и просторные холлы с оборудованием для маломобильных граждан делают жилой комплекс доступным для всех. В парадных установлены малошумные лифты марки OTIS. В комплексе представлены квартиры различных планировок: от студий площадью 30 м до трёхкомнатных квартир 100 м. Все квартиры отличаются продуманной планировкой, отвечающей требованиям современной семьи. В каждом варианте предусмотрены просторные кухни-гостиные площадью от 15 м до 31 м. Некоторые двухкомнатные квартиры оборудованы окнами в ванных комнатах, а в трёхкомнатных квартирах обязательно предусмотрены два санузла. Квартиры передаются покупателю с полной чистовой отделкой. Продажа осуществляется по договору купли-продажи, с возможностью заселения сразу после оплаты. Доступны различные формы оплаты: 100%, ипотека, рассрочка, различные субсидии и использование материнского капитала. "Руднева 15" - это комфортное и современное жильё, идеально подходящее для семейной жизни. Купить 3-комнатную квартиру в новостройке на улице Руднева в Санкт-Петербурге.









































































