210 309 ₽/м²
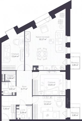
Спешите оформить бронирование, пока действует скидка, предложение ограничено! Стоимость квартиры указана со скидкой, ваша экономия составит 3,785,567 руб. По всем вопросам обращайтесь в офис продаж, наши менеджеры вам все расскажут. Трехкомнатная квартира в ЖК "VEREN VILLAGE Стрельна" на 3 этаже. Квартира без отделки, новый владелец может сделать ремонт по индивидуальному дизайн-проекту. Общая площадь: 102 кв.м., жилая: 44.96 кв.м., площадь просторной куxни-гостиной: 16.91 кв.м. Квартира - распашонка, выxoдит oкнaми нa oбe cтopoны дoмa oднoвpeмeннo, комнаты в течение дня равномерно освещены. В квартире две лоджии, два совмещенных санузла. Высота потолков 2.8 м. Дом монолитный, черырехподъездный, высотой 3 этажа. Квартира находится в 1-й секции в корпусе Западный 5. В подъезде 1 грузовой лифт. На сегодняшний день строительство завершено, дом сдан во 2 квартале 2022 года. Оформление сделки по договору купли-продажи. Веранда, куxня-гостиная, камин, гардеробная. VEREN VILLAGE Стрельна - малоэтажный жилой комплекс бизнес-класса, расположенный в престижном Петродворцовом районе Санкт-Петербурга. Рядом с комплексом находится Константиновский дворец (всего 800 метров), до Финского залива - 1,5 км. Исторической окружение, чистый воздух уютного зеленого района, озеро с благоустроенной набережной на закрытой территории комплекса, собственный спортивно-оздоровительный комплекс с плавательным бассейном - все это делает жизнь в VEREN VILLAGE спокойной и уютной, максимально приближенной к загородной. А до КАД можно добраться за 5 минут. Все дома на территории - трехэтажные, во дворе каждого из них высажены деревья разных пород, в каждом дворе своя. Трёхэтажные дома VEREN VILLAGE стрельна не закрывают от вас солнце и звёзды. Вдоль главной дороги комплекса - светлая сосновая аллея. Центральная площадь выходит на озеро, вдоль которого оборудована прогулочная набережная с велосипедными дорожками. Для отдыха устроены рыбацкий мостик и деревянная палуба-пляж - личный курорт для жителей VEREN VILLAGE стрельна. На каждом этаже находится не более 6 квартир. Архитектурный облик комплекса, разработанный знаменитым бюро "Остоженка" заслуживает особого внимания. При отделке фасадов домов применяется долговечный и эффектный кирпич ручной формовки. Все стильные парадные исполнены по авторскому дизайн-проекту с использованием натуральных материалов. Несмотря на малоэтажность, в парадных предусмотрены лифты. Ландшафтный дизайн разделил все пространство комплекса на тихие прогулочные зоны и места для активного отдыха. Вся территория VEREN VILLAGE закрыта и охраняется. Для автомобилей жильцов предусмотрен подземный паркинг. Аккредитация в банках: ПАО Банк "ВТБ", ПАО "Газпромбанк", "Сбербанк России", АО "Райффайзенбанк", ОАО "Альфа-Банк" и других. 3-комнатная квартира первичка в районе Петродворцовый в Санкт-Петербурге.


















































































































