Если вы цените ЭСТЕТИКУ, КОМФОРТ И КАЧЕСТВО, тогда эта квартира для Вас!!!
Представляем вашему вниманию уникальный объект в престижном ЖК Ultra City 2.0 от RBI. Некоторые особенности комплекса:
• Инфраструктура: на территории есть два детских сада и школа, которые полностью укомплектованы мебелью, бытовой техникой и оборудованием от RBI.
• Спортивные площадки: во дворе есть профессиональные уличные тренажёры с возможностью регулировки веса, многофункциональная рама для гимнастических упражнений, кикер, столы для игры в шахматы и настольный теннис.
• Арт-объекты: на территории есть арт-объект от Студии Артемия Лебедева, игровые комплексы от Richter Spielgerte, амфитеатр и собственное выставочное пространство для реализации в творчестве.
Стоит отметить, на 2029 год запланировано открытие ст.м. Каменка в створе Комендантского и Шуваловского проспектов.
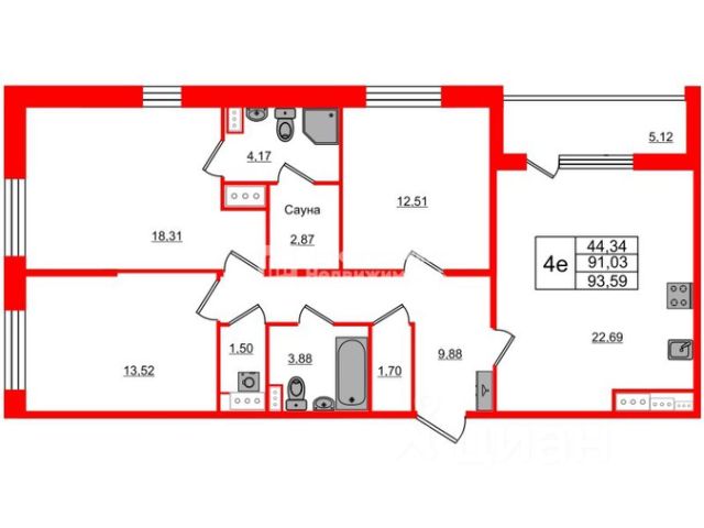
Описание квартиры:
В квартире выполнен ремонт по дизайн-проекту, разработанному для комфортной жизни, использованы качественные материалы двухслойная инженерная доска в раскладке английской елочки, итальянский керамогранит Caesar, ABK, стены окрашены интерьерной дизайнерской премиум-краской mons, все лепные элементы выполнены с помощью материалов бельгийской компании orac dcor.
Отличительной особенностью является установленная система интеллектуального управления как всем светом, климатом, текстилем и даже встроенной потолочной акустикой (акустика hi end класса Sonos) это дает возможность воплотить любые сценарии, к примеру, поставив режим доброе утро на выключатель у кровати и при только одном нажатии у вас автоматически откроются шторы, заиграет легкая музыка и, если будет необходимо, включится мягкая подсветка, если это зимнее время года. В Ванной установлены диммируемые светильники и LED-лента, что дает вам безграничную палитру цветов для водных процедур и всем этим вы легко управляете со своего телефона.
Полностью установлена кухня и вся бытовая техника немецкой фирмы korting, итальянской фабрики smeg.
Изюминкой прихожей является левитирующий шкаф, который легко сможет вместить всю верхнюю одежду, аксессуары, а под ним всегда будет удобно разместить уличную повседневную обувь и есть даже розетка для робота-пылесоса.
Продумана в квартире постирочная зона для этого отведен отдельный шкаф, где размещена колонна стиральной и сушильной машин компании smeg, отведено место для всей бытовой химии и корзины для белья
В санузлах установлена качественная сантехника ванна Villeroy & Boch, изготовленная из особо ударопрочного и устойчивого к царапинам материала Quaryl, проверенная десятилетиями инсталляция немецкой фабрики tece, безободковые унитазы creavit с каскадным сливом и смесители Boheme в привлекающей внимание любого отделке брошированное золото
В квартире установлена система кондиционирования компании haier, заменены окна от застройщика на качественные стеклопакеты Rehau Delight.
Все преимущества этого объекта можно описывать бесконечно, приглашаем лично оценить!